Отдельностоящее здание
Чапаева, 34а Показать на карте
Чапаева, 34а Показать на карте
Тула
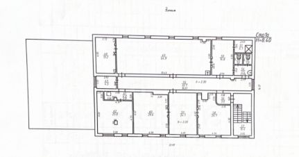
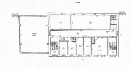
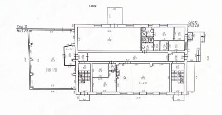
Современное торгово-офисное здание общей площадью около 1 400 м², расположенное в удобной локации города Тулы. Объект включает цокольный этаж и три надземных уровня, выполнен с применением качественных строительных материалов и полностью оснащён инженерными коммуникациями.Первоначально третий этаж проектировался как эксплуатируемая кровля, однако в процессе строительства был реализован как полноценный этаж, что увеличило общую площадь и функциональность здания.Планировочная структураЦокольный этажФункциональное пространство для размещения технических и служебных зон. Включает: игровой зал, холодильную камеру, 6 кладовых (в том числе для сухих продуктов), 3 тамбура, подсобное помещение, тепловой узел, 2 гардеробные, 10 санузлов, 2 душевые, электрощитовую, подъемник, 2 моечные, заготовительный цех, холлы и коридоры.Первый этажОсновная торговая зона здания. Представлены: просторный торговый зал, цех, комната отдыха, 3 подсобных помещения, 3 коридора, 3 санузла, моечная, тамбур, вестибюли и лестничные клетки.Второй этажЭтаж сочетает торговые и офисные помещения, идеально подходящие для размещения магазинов, кабинетов и служб. Состав: 2 зала, 3 кабинета, раздаточная, цех, 3 подсобные комнаты, холл, коридоры и лестничные клетки.Третий этажПолноценный этаж, используемый под зал с лестничной клеткой, коридором и вентиляционной камерой. Может быть адаптирован под торговую, выставочную или офисную функцию.Коммуникации•Электроснабжение: подведённая мощность — 180 кВт, поставщик — АО Тульские городские электрические сети.•Водоснабжение и канализация: централизованные, договор с АО Тулгорводоканал.•Отопление и горячее водоснабжение: центральные, поставщик — ООО ТОЗ-Энерго.
1139 м2
- Показать контакты
- Добавить в избранное
1139 м2
50 000 000
43 894 /м2
