Офисное помещение
Ярцевская, 21 ст2 Показать на карте
Ярцевская, 21 ст2 Показать на карте
Молодежная, 5 мин
Москва
Предложение от застройщика. Старт продаж нового бизнес-центра класса ''А'' в минуте от метро Молодёжная. МУЛЬТИОФИС Концепция мультиофиса позволит эффективно разделить операционные процессы в рамках одного бизнес-центра. - Фронт-офис: Разместите подразделения, ориентированные на клиентов, в шоу-румах и ретейле на первых этажах - Мидл-офис: Для административно-управленческих блоков идеально подойдут современные и стильные офисные пространства с open space. - Бэк-офис: Для IT-инфраструктуры и служб поддержки в проекте представлены технически оснащенные блоки, в том числе с отдельными персональными серверными. - HQ: Для стратегического руководства и представительских функций мы предлагаем офисы под штаб-квартиры. ЧЕЛОВЕКОЦЕНТРИЧНАЯ СРЕДА Все, что нужно для продуктивной работы и качественного отдыха: - Ресторан с летней террасой - Шопинг-променад - Фитнес-центр - СПА - Гольф-симулятор - Конференц-залы - Коворкинги - Переговорные комнаты, в том числе ZOOM-переговорные - Сквер и событийная площадь - Подземная и наземная парковки с зарядками для электромобилей - Велопарковка и парковка для самокатов со станцией зарядки PROPERTY MANAGEMENT У инвесторов есть возможность передать недвижимость в управление профессиональному офис-партнёру. Сервисная УК возьмет на себя всю операционную составляющую бизнеса, что позволит собственнику получать пассивный доход без прямого участия. - Привлечение арендаторов - Юридическое сопровождение - Техническое обслуживание - Сервисное обслуживание и оперативный ремонт помещения - Отчетность перед собственником в личном кабинете инвестора - Выполнение ремонта под запрос собственника или арендатора - Опытным инвесторам, имеющим масштабный портфель, это позволит систематизировать управление и использовать актив с максимальной эффективностью. БЛАГОУСТРОЙСТВО Консорциум SCAPE и dot. bureau разработал многофункциональное публичное пространство. Здесь деловая активность гармонично сочетается с комфортом. В центре - просторная встречающая площадь, рассчитанная на большой пешеходный поток. Пространство открытое, понятное: в нем легко ориентироваться и удобно назначать встречу у знакового арт-объекта. Для повседневного отдыха предусмотрен уютный сквер и покет-парки, а для неформальных встреч и работы на свежем воздухе - уличные коворкинги. Ориентироваться поможет стильная дизайнерская навигация, которая завершает целостный и эстетичный образ пространства.
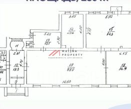
45 м2
- Показать контакты
- Добавить в избранное
45 м2
23 159 869
505 674 /м2
