Универсальное помещение
Новоалексеевская, 16 корп. 2 Показать на карте
Новоалексеевская, 16 корп. 2 Показать на карте
ВДНХ, 15 мин
Москва
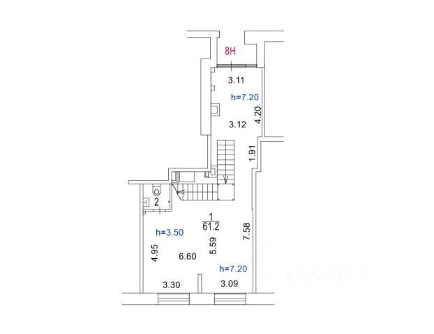
Предлагаем вашему вниманию уникальную возможность приобрести коммерческое помещение на первой линии в одном из самых востребованных жилых комплексов города — ''Серебряный фонтан''.Преимущества:• Первоклассное расположение: Высокая проходимость и видимость, что обеспечит постоянный поток клиентов.• Арендатор уже на месте: Помещение с действующим арендатором, что гарантирует стабильный доход с первого дня.• Быстрый срок окупаемости: Инвестиции, которые быстро оправдают себя благодаря выгодному местоположению и надежному арендатору.
325 м2
- Показать контакты
- Добавить в избранное
325 м2
155 457 350
477 596 /м2
