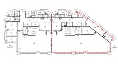
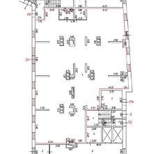
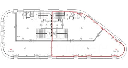
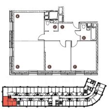
Универсальное помещение
Волоколамское шоссе, 71/22 корп. 1 Показать на карте
Волоколамское шоссе, 71/22 корп. 1 Показать на карте
Спартак, 7 мин
Москва
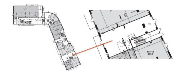
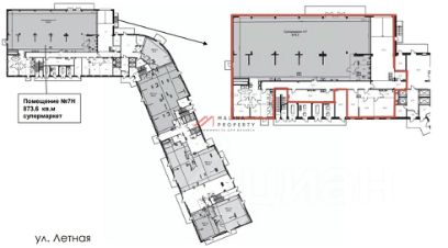
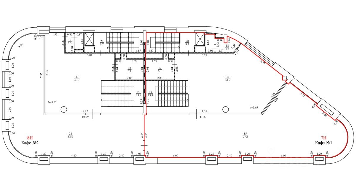
Предлагается в продажу помещение свободного назначения, расположенное в ЖК Движение. Тушино площадью 132.2 кв.м. Располагается на 1 этаже 22-этажного корпуса. Помещение идеально подойдет для магазина, кафе, офиса или другого бизнеса благодаря функциональной планировке и большому потоку потенциальных клиентов. Внутренняя инфраструктура ''Движение. Тушино'' включает кафе, магазины, предприятия услуг и офисные помещения. В рамках комплексной застройки Тушинского аэродрома поблизости планируется строительство нескольких детских садов и школ. В нескольких сотнях метров располагается стадион ''Открытие Арена'' (домашняя арена футбольного клуба ''Спартак) . Возможно, именно с этим связано ''физкультурное'' название апарт-комплекса. Рядом также водноспортивный комплекс ''Буревестник'', стадионы ''Красный Октябрь'', ''Луч'', спортклуб им. Визбора, фитнес-клубы различного формата. Недалеко располагаются несколько школ, детских садов и торговых центров (''Крокус Сити Холл'', ''Вегас Крокус Сити'', ''Щука'', ''Праздник'', ''Твой дом'' и другие) , а также детская поликлиника 96, медицинские центры, кафе, рестораны. Близость Воколамского шоссе компенсирует находящийся поблизости природно-исторический парк ''Покровское-Стрешево'' площадью 22 га. Недалеко есть ещё несколько зеленых зон: парк ''Яблоневый сад'', Щукинский парк, ландшафтный парк ''Митино'', парк и усадьба ''Братцево'', а также река Сходня и Щукинская набережная.
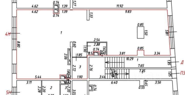
132 м2
- Показать контакты
- Добавить в избранное
132 м2
54 913 000
415 378 /м2
