Мы объединились! Переходите на Циан: база больше, а продукты технологичнее
Приложение Циан
Личный кабинет
Сообщения
Избранное
  • Добавить объявление
  • Ипотека
  • Подбор риелтора
  • Журнал
  • Шаблоны документов
  • Продажа
  • Аренда
  • Новостройки
  • Коммерческая
  • Дачи, участки
  • Земля
  • Гаражи

Продажа коммерческой недвижимости в Москве

12 244 объяв.
1/18
36 500 000 ₽
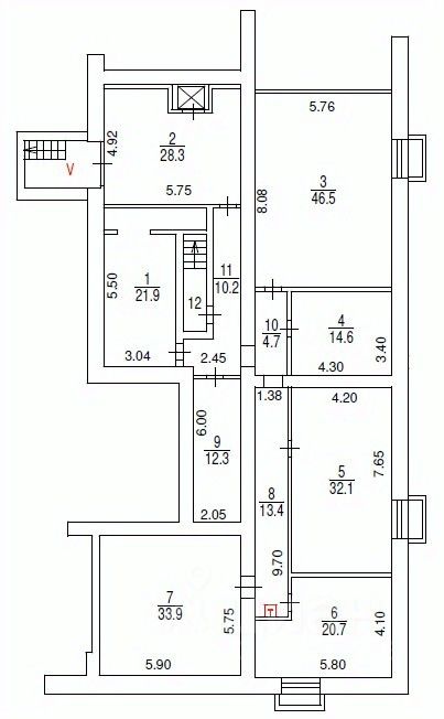
Универсальное помещение,  Черняховского, 6
243 м² · 149 713 ₽ за м²
СОБСТВЕННИКИ! Предлагается к продаже помещение свободного назначения площадью 243,8 м2, расположенное в подвале жилого дома, в 4-х минутах ходьбы от станции метро Аэропорт. Первая линия ул. Черняховского. Интенсивный трафик перед домом. Помещение сдано по КДА конструкторскому бюро (заезжают в данный момент). МАП - 306 000 руб. Отличительное преимущество - 1-й этаж дома нежилой! Характеристики объекта: - отдельный вход со двора, есть доп.проход с ул. Красноармейская через Почту России (с сервитутом), - окна в приямках, - был выполнен свежий ремонт в стиле лофт, - свободная планировка (несколько комнат), - собственный санузел, - высота потолков 2,7 м, - мощность 30 кВт (есть возможность увеличения), - центральные коммуникации, - УК - ГБУ Жилищник. Соседи: ВкусВилл, Подружка, Магнит, Магнолия, French Bakery SeDelice, аптека Горздрав, Почта России и др. Номер объекта: #1/537063/21663
1/23
227 623 500 ₽
Офисное помещение,  Вавилова, 11
Площадь Гагарина5 мин
389 м² · 585 000 ₽ за м²
Получение заключения о соответствии 2 кв. 2025г. Переезд в 2026 году! В реализации - видовой офис на 18-м этаже башни L в составе премиального бизнес-центра STONE Ленинский напрямую от застройщика STONE, лидера офисного рынка. STONE Ленинский - один из первых качественных бизнес-центров на Ленинском за последние 10 лет. Общая площадь офисного помещения - 389,1 кв. м. Архитектура от бюро WALL. Бизнес-центр STONE Ленинский представляет собой две современные офисные башни: клубная 12-этажная башня S и 23-этажная башня L, которые объединены функциональным стилобатом, где предусмотрена собственная развитая инфраструктура: кафе, рестораны, столовая для сотрудников, аптеки, фитнес-студия, банкоматы. Благоустройство предполагает зонирование: открытая зеленая лаунж-терраса, где предусмотрены зоны для работы на открытом воздухе, места для отдыха и качели, на уровне земли - летние веранды ресторанов и кафе. Транспортная доступность - 4 мин. пешком от м. ''Ленинский проспект'' и МЦК ''Площадь Гагарина'' - 15 мин. до Москва-Сити без пересадок - 400 м от ТТК Планировка соответствует требованиям функционального офиса: глубина помещения - до 10 м, высота потолков - 3,65 м, шаг колонн - 8,4 8,4 м. Окна в пол обеспечат оптимальный уровень инсоляции и предусматривают возможность естественного проветривания. Бизнес-центр STONE Ленинский будет оснащен всеми современными инженерными системами: центральное кондиционирование, приточно-вытяжная вентиляция с увеличенным объемом воздуха и многоуровневой системой очистки. Предусмотрен подземный паркинг для резидентов и наземный гостевой, объекты инфраструктуры микромобильности и зарядные устройства для электромобилей. STONE - девелопер коммерческой и жилой недвижимости классов бизнес и премиум в Москве с 19-летним опытом. С 2022 года занимает лидирующую позицию на офисном рынке (рейтинг РБК). Сегодня в портфеле девелопера представлено 3 млн кв. м построенных, строящихся и проектируемых объектов, из которых более 1 млн кв. м находятся в стадии строительства. Компания имеет самый масштабный проектный портфель офисной недвижимости класса А на московском рынке (данные NF Group) и возглавляет топ-6 устойчивых девелоперов согласно исследованию F Research от Forbes. В настоящий момент девелопером представлено 16 бизнес-центров класса А, а также 3 жилых комплекса бизнес+ класса. ID.9153
1/22
160 000 000 ₽
Отдельностоящее здание,  Петровский бульвар, 3 ст3
Чеховская6 мин
210 м² · 761 905 ₽ за м²
В продажу предлагается отдельно стоящее здание 210 м2 на Петровском бульваре! Конфигурация строения - 2 этажа, свободная планировка. Высота потолка 1 этаж - 3.6 м, 2 этаж - 2.7 м, Идеально подойдет под офис или небольшую резиденцию. Свой паркинг на 4 ММ. Прямой представитель собственника. Оперативный показ. Звоните в любое время.
1/6
131 572 500 ₽
Торговые площади,  Дмитровский проезд, 1г
Дмитровская5 мин
99 м² · 1 325 000 ₽ за м²
В реализации - помещение под кафе с возможностью организации летней веранды в составе бизнес-центра класса А STONE Дмитровская напрямую от девелопера STONE, лидера офисного рынка. Первый бизнес-центр класса А в локации м. ''Дмитровская''. Бизнес-центр реализуется совместно с Мэрией г. Москвы в рамках программы комплексного развития территорий, что гарантирует максимально прозрачные условия и сроки реализации. Кафе - востребованная инфраструктурная составляющая качественного бизнес-центра. Увеличенный трафик за счет сотрудников (3 500 человек) и гостей бизнес-центра, жителей района. Ограниченное предложение в локации как конкурентное преимущество. Транспортная доступность: - 3 мин. пешком от м. ''Дмитровская'' и станции МЦД-2 - станция МЦД-1 планируется к запуску - 2 км от ТТК Помещение с отделкой Shell&Core и свободной планировкой позволит организовать пространство и выбрать дизайн под индивидуальные потребности. Предусмотрены все необходимые коммуникации и мощности в соответствии с современными стандартами. Преимущества ресторана в STONE Дмитровская: - витринное остекление - возможность размещения вывески - возможность организации летней веранды - высота потолков - 4,25 м - центральное кондиционирование - приточно-вытяжная вентиляция с функцией охлаждения и подогрева STONE - девелопер коммерческой и жилой недвижимости классов бизнес и премиум в Москве с 19-летним опытом. С 2022 года занимает лидирующую позицию на офисном рынке (рейтинг РБК). Сегодня в портфеле девелопера представлено 3 млн кв. м построенных, строящихся и проектируемых объектов, из которых более 1 млн кв. м находятся в стадии строительства. Компания имеет самый масштабный проектный портфель офисной недвижимости класса А на московском рынке (данные NF Group) и возглавляет топ-6 устойчивых девелоперов согласно исследованию F Research от Forbes. В настоящий момент девелопером представлено 16 бизнес-центров класса А, а также 3 жилых комплекса бизнес+ класса. ID.11712
1/6
1 500 000 000 ₽
Отдельностоящее здание,  Лялин переулок, 1/36 ст1
Курская7 мин
1335 м² · 1 123 596 ₽ за м²
Трехэтажный особняк в Лялином переулке в Басманном районе. Историческое здание с подвалом и чердаком после реконструкции в 2025 году. Фасад является образцом классической московской городской архитектуры XVIIIXIX веков. Главная входная группа выходит на первую линию пересечения двух улиц, со стороны двора имеется отдельный вход. Внутри смешанная планировка без отделки, высота потолков до 3,74 метра. Электрическая мощность составляет 96 кВт. Для удобства передвижения будут установлено два лифта. На прилегающей территории предусмотрена наземная парковка. Особняк подходит для размещения коммерции на первом этаже и для жизни на втором и третьем этажах. Главное о локации. Особняк расположен на первой линии перекрестка улицы Покровка и Лялина переулка в историко-культурном центре Москвы. Удобные выезды на Бульварное и Садовое кольца, на машине до ТТК тринадцать минут езды. До ближайшей станции метро ''Курская'' десять минут ходьбы, метро ''Красные ворота'', ''Тургеневская'', ''Чистые пруды'' и ''Чкаловская'' находятся в тринадцати минутах. История здания. Здание было возведено в конце XVIII века. В начале XIX века владение перешло московскому купцу Михаилу Тимофеевичу Яковлеву. В 1871 году дом перестроили по проекту архитектора Никифорова и адаптировали под размещение полноценных квартир для жильцов. Жилые помещения располагались на втором и третьем этажах, первый этаж главного корпуса активно использовался под коммерческую деятельность, включая мануфактурный магазин и булочную лавку. Подвал в это время отводился под хозяйственные нужды, такие как дворницкая и кладовые. Сегодня здание признано объектом культурного наследия и является олицетворением московской городской архитектуры XVIIIXIX веков. Комментарий эксперта. Меня зовут Марина Жукова — брокер компании Whitewill. Я отвечаю за продажу этого лота. Свяжитесь со мной, чтобы получить расширенную презентацию, больше фотографий или договориться о просмотре. Могу провести экскурсию по локации и познакомить вас с этим домом. ID 2 737.
1/3
1 500 000 000 ₽
Отдельностоящее здание,  Мясницкая, 10 ст1
Лубянка5 мин
1526 м² · 982 962 ₽ за м²
Трехэтажный особняк с подвалом и мансардой на Мясницкой улице в Басманном районе. Историческое здание 1917 года постройки, в настоящее время идет полная реконструкция с заменой коммуникаций. Фасад выполнен в стиле эклектики и остался почти нетронутым временем с конца XIX века. Внутри смешанная планировка без отделки, на 1-м этаже спланированы помещения под ритейл с отдельными входными группами. На остальных этажах будут размещаться офисные помещения. Высота потолков от 2,8 до 3,1 метров, электрическая мощность составляет 122 кВт, предусмотрена возможность увеличения до 202 кВт. Около соседних зданий располагается наземная платная городская парковка. Особняк подходит для арендного бизнеса или размещения офиса, ресторана или магазина. Главное о локации. Особняк расположен на 1-й линии домов рядом с Московским театром Олега Табакова, театром ''Современник'', Большим театром, Гостиным двором, Красной площадью, Кремлем и парком Зарядье. Удобный выезд на Бульварное кольцо в пяти минутах езды и на Садовое — в восьми минутах. В трёх минутах ходьбы находится станция метро ''Лубянка'', до станций ''Китай-город'' и ''Кузнецкий мост'' можно дойти за 7 минут, дорога до станций ''Площадь революции'', ''Тургеневская'' и ''Театральная'' занимает 10 минут пешком. История здания. Доходный дом, построенный в конце XVIII века на территории бывшего Вятского подворья, стал важной частью истории этого места. Предположительно, землю тогда арендовал московский купец Волченков, который разместил здесь погреба, торговые лавки, харчевню и жилые помещения. С 1891 года известный фотограф Петр Павлов арендовал дом и проживал в нем более 20 лет. Под его управлением дом продолжал активно использоваться — здесь размещались не только фотографическое ателье, но и магазины, мастерские, парикмахерская и даже зуболечебный кабинет. Сегодня особняк признан объектом культурного наследия регионального значения, особую ценность представляет сводчатое перекрытие подвального этажа конца XVIII века. Комментарий эксперта. Меня зовут Марина Жукова — брокер компании Whitewill. Я отвечаю за продажу этого лота. Свяжитесь со мной, чтобы получить расширенную презентацию, больше фотографий или договориться о просмотре. Могу провести экскурсию по локации и познакомить вас с этим домом. ID 2 718.
1/12
300 000 000 ₽
Универсальное помещение,  Усачева, 11
Фрунзенская6 мин
701 м² · 427 960 ₽ за м²
Продается помещение автомойки в одном из самых престижных и востребованных семейных комплексах премиум -класса ''Садовые Кварталы''! В комплексе 34 жилых корпуса, более 1200 квартир. Характеристики помещения и услуг: - Общая площадь 780 кв.м., этаж -1, - Автомойка на пять постов, - Детейлинг. Два отдельных помещения, - Шиномонтаж, мелкий ремонт, замена масла, заправка кондиционеров, - Кафе для посетителей со свой кухней и санузлом: - Офис и комната отдыха персонала, - Все необходимое оборудование для работы. Номер в базе: J27154
1/23
1 000 000 000 ₽
Отдельностоящее здание,  Волоколамское шоссе, 87 ст1
Трикотажная12 мин
5075 м² · 197 044 ₽ за м²
Отдельно стоящее четырёхэтажное здание площадью 4949 кв.м. Год постройки 1961. Высокие потолки.-4.метра Стены кирпичные. перекрытия железобетонные. Земельный участок площадью 0,83 га в аренде на 49 лет. Центральные коммуникации, железобетонные перекрытия. Удобный выезд на а МКАД и Волоколамское шоссе. Парковка на огороженной территории не менее 70 машиномест. В настоящее время сдано в краткосрочную аренду одному арендатору. Объект 3504-8176.
1/7
77 900 000 ₽
Торговые площади,  Барклая, 6
78 м² · 992 357 ₽ за м²
Лот: 36074. Угловое помещение Street Retail в ЖК ''Барклая 6'' Уникальное предложение в новом жилом комплексе с отличной транспортной доступностью и проходимостью. Локация: ЗАО, ул. Барклая, первая линия домов, угловое расположение с выездом на улицу. Доступность: Всего 7 минут пешком до метро ''Багратионовская''. Формат: Street Retail с отдельным входом и отличной видимостью. Особенности: Угловая позиция обеспечивает максимальный обзор и приток клиентов с двух направлений. Идеально для: кофейни, пекарни, салона связи, аптеки, цветочного или любого другого ритейл-бизнеса.
1/8
9 220 000 ₽
Офисное помещение,  Зиларт ЖК, 18/19
19 м² · 463 317 ₽ за м²
Продается помещение свободного назначения в ЖК ''ЗИЛАРТ''! Ищете идеальное помещение для офиса или бизнеса? Предлагаем помещение 19,9 м² с кладовой 3 м² в престижном ЖК ''ЗИЛАРТ'' — уникальное сочетание комфорта, функциональности и выгодного расположения! Особенности помещения: Площадь 19,9 м² + кладовое помещение 3 м² входит в стоимость. Панорамное остекление в пол — много естественного света и стильный вид. Без отделки — возможность создать интерьер под ваши задачи. 3 этаж — удобное расположение с входом со двора. Преимущества здания: 1 этаж: стрит-ритейл. 25 этажи: офисные помещения с кабинетной системой. Прямой выход к корпусу через Тюфелеву рощу. Соседние корпуса: ЗУМ и Торговая Галерея. Преимущества ЖК ''ЗИЛАРТ'': 17 корпусов уже сданы и заселены — живой и комфортный район. Уникальная инфраструктура: Благоустроенная набережная Марка Шагала. Парк Тюфелева роща. Музейно-выставочный зал ''Коллекция''. Транспортная доступность: 3 станции метро в пешей доступности: ''Автозаводская'', ''Тульская'', ''ЗИЛ'' (откроется в 2025 году). Удобный выезд на ТТК — 15 минут до Садового кольца. Срок сдачи: 4 квартал 2025 года. Дополнительно: Поможем с одобрением ипотеки. Проконсультируем и поможем определиться с выбором. Идеальное предложение для тех, кто ищет современное помещение для бизнеса в престижном районе! Звоните или оставляйте заявку в чат, чтобы узнать подробности! 1083438
1/17
650 000 000 ₽
Универсальное помещение,  Саляма Адиля, 2а
3915 м² · 166 003 ₽ за м²
СНИЖЕННАЯ ЦЕНА | УНИКАЛЬНОЕ И ВЫГОДНОЕ ПРЕДЛОЖЕНИЕ Продается ФОК в клубном доме Wellton SPA Residence Предлагается к продаже физкультурно-оздоровительный комплекс общей площадью 3 796 кв. м в составе премиального клубного дома Wellton SPA Residence. Локация: Объект находится в одном из самых удобных районов Москвы: - 9 минут до Серебряного бора - 15 минут до Рублево - 25 минут до Садового кольца и Архангельского - 30 минут до Москва-Сити - 40 минут до Кремля Характеристики: Общая площадь: 3 796 кв. м Этажность: -2 / -1 / 1 / 2 этажи Планировка: -2 этаж 410,4 кв. м (в том числе 8 машино-мест 118,7 кв. м) -1 этаж 2 450,7 кв. м 1 этаж 259,5 кв. м 2 этаж 676,3 кв. м Состояние помещений: под отделку. Возможна реализация различных концепций фитнес, wellness, медицинский центр, spa. Преимущества: Престижный клубный дом с премиальной инфраструктурой Удобная транспортная доступность Парковка на территории Возможность адаптации под потребности покупателя
1/17
993 650 000 ₽
Офисное помещение,  МКАД 1-й километр, 64й
2839 м² · 350 000 ₽ за м²
Эксклюзивный офис с панорамным видом, отдельным лифтом на паркинг и 12 м/м (дополнительные м/м можно докупить отдельно у застройщика). Офис площадью 2 839 кв.м. в состоянии shell&core представляет собой свободное пространство, позволяющее новому собственнику реализовать индивидуальное планировочное и дизайнерское решение в соответствии с собственными требованиями и корпоративными стандартами. Прямой доступ с парковки: отдельный лифт поднимается на 11 этаж. Ваши 12 м/м расположены в непосредственной близости от лифта. Бесплатно сделаем планировочные решения. Стоимость: 993 650 000 руб. включая НДС Рублёво Бизнес Парк расположен в районе Мякинино около МКАД, рядом с Новорижским Шоссе и напротив района Строгино. Ближайшее метро Липовая роща в 500 метрах (откроется в 2027 году). Пока можно воспользоваться метро Строгино в 15 минутах пешком. Доступны быстрые маршруты: 5 мин. до живописной бухты Москвы-реки, 20 мин. до Москва-Сити, 30/40 мин. до аэропортов Шереметьево/Внуково. >ID объекта - 106946 Звоните или пишите в чат. Пришлём презентацию и покажем офис.
1/12
121 103 400 ₽
Офисное помещение,  Проектируемый 4062-й проезд, 6 ст2
373 м² · 324 500 ₽ за м²
Продажа офисов в БЦ PORT PLAZA, стр.2. Комиссия брокерам - 2% Предложение от собственника! -Офисное помещение 373,2 м² на 6 этаже -Дизайнерский ремонт -Смешанная планировка (переговорная, кабинет, зона ресепшн) -Панорамное остекление -Центральная система вентиляции и кондиционирования -Профессиональная управляющая компания PORT PLAZA - комплекс офисных зданий В+ с развитой инфраструктурой, хорошей транспортной доступностью и живописными видами на набережную Идеальное расположение: -100 м от м. Технопарк -1,8 км от ТТК -500 м от Проспекта Андропова На территории охраняемый паркинг на 600 м/мест. Инфраструктура и окружение: -Благоустроенная территория с прямым выходом к набережной -Супермаркет Мираторг -Ресторан Sq Bar Wine&Grill -Фитнес-центр -Центр косметологии -Медицинский центр -множество уютных кофеен. В пешей доступности: ТРЦ Мегаполис, Северный и Южный ландшафтные парки, Остров мечты, офисы крупных компаний (МТС, Альфа-Банк, Райфайзен Банк, Landesbank Baden-Wurttemberg) Более подробную информацию можно уточнить у менеджера по телефону.
1/13
26 000 000 ₽
Офисное помещение,  Карманицкий переулок, 9
76 м² · 342 105 ₽ за м²
Лучшая цена!!!Продаётся помещение в бизнес центре Арбат. Плюсы приобретения в том что помещение не требует затрат,в здании абсолютно все после Ремонта и замен коммуникаций. Вход в здания находиться в 40 метрах от выхода из метро Смоленска. Свободная сделка.
1/33
100 650 000 ₽
Универсальное помещение,  Старокалужское шоссе, 62
576 м² · 174 740 ₽ за м²
Продажа помещений на первой линии в БЦ Валлекс от собственника Некоторые помещения с готовым ремонтом. некоторые в процессе (что-то можно сделать под ваши запросы-пожелания) 28 ИФНС Напротив станция метро Воронцовская -Недалеко Воронцовский парк, кафе, рестораны, БЦ и ТЦ, офисы развитая инфраструктура -Рядом улицы: Обручева, Профсоюзная, Архитектора Власова, Академика Челомея, Намёткина. Через дорогу ТЦ Калужский. Показываем, звоните! Без комиссии!
1/7
59 800 000 ₽
Универсальное помещение,  Каргопольская, 14 корп. 2
300 м² · 198 935 ₽ за м²
Продается помещение свободного назначения в 7 мин. пешком от метро Отрадное, с арендаторами Вайлдберриз и Аквапупс (детский бассейн). Договор на 3 года, МАП 378 400 руб., коммунальные платежи оплачиваются отдельно. О помещении: - отдельно стоящее здание - первый этаж - площадь 300.6 м2 - витринное остекление - отдельный вход, доступ 24/7 - высота потолков 2.8м - центральное отопление и водоснабжение Продажа от физ лица. Лот 125-101961
1/12
113 594 660 ₽
Офисное помещение,  Проектируемый 4062-й проезд, 6 ст2
394 м² · 287 800 ₽ за м²
Продажа офисов в БЦ PORT PLAZA, стр.2. Комиссия брокерам - 2% Предложение от собственника! -Офисное помещение 394,7 м² на 6 этаже -Дизайнерский ремонт -Смешанная планировка (переговорная, кабинет, зона ресепшн) -Панорамное остекление -Центральная система вентиляции и кондиционирования -Профессиональная управляющая компания PORT PLAZA - комплекс офисных зданий В+ с развитой инфраструктурой, хорошей транспортной доступностью и живописными видами на набережную Идеальное расположение: -100 м от м. Технопарк -1,8 км от ТТК -500 м от Проспекта Андропова На территории охраняемый паркинг на 600 м/мест. Инфраструктура и окружение: -Благоустроенная территория с прямым выходом к набережной -Супермаркет Мираторг -Ресторан Sq Bar Wine&Grill -Фитнес-центр -Центр косметологии -Медицинский центр -множество уютных кофеен. В пешей доступности: ТРЦ Мегаполис, Северный и Южный ландшафтные парки, Остров мечты, офисы крупных компаний (МТС, Альфа-Банк, Райфайзен Банк, Landesbank Baden-Wurttemberg) Более подробную информацию можно уточнить у менеджера по телефону.
1/12
148 409 560 ₽
Торговые площади,  1905 года, 1 ст3
434 м² · 341 800 ₽ за м²
Продажа торговых помещений в Бизнес-парке ПЕРЕДЕЛКИНО Предложение от застройщика! Рассрочка 0%. Возврат НДС. Комиссия брокерам - 3% При оплате 100% - скидки! ПЕРЕДЕЛКИНО — это современный камерный бизнес-парк класса A состоящий из четырех пятиэтажных зданий с панорамным остеклением, расположенный на территории Новой Москвы в окружении леса и активной жилой застройки. В непосредственной близости от основных транспортных магистралей - Боровское ш, Киевское ш, Минское ш, Можайское ш. - Первая линия Боровского шоссе - 10 минут пешком от м. Пыхтино - Открытая территория - Охрана 24/7 - Пешеходный бульвар с возможностью организации летних террас - Оптимальные площади для всех видов бизнеса Предлагается к продаже торговое помещение 434,2 м² на 1 этаже - Витринное остекление по фасаду - Высота потолков 5,3 м - Отдельные входы с улицы и из лобби (7 независимых входов) - Наличие мест для размещения рекламных вывесок - Наличие мокрых точек. - Электрическая мощность до 194 Вт/м² - Нагрузка на пол до 500 кг/м² - Современная противопожарная система с оповещением Трафик - Резиденты бизнес-парка - Резиденты ЖК в шаговой доступности (более 21 000) и ближайшем окружение (более 67 000 чел.) Новая Москва. Новая деловая перспектива. Растущая дорожная сеть, строящиеся жилые комплексы, десятки тысяч крупных, средних и малых бизнесов - все это говорит о блестящих перспективах территории. Вы можете быть уверены, что делаете выгодную инвестицию. Более подробную информацию можно уточнить у менеджера по телефону.
1/11
6 373 125 ₽
Универсальное помещение,  Тишинский Б. переулок, 38
22 м² · 283 250 ₽ за м²
Помещения свободного назначения в премиальном клубном доме. Подойдут под склады, келлеры, Помещения расположены на -1 этаже (подвал). SINATRA -клубный дом премиум-класса, расположенный в уютном переулке возле Садового кольца. Интенсивный пешеходный трафик гарантирован за счет жителей комплекса и района с развитой инфраструктурой: жилые комплексы, лицеи, школы, а также из-за территориального расположения рядом с Садовым кольцом.
1/24
465 912 000 ₽
Офисное помещение,  Стоун Савеловская бк, 1
Савеловская7 мин
862 м² · 540 000 ₽ за м²
Получение заключения о соответствии - декабрь 2025г. Переезд в 2026 году! Эксклюзивное предложение - продается половина видового офисного этажа в составе бизнес-центра класса А STONE Савеловская в высокой строительной готовности напрямую от застройщика STONE, лидера офисного рынка. Отличительной чертой является прекрасный вид на исторический центр города. Планировочные решения спроектированы в соответствии со стандартами офисной недвижимости девелопера: глубина помещения - до 10 м, высота потолков - 3,65 м, шаг колонн - 8,4 х 8,4 м. Окна в пол обеспечивают оптимальный уровень инсоляции. Несмотря на круглогодичную систему центрального кондиционирования и приточно-вытяжную вентиляцию с функцией охлаждения и подогрева, вы сможете воспользоваться функцией естественного проветривания. Бизнес-центр STONE Савеловская отличает безупречная транспортная доступность благодаря пересечению нескольких крупных транспортных путей: метро, БКЛ, МЦД позволяют удобно добраться в центр города и за его пределы, например в аэропорт Шереметьево. Остановка аэроэкспресса находится в 7 минутах от бизнес-центра. Транспортная доступность: - 7 мин. пешком от м. ''Савёловская'' - 7 мин. пешком до МЦД-1 с аэроэкспрессом до Шереметьево и станции МЦД-4 - 13 мин. пешком до м. ''Марьина Роща'' - 15 мин. до ''Москва-Сити'' без пересадок (БКЛ) - 500 м от ТТК В двухуровневом стилобате разместится вся необходимая инфраструктура: торговые помещения, кафе, рестораны, столовая для сотрудников, аптеки, банкоматы, фитнес-центр. В бизнес-центре предусмотрен подземный и наземный многоуровневый паркинг для резидентов, а также гостевой паркинг с выделенной зоной для автомобилей каршеринга и такси. Архитектура от бюро ''Цимайло Ляшенко и Партнеры'', благоустройство от бюро Basis, дизайн интерьера от лондонского бюро KEMELIN PARTNERS. С учетом активного пешеходного трафика на территории бизнес-центра общее благоустройство включает две зоны: общественное пространство на уровне земли со свободным доступом и терраса с павильонами для работы на открытом воздухе и кафе. STONE - девелопер коммерческой и жилой недвижимости классов бизнес и премиум в Москве с 19-летним опытом. С 2022 года занимает лидирующую позицию на офисном рынке (рейтинг РБК). Сегодня в портфеле девелопера представлено 3 млн кв. м построенных, строящихся и проектируемых объектов, из которых более 1 млн кв. м находятся в стадии строительства. Компания имеет самый масштабный проектный портфель офисной недвижимости класса А на московском рынке (данные NF Group) и возглавляет топ-6 устойчивых девелоперов согласно исследованию F Research от Forbes. В настоящий момент девелопером представлено 16 бизнес-центров класса А, а также 3 жилых комплекса бизнес+ класса. Центральный дом продаж девелопера находится всего 10 минутах ходьбы. Эксперты по коммерческой недвижности с радостью покажут проект в любое удобное время. ID.11670
1/8
163 735 000 ₽
Офисное помещение,  Дмитровский проезд, 1г
Дмитровская5 мин
357 м² · 458 000 ₽ за м²
Рассрочка 0% до окончания строительства В реализации - офисный блок в составе бизнес-центра класса А STONE Дмитровская напрямую от девелопера STONE, лидера офисного рынка. Первый бизнес-центр класса А в локации м. ''Дмитровская''. Бизнес-центр реализуется совместно с Мэрией г. Москвы в рамках программы комплексного развития территорий, что гарантирует максимально прозрачные условия и сроки реализации. Архитектура от бюро IND. Проектом предусмотрена 23-этажная офисная башня с динамичным фасадом, а также торговая галерея с панорамным остеклением. Общая площадь бизнес-центра составит 49 тыс. кв. м. Планировки офисных этажей соответствуют требованиям функционального офиса: глубина помещений - 8-10 м, высота потолков - 3,65 м. Окна в пол обеспечат оптимальный уровень инсоляции и предусматривают возможность естественного проветривания. Транспортная доступность: - 3 мин. пешком от м. ''Дмитровская'' - 2 мин. пешком до станции МЦД-2 - рядом строится станция МЦД-1, которая обеспечит прямую связь с Москва-Сити и ИЦ ''Сколково'' - прямой выезд на Северо-Восточную хорду - 2 км от ТТК В бизнес-центре предусмотрена расширенная инфраструктура: торговые помещения, кафе, рестораны, столовая для сотрудников, аптеки, банкоматы. Территория бизнес-центра будет благоустроена и открыта для жителей района. Для резидентов предусмотрен подземный паркинг. STONE - девелопер коммерческой и жилой недвижимости классов бизнес и премиум в Москве с 19-летним опытом. С 2022 года занимает лидирующую позицию на офисном рынке (рейтинг РБК). Сегодня в портфеле девелопера представлено 3 млн кв. м построенных, строящихся и проектируемых объектов, из которых более 1 млн кв. м находятся в стадии строительства. Компания имеет самый масштабный проектный портфель офисной недвижимости класса А на московском рынке (данные NF Group) и возглавляет топ-6 устойчивых девелоперов согласно исследованию F Research от Forbes. В настоящий момент девелопером представлено 16 бизнес-центров класса А, а также 3 жилых комплекса бизнес+ класса. ID.11682
1/8
21 638 400 ₽
Готовый бизнес,  Вольная, 35 ст4
Соколиная гора12 мин
78 м² · 276 000 ₽ за м²
СОБСТВЕННИКИ! Предлагается к продаже готовый арендный бизнес - торговое помещение площадью 78,4 м2 с арендатором: ПВЗ Ozon, Wildberries, КДА, МАП - 196 000 руб. (индексация при пролонгации - 15%). Объект расположен на 1-й линии ул. Вольная, на территории производственно-складского комплекса. Общий ЗУ на несколько строений в аренде до 2061 г. Характеристики помещения: - Отдельный вход с улицы, - Панорамное, витринное остекление, - Свободная планировка, - Высота потолков 3,7 м, - Мощность 20 кВт, - Собственный с/у, - Центральные коммуникации, - Наземная парковка на территории комплекса. В данный момент идет завершение ремонтных работ по фасаду здания! Прямо перед зданием находится остановка общественного транспорта. Хорошая транспортная развязка, шаговая доступность от МЦК Соколиная гора, метро Семеновская. Номер объекта: #1/537068/21663
1/17
432 735 000 ₽
Офисное помещение,  Двинцев, 3
848 м² · 510 000 ₽ за м²
Получение заключения о соответствии - декабрь 2025г. Переезд в 2026 году! Эксклюзивное предложение - продается половина видового офисного этажа в составе бизнес-центра класса А STONE Савеловская в высокой строительной готовности напрямую от застройщика STONE, лидера офисного рынка. Отличительной чертой является прекрасный вид на исторический центр города. Планировочные решения спроектированы в соответствии со стандартами офисной недвижимости девелопера: глубина помещения - до 10 м, высота потолков - 3,65 м, шаг колонн - 8,4 х 8,4 м. Окна в пол обеспечивают оптимальный уровень инсоляции. Несмотря на круглогодичную систему центрального кондиционирования и приточно-вытяжную вентиляцию с функцией охлаждения и подогрева, вы сможете воспользоваться функцией естественного проветривания. Бизнес-центр STONE Савеловская отличает безупречная транспортная доступность благодаря пересечению нескольких крупных транспортных путей: метро, БКЛ, МЦД позволяют удобно добраться в центр города и за его пределы, например в аэропорт Шереметьево. Остановка аэроэкспресса находится в 7 минутах от бизнес-центра. Транспортная доступность: - 7 мин. пешком от м. ''Савёловская'' - 7 мин. пешком до МЦД-1 с аэроэкспрессом до Шереметьево и станции МЦД-4 - 13 мин. пешком до м. ''Марьина Роща'' - 15 мин. до ''Москва-Сити'' без пересадок (БКЛ) - 500 м от ТТК В двухуровневом стилобате разместится вся необходимая инфраструктура: торговые помещения, кафе, рестораны, столовая для сотрудников, аптеки, банкоматы, фитнес-центр. В бизнес-центре предусмотрен подземный и наземный многоуровневый паркинг для резидентов, а также гостевой паркинг с выделенной зоной для автомобилей каршеринга и такси. Архитектура от бюро ''Цимайло Ляшенко и Партнеры'', благоустройство от бюро Basis, дизайн интерьера от лондонского бюро KEMELIN PARTNERS. С учетом активного пешеходного трафика на территории бизнес-центра общее благоустройство включает две зоны: общественное пространство на уровне земли со свободным доступом и терраса с павильонами для работы на открытом воздухе и кафе. STONE - девелопер коммерческой и жилой недвижимости классов бизнес и премиум в Москве с 19-летним опытом. С 2022 года занимает лидирующую позицию на офисном рынке (рейтинг РБК). Сегодня в портфеле девелопера представлено 3 млн кв. м построенных, строящихся и проектируемых объектов, из которых более 1 млн кв. м находятся в стадии строительства. Компания имеет самый масштабный проектный портфель офисной недвижимости класса А на московском рынке (данные NF Group) и возглавляет топ-6 устойчивых девелоперов согласно исследованию F Research от Forbes. В настоящий момент девелопером представлено 16 бизнес-центров класса А, а также 3 жилых комплекса бизнес+ класса. Центральный дом продаж девелопера находится всего 10 минутах ходьбы. Эксперты по коммерческой недвижности с радостью покажут проект в любое удобное время. ID.8291
1/18
72 471 000 ₽
Торговые площади,  Двинцев, 3
71 м² · 1 015 000 ₽ за м²
Получение заключения о соответствии - декабрь 2025г. Переезд в 2026 году! В реализации - угловое помещение ритейла в составе бизнес-центра класса А STONE Савеловская напрямую от девелопера STONE, лидера офисного рынка. Лот станет одним из наиболее ликвидных и высокодоходных активов за счет отсутствия конкурентного предложения в локации. - увеличенный трафик за счет сотрудников (10 000 человек) и гостей бизнес-центра, а также жителей района, в частности: в окружении бизнес-центра строится два крупных жилых комплекса на 5 600 жителей - ограниченное предложение в локации как конкурентное преимущество - свободный доступ для горожан 24/7 Помещение с отделкой Shell&Core и свободной планировкой позволит организовать пространство и выбрать дизайн под индивидуальные потребности. Возможно размещение салона красоты, студии для тренировок, ресторана, кафе, шоу-рума и т. д. Благоустроенная территория бизнес-центра станет центром притяжения для горожан. Транспортная доступность - 7 мин. пешком от м. ''Савеловская'' (кольцевая и радиальная линии) - 7 мин. пешком до МЦД-1 с аэроэкспрессом до Шереметьево и до станции МЦД-4 - 13 мин. пешком до м. ''Марьина Роща'' - 15 мин. до Москва-Сити без пересадок - 500 м от ТТК Преимущества помещения ритейла в STONE Савеловская - угловое помещение - высота потолков - 4,1 м - витринное остекление и место для размещения вывески - гостевой паркинг STONE - девелопер коммерческой и жилой недвижимости классов бизнес и премиум в Москве с 19-летним опытом. С 2022 года занимает лидирующую позицию на офисном рынке (рейтинг РБК). Сегодня в портфеле девелопера представлено 3 млн кв. м построенных, строящихся и проектируемых объектов, из которых более 1 млн кв. м находятся в стадии строительства. Компания имеет самый масштабный проектный портфель офисной недвижимости класса А на московском рынке (данные NF Group) и возглавляет топ-6 устойчивых девелоперов согласно исследованию F Research от Forbes. В настоящий момент девелопером представлено 16 бизнес-центров класса А, а также 3 жилых комплекса бизнес+ класса. ID.8836
1/27
32 490 000 ₽
Офисное помещение,  Научный проезд, 8 ст1
108 м² · 298 347 ₽ за м²
Вам нужен собственный офис для развития компании и бизнеса? Вы хотите вложить инвестиции в недвижимость и получать стабильный доход? Наше предложение решит вашу проблему, сэкономит время и деньги в долгосрочной перспективе: Премиальная локация — в самом центре делового кластера ЮЗАО, Видовые офисы ассоциируются с престижем и успешностью компании, Все помещения с ремонтом — не требуют дополнительных вложений, Высокая инвестиционная привлекательность — ликвидный формат, стабильный спрос на аренду. Преимущества покупки офиса в Офисном центре НА НАУЧНОМ: Панорамное остекление — хороший обзор и много естественного света. Открывающиеся окна — свежий воздух и комфорт, зеленая парковая зона. На верхнем этаже предусмотрена возможность обустройства панорамных видовых террас по периметру. В пешей доступности от станций метро Калужская и Воронцовская. Удобные подъездные пути: Профсоюзная ул., Научный пр., выезд на МЦК и БКЛ. Охраняемая парковка. Благоустроенная территория. Развитая инфраструктура. Рядом: магазины, кафе, столовые, автомойка, авторемонт. Без комиссии. Прямая продажа от собственника. Свяжитесь с нами прямо сейчас, чтобы узнать подробности и забронировать помещение, пока оно доступно. СПЕЦИАЛЬНАЯ ЦЕНА* действует при покупке офиса до 30 декабря. * Цена установлена как переменная, зависящая от рыночных условий, которые могут измениться к определенной дате, предложение ограничено по количеству доступных к продаже офисов.
  • 14
  • 15
  • 16
  • 17
  1. Недвижимость в Москве
  2. Продажа
  3. Коммерческая
  4. 12244 объявления

Может быть полезно

Ипотека

Узнайте за 10 минут, какой кредит вам одобрят банки

Подбор риелтора

Риелтор поможет купить или продать любую недвижимость

Журнал

Старый, но золотой жилой фонд: где в Москве прячутся самые уютные жилые кварталы Старый, но золотой жилой фонд: где в Москве прячутся самые уютные жилые кварталы
Рынок недвижимости в 2026: что будет с ценами и ипотекой Рынок недвижимости в 2026: что будет с ценами и ипотекой
Автономный энергодом — разбираем солнечные батареи и тепловые насосы Автономный энергодом — разбираем солнечные батареи и тепловые насосы
Новое в налогах в 2026 году: что изменится для физлиц Новое в налогах в 2026 году: что изменится для физлиц
Что посмотреть в Светлогорске и окрестностях Что посмотреть в Светлогорске и окрестностях
Читать все статьи
Продажа коммерческой недвижимости в Москве
  • по районам
  • Замоскворечье
  • Тверской
  • Хамовники
  • Войковский
  • Головинский
  • Молжаниновский
  • Алексеевский
  • Марфино
  • Свиблово
  • Вешняки
  • Измайлово
  • Перово
  • Капотня
  • Лефортово
  • Печатники
  • Братеево
  • Нагорный
  • Чертаново Центральное
  • Котловка
  • Ясенево
  • Можайский
  • Ново-Переделкино
  • Тропарёво-Никулино
  • Фили-Давыдково
  • Строгино
  • Старое Крюково
  • Красносельский
  • Якиманка
  • Дмитровский
  • Савёловский
  • Алтуфьевский
  • Марьина Роща
  • Северный
  • Северное Медведково
  • Восточный
  • Косино-Ухтомский
  • Преображенское
  • Северное Измайлово
  • Кузьминки
  • Люблино
  • Рязанский
  • Даниловский
  • Орехово-Борисово Северное
  • Чертаново Южное
  • Ломоносовский
  • Северное Бутово
  • Внуково
  • Очаково-Матвеевское
  • Куркино
  • Хорошёво-Мнёвники
  • Силино
  • Мещанский
  • Аэропорт
  • Западное Дегунино
  • Сокол
  • Бабушкинский
  • Бутырский
  • Останкинский
  • Южное Медведково
  • Восточное Измайлово
  • Метрогородок
  • Соколиная Гора
  • Марьино
  • Текстильщики
  • Донской
  • Орехово-Борисово Южное
  • Академический
  • Гагаринский
  • Обручевский
  • Тёплый Стан
  • Дорогомилово
  • Проспект Вернадского
  • Митино
  • Щукино
  • Крюково
  • Арбат
  • Пресненский
  • Беговой
  • Коптево
  • Тимирязевский
  • Ховрино
  • Бибирево
  • Лианозово
  • Отрадное
  • Ярославский
  • Гольяново
  • Новогиреево
  • Сокольники
  • Некрасовка
  • Южнопортовый
  • Зябликово
  • Нагатино-Садовники
  • Царицыно
  • Зюзино
  • Черёмушки
  • Крылатское
  • Раменки
  • Покровское-Стрешнево
  • Южное Тушино
  • Матушкино
  • Басманный
  • Таганский
  • Бескудниковский
  • Восточное Дегунино
  • Левобережный
  • Хорошёвский
  • Лосиноостровский
  • Ростокино
  • Богородское
  • Ивановское
  • Новокосино
  • Выхино-Жулебино
  • Нижегородский
  • Бирюлёво Восточное
  • Бирюлёво Западное
  • Москворечье-Сабурово
  • Нагатинский Затон
  • Чертаново Северное
  • Коньково
  • Южное Бутово
  • Кунцево
  • Солнцево
  • Филёвский Парк
  • Северное Тушино
  • Савёлки
  • 10-й
  • 11-й
  • 12-й
  • 14-й
  • 15-й
  • 16-й
  • 17-й
  • 18-й
  • 19-й
  • 2-й
  • 20-й
  • 21-й
  • 22-й
  • 23-й
  • 3-й
  • 4-й
  • 5-й
  • 6-й
  • 7-й
  • 8-й
  • 9-й
  • Внуковское
  • Вороновское
  • Воскресенское
  • Восточный округ
  • Город Зеленоград округ
  • Град Московский
  • Десёновское
  • Западный округ
  • Киевский
  • Клёновское
  • Кокошкино
  • Краснопахорское
  • Марушкинское
  • Михайлово-Ярцевское
  • Московский
  • Московский
  • Мосрентген
  • Новая Москва
  • Новомосковский округ
  • Новофёдоровское
  • Панфиловский
  • Первомайское
  • Первый Московский Город-Парк
  • Роговское
  • Рязановское
  • Северный округ
  • Северо-Восточный округ
  • Северо-Западный округ
  • Сосенское
  • Троицкий округ
  • Филимонковское
  • Центральный округ
  • Щаповское
  • Щербинка
  • Юго-Восточный округ
  • Юго-Западный округ
  • Южный округ
  • по метро
  • Авиамоторная
  • Автозаводская
  • Академическая
  • Александровский сад
  • Алексеевская
  • Алтуфьево
  • Аннино
  • Арбатская
  • Аэропорт
  • Бабушкинская
  • Багратионовская
  • Баррикадная
  • Бауманская
  • Беговая
  • Белорусская
  • Беляево
  • Бибирево
  • Библиотека им. Ленина
  • Новоясеневская
  • Боровицкая
  • Ботанический сад
  • Братиславская
  • Бульвар Адмирала Ушакова
  • Бульвар Дмитрия Донского
  • Бунинская аллея
  • Варшавская
  • ВДНХ
  • Владыкино
  • Водный стадион
  • Войковская
  • Волгоградский проспект
  • Волжская
  • Воробьевы горы
  • Выхино
  • Выставочная
  • Динамо
  • Дмитровская
  • Добрынинская
  • Домодедовская
  • Дубровка
  • Измайловская
  • Калужская
  • Кантемировская
  • Каховская
  • Каширская
  • Киевская
  • Китай-город
  • Кожуховская
  • Коломенская
  • Комсомольская
  • Коньково
  • Красногвардейская
  • Красносельская
  • Красные ворота
  • Крестьянская застава
  • Кропоткинская
  • Крылатское
  • Кузнецкий мост
  • Кузьминки
  • Кунцевская
  • Курская
  • Кутузовская
  • Ленинский проспект
  • Лубянка
  • Люблино
  • Марксистская
  • Марьино
  • Маяковская
  • Медведково
  • Международная
  • Менделеевская
  • Молодежная
  • Нагатинская
  • Нагорная
  • Нахимовский проспект
  • Новогиреево
  • Новокузнецкая
  • Новослободская
  • Новые Черемушки
  • Октябрьская
  • Октябрьское поле
  • Орехово
  • Отрадное
  • Охотный ряд
  • Павелецкая
  • Парк Культуры
  • Парк Победы
  • Партизанская
  • Первомайская
  • Перово
  • Петровско-Разумовская
  • Печатники
  • Пионерская
  • Планерная
  • Площадь Ильича
  • Площадь Революции
  • Полежаевская
  • Полянка
  • Пражская
  • Преображенская площадь
  • Пролетарская
  • Проспект Вернадского
  • Проспект Мира
  • Профсоюзная
  • Пушкинская
  • Речной вокзал
  • Рижская
  • Римская
  • Рязанский проспект
  • Савеловская
  • Свиблово
  • Севастопольская
  • Семеновская
  • Серпуховская
  • Смоленская
  • Сокол
  • Сокольники
  • Спортивная
  • Сретенский бульвар
  • Студенческая
  • Сухаревская
  • Сходненская
  • Таганская
  • Тверская
  • Театральная
  • Текстильщики
  • Теплый Стан
  • Тимирязевская
  • Третьяковская
  • Трубная
  • Тульская
  • Тургеневская
  • Тушинская
  • Улица 1905 года
  • Улица Академика Янгеля
  • Улица Горчакова
  • Бульвар Рокоссовского
  • Улица Скобелевская
  • Улица Старокачаловская
  • Университет
  • Филевский парк
  • Фили
  • Фрунзенская
  • Царицыно
  • Цветной бульвар
  • Черкизовская
  • Чертановская
  • Чеховская
  • Чистые пруды
  • Чкаловская
  • Шаболовская
  • Шоссе Энтузиастов
  • Щелковская
  • Щукинская
  • Электрозаводская
  • Юго-Западная
  • Южная
  • Ясенево
  • Краснопресненская
  • Строгино
  • Славянский бульвар
  • Мякинино
  • Волоколамская
  • Митино
  • Марьина роща
  • Достоевская
  • Шипиловская
  • Зябликово
  • Борисово
  • Новокосино
  • Пятницкое шоссе
  • Алма-Атинская
  • Жулебино
  • Лермонтовский проспект
  • Деловой центр
  • Лесопарковая
  • Битцевский парк
  • Спартак
  • Улица Сергея Эйзенштейна
  • Выставочный центр
  • Улица Академика Королева
  • Телецентр
  • Улица Милашенкова
  • Тропарево
  • Котельники
  • Технопарк
  • Румянцево
  • Саларьево
  • Фонвизинская
  • Бутырская
  • Хорошёво
  • Зорге
  • Панфиловская
  • Стрешнево
  • Балтийская
  • Коптево
  • Лихоборы
  • Окружная
  • Ростокино
  • Белокаменная
У метро
  • Андроновка
  • ЗИЛ
  • Лихоборы
  • Кутузовская
  • Нижегородская
  • Отрадное
  • Кузьминки
  • Бабушкинская
  • Соколиная гора
  • Динамо
  • Бауманская
  • Котельники
  • Петровский Парк
  • Октябрьская
  • Калужская
  • Кутузовская
  • Парк Победы
  • Печатники
  • Владыкино
  • Курская
  • Кунцевская
  • Боровицкая
  • Дубровка
  • Новые Черёмушки
  • Измайловская
  • Братиславская
  • Октябрьское поле
  • Ботанический сад
  • Орехово
  • Ленинский проспект
  • Парк Культуры
  • Киевская
  • Кантемировская
  • Лубянка
  • Охотный ряд
  • Каховская
  • Павелецкая
  • Люблино
  • Каширская
  • Марксистская
  • Бульвар Адмирала Ушакова
  • Китай-город
  • Крымская
  • Марьино
  • Кожуховская
  • Маяковская
  • Партизанская
  • Бульвар Дмитрия Донского
  • Коломенская
  • Медведково
  • Первомайская
  • Комсомольская
  • Красногвардейская
  • Пионерская
  • Молодёжная
  • Перово
  • Бунинская аллея
  • Петровско-Разумовская
  • Менделеевская
  • Коньково
  • Варшавская
  • Нагатинская
  • ВДНХ
  • Красносельская
  • Планерная
  • Красные ворота
  • Нагорная
  • Площадь Ильича
  • Площадь Революции
  • Нахимовский проспект
  • Полежаевская
  • Крестьянская застава
  • Кропоткинская
  • Полянка
  • Новогиреево
  • Крылатское
  • Новокузнецкая
  • Пражская
  • Баррикадная
  • Кузнецкий мост
  • Новослободская
  • Фонвизинская
  • Водный стадион
  • Авиамоторная
  • Бутырская
  • Войковская
  • Автозаводская
  • Академическая
  • Волгоградский проспект
  • Александровский сад
  • Хорошёво
  • Зорге
  • Стрешнево
  • Алексеевская
  • Алтуфьево
  • Коптево
  • Лихоборы
  • Аннино
  • Воробьёвы горы
  • Окружная
  • Панфиловская
  • Ростокино
  • Арбатская
  • Выхино
  • Аэропорт
  • Белокаменная
  • Локомотив
  • Измайлово
  • Беговая
  • Багратионовская
  • Андроновка
  • Дмитровская
  • Белорусская
  • Угрешская
  • Новохохловская
  • Нижегородская
  • ЗИЛ
  • Беляево
  • Добрынинская
  • Верхние котлы
  • Бибирево
  • Крымская
  • Волжская
  • Балтийская
  • Шелепиха
  • Лужники
  • Митино
  • Площадь Гагарина
  • Преображенская площадь
  • Новоясеневская
  • Библиотека им. Ленина
  • Домодедовская
  • Пролетарская
  • Волоколамская
  • Шипиловская
  • Проспект Вернадского
  • Проспект Мира
  • Марьина роща
  • Достоевская
  • Профсоюзная
  • Пушкинская
  • Рижская
  • Римская
  • Новокосино
  • Зябликово
  • Серпуховская
  • Речной вокзал
  • Рязанский проспект
  • Жулебино
  • Борисово
  • Савёловская
  • Лермонтовский проспект
  • Деловой центр
  • Свиблово
  • Лесопарковая
  • Семёновская
  • Пятницкое шоссе
  • Севастопольская
  • Сокольники
  • Спортивная
  • Алма-Атинская
  • Битцевский парк
  • Смоленская
  • Спартак
  • Сокол
  • Сретенский бульвар
  • Тропарёво
  • Технопарк
  • Румянцево
  • Саларьево
  • Минская
  • Текстильщики
  • Сухаревская
  • Мякинино
  • Калитники
  • Строгино
  • Студенческая
  • Славянский бульвар
  • Деловой центр
  • Таганская
  • Сходненская
  • Тверская
  • Театральная
  • Тёплый Стан
  • Раменки
  • Ломоносовский проспект
  • Тимирязевская
  • Третьяковская
  • Трубная
  • Хорошёвская
  • Тульская
  • ЦСКА
  • Тургеневская
  • Тушинская
  • Улица 1905 года
  • Солнцево
  • Улица Академика Янгеля
  • Лухмановская
  • Улица Дмитриевского
  • Некрасовка
  • Окская
  • Улица Горчакова
  • Косино
  • Бульвар Рокоссовского
  • Юго-Восточная
  • Улица Скобелевская
  • Электрозаводская
  • Стахановская
  • Лефортово
  • Улица Старокачаловская
  • Зюзино
  • Шелепиха
  • Университет
  • Рабочий посёлок
  • Филёвский парк
  • Фили
  • Фрунзенская
  • Царицыно
  • Цветной бульвар
  • Долгопрудная
  • Марк
  • Черкизовская
  • Аникеевка
  • Чертановская
  • Павшино
  • Чеховская
  • Чистые пруды
  • Трикотажная
  • Стрешнево
  • Чкаловская
  • Шаболовская
  • Шоссе Энтузиастов
  • Щёлковская
  • Щукинская
  • Юго-Западная
  • Южная
  • Ясенево
  • Краснопресненская
По районам
  • Молжаниновский
  • Клёновское
  • Новогиреево
  • Марьино
  • Нижегородский
  • Замоскворечье
  • Хорошевский
  • Пресненский
  • Строгино
  • Троицк
  • Беговой
  • Марьина роща
  • Преображенское
  • Даниловский
  • Бескудниковский
  • Хамовники
  • Бибирево
  • Измайлово
  • Текстильщики
  • Бабушкинский
  • Рязанский
  • Алтуфьевский
  • Печатники
  • Гольяново
  • Бутырский
  • Косино-Ухтомский
  • Южнопортовый
  • Тверской
  • Восточное Измайлово
  • Ивановское
  • Бирюлево Восточное
  • Якиманка
  • Новокосино
  • Бирюлево Западное
  • Аэропорт
  • Марфино
  • Перово
  • Лосиноостровский
  • Метрогородок
  • Лианозово
  • Братеево
  • Останкинский
  • Донской
  • Отрадное
  • Северное Измайлово
  • Зябликово
  • Ростокино
  • Соколиная гора
  • Москворечье-Сабурово
  • Орехово-Борисово Северное
  • Свиблово
  • Сокольники
  • Нагатино-Садовники
  • Войковский
  • Выхино-Жулебино
  • Нагатинский затон
  • Нагорный
  • Восточное Дегунино
  • Кузьминки
  • Орехово-Борисово Южное
  • Северное Медведково
  • Лефортово
  • Царицыно
  • Вешняки
  • Южное Медведково
  • Головинский
  • Ярославский
  • Чертаново Северное
  • Богородское
  • Люблино
  • Чертаново Центральное
  • Чертаново Южное
  • Дмитровский
  • Академический
  • Некрасовка
  • Восточный
  • Западное Дегунино
  • Коптево
  • Савеловский
  • Сокол
  • Арбат
  • Тимирязевский
  • Воскресенское
  • Ховрино
  • Басманный
  • Десёновское
  • Красносельский
  • Московский
  • Левобережный
  • Алексеевский
  • Мещанский
  • Таганский
  • Щербинка
  • Зюзино
  • Рязановское
  • Гагаринский
  • Северное Бутово
  • Ломоносовский
  • Коньково
  • Котловка
  • Обручевский
  • Теплый Стан
  • Черемушки
  • Ясенево
  • Южное Бутово
  • Дорогомилово
  • Крылатское
  • Кунцево
  • Можайский
  • Михайлово-Ярцевское
  • Ново-Переделкино
  • Очаково-Матвеевское
  • Митино
  • Солнцево
  • Раменки
  • Фили-Давыдково
  • Тропарево-Никулино
  • Филевский парк
  • Куркино
  • Щаповское
  • Покровское-Стрешнево
  • Северное Тушино
  • Первомайское
  • Щукино
  • Савёлки
  • Хорошево-Мневники
  • Матушкино
  • Старое Крюково
  • Силино
  • Южное Тушино
  • Крюково
По округам
  • Северо-Западный административный округ
  • Центральный административный округ
  • Северо-Восточный административный округ
  • Восточный административный округ
  • Юго-Восточный административный округ
  • Южный административный округ
  • Западный административный округ
  • Троицкий административный округ
  • Юго-Западный административный округ
  • Новомосковский административный округ
  • Северный административный округ
  • Зеленоградский административный округ
По субъектам области
  • Москва
  • Москва
  • Москва
  • Москва
  • Москва
  • № 150 кв-л
  • Родники мкр
  • Москва
  • Рязановское поселение
  • Москва
  • Москва
  • Москва
  • Москва
  • Москва
  • Москва
  • пос. Коммунарка
  • Москва
  • Москва
  • Москва
  • Москва
  • Москва
  • Москва
  • Москва
  • Москва
  • Москва
  • Москва
  • Москва
  • Москва
  • Москва
  • Москва
  • Москва
  • Москва
  • Москва
  • Москва
  • Москва
  • Москва
  • Москва
  • Москва
  • Прокшино бк
  • Москва
  • Москва
  • Москва
  • Москва
  • Москва
  • Москва
  • Москва
  • № 75 кв-л
  • пос. Первомайское
  • Москва
  • Москва
  • Москва
  • Москва
  • Москва
  • Москва
  • Москва
  • Москва
  • Москва
  • Москва
  • Москва
  • Москва
  • Москва
  • Москва
  • Москва
  • Москва
  • д. Столбово
  • Москва
  • Москва
  • Москва
  • пос. Знамя Октября
  • Москва
  • Москва
  • Москва
  • Москва
  • Москва
  • Москва
  • Москва
  • Москва
  • Москва
  • Москва
  • Москва
  • Москва
  • Москва
  • Москва
  • Москва
  • Г мкр
  • Москва
  • Москва
  • Москва
  • Москва
  • Москва
  • Москва
  • Москва
  • Москва
  • Москва
  • Москва
  • Москва
  • Москва
  • Москва
  • Москва
  • Москва
  • Москва
  • Москва
  • Москва
  • Москва
  • Москва
  • пос. Ватутинки
  • Москва
  • Москва
  • Москва
  • Москва
  • Москва
  • Москва
  • 40-й кв-л
  • 1-й мкр
  • Москва
  • Москва
  • Москва
  • Москва
  • Москва
  • Москва
  • Москва
  • Москва
  • Москва
  • Москва
  • Москва
  • Москва
  • Москва
  • Москва
  • Москва
  • Москва
  • Москва
  • Москва
  • Москва
  • Москва
  • Москва
  • Москва
  • Москва
  • Москва
  • Москва
  • Москва
  • Москва
  • Москва
  • Новомосковский ао
  • с. Остафьево
  • Москва
  • Юго-Восточный ао
  • Москва
  • Москва
  • Москва
  • Москва
  • Москва
  • Москва
  • Москва
  • Москва
  • Москва
  • Москва
  • Москва
  • Москва
  • Москва
  • Москва
  • Москва
  • Москва
  • № 152 кв-л
  • Москва
  • Москва
  • Москва
  • д. Санино
  • Москва
  • Москва
  • Москва
  • Москва
  • Москва
  • Москва
  • Москва
  • Москва
  • Москва
  • Москва
  • Москва
  • Москва
  • Москва
  • Марушкинское поселение
  • 22-й мкр
  • Москва
  • Москва
  • Москва
  • Москва
  • Москва
  • Москва
  • Москва
  • Москва
  • Москва
  • Москва
  • Москва
  • Москва
  • Москва
  • Москва
  • Москва
  • Москва
  • Филимонковское поселение
  • д. Большое Свинорье
  • Москва
  • Москва
  • Москва
  • Москва
  • Москва
  • Москва
  • Москва
  • Москва
  • Москва
  • Москва
  • Сколково инновационного центра тер.
  • Москва
  • Десеновское поселение
  • 4-й мкр
  • Москва
  • Внуковское поселение
  • Москва
  • Москва
  • Москва
  • Москва
  • Москва
  • Москва
  • Москва
  • Москва
  • Москва
  • Москва
  • Москва
  • Москва
  • Москва
  • Москва
  • Москва
  • Центральная зона
  • Москва
  • Москва
  • Москва
  • Москва
  • Москва
  • Москва
  • Москва
  • № 108 кв-л
  • Москва
  • Москва
  • Москва
  • Москва
  • Москва
  • Москва
  • Москва
  • Москва
  • Москва
  • Москва
  • Москва
  • Москва
  • Москва
  • Москва
  • Москва
  • Москва
  • Москва
  • Москва
  • Москва
  • № 103 кв-л
  • Москва
  • Москва
  • Москва
  • Москва
  • пос. Подсобного хозяйства Воскресенское
  • Москва
  • Москва
  • Москва
  • Москва
  • Москва
  • Москва
  • Москва
  • Москва
  • Москва
  • Москва
  • Москва
  • Москва
  • 32 кв-л
  • Москва
  • Москва
  • Москва
  • Москва
  • Москва
  • Москва
  • Москва
  • Москва
  • Москва
  • Москва
  • Москва
  • Москва
  • д. Сосенки
  • Москва
  • Москва
  • Москва
  • Москва
  • Москва
  • Москва

Некоторые материалы настоящего раздела могут содержать информацию, запрещенную для детей, не достигших шести лет.

Информация о возрастных ограничениях в отношении информационной продукции, подлежащая распространению на основании норм Федерального закона «О защите детей от информации, причиняющей вред их здоровью и развитию».

О компанииСправочный центрВакансии
© ООО «Н1.РУ»  Правила использования

Некоторые материалы настоящего раздела могут содержать информацию, запрещенную для детей, не достигших шести лет.

Информация о возрастных ограничениях в отношении информационной продукции, подлежащая распространению на основании норм Федерального закона «О защите детей от информации, причиняющей вред их здоровью и развитию».

Новостройки
Студии
Однокомнатные
Двухкомнатные
Трехкомнатные
Четырехкомнатные
Многокомнатные
Каталоги
Выделение цветом
Спецпредложение
Топ
Турбо
Вторичка
Однокомнатные
Комнаты
Студии
Коттеджи
Дома
Аренда недвижимости
Квартиры
Комнаты
Студии
Коттеджи
Дома
Города
Архангельск
Екатеринбург
Красноярск
Новосибирск
Омск
Пермь
Тюмень
Челябинск
Все города
Карта сайта
 Купите коммерческую недвижимость в Москве - 12 244 объявления в каталоге коммерческой недвижимости на N1. Средняя цена продажи или покупки составляет 287,5 млн ₽. Покупайте коммерческую недвижимость недорого на сайте N1.ru.