Мы объединились! Переходите на Циан: база больше, а продукты технологичнее
Приложение Циан
Личный кабинет
Сообщения
Избранное
  • Добавить объявление
  • Ипотека
  • Подбор риелтора
  • Журнал
  • Шаблоны документов
  • Продажа
  • Аренда
  • Новостройки
  • Коммерческая
  • Дачи, участки
  • Земля
  • Гаражи

Продажа коммерческой недвижимости в Москве

12 244 объяв.
1/11
2 000 000 000 ₽
Офисное помещение,  Пресненская набережная, 12
3000 м² · 666 667 ₽ за м²
Продажа офисных помещений в Башне Федерация Восток. -Схема продажи обсуждаема. -Высокие потолки и панорамное остекление во всю высоту с видом на всю Москву. На территории Москва-Сити можно найти офис для ведения бизнеса любого масштаба: от размещения небольшой компании, где работают всего несколько человек, до головного офиса крупной корпорации и штатом в несколько тысяч сотрудников. -Мы поможем найти оптимальный вариант по Вашим критериям поиска: необходимой площади и конфигурации, наличию отделки и офисной мебели, количеству человек, которых нужно разместить, месячному или годовому бюджету, другим критериям. Пришлём все презентации с фото, планировками и ценами. Добираться до ''Башни Федерация'' удобно на любом виде транспорта: - Удобный съезд с Третьего транспортного кольца - Подземное сообщение со станциями метро ''Деловой центр'', ''Выставочная'', ''Международная'' - Платформа ''Деловой центр'' Московского центрального кольца. Высокоскоростные лифты, развитая инфраструктура, самое удобное расположение к метро.
1/20
29 950 000 ₽
Офисное помещение,  Очаковское шоссе, 34
199 м² · 150 427 ₽ за м²
Собственник без комиссии. Предлагается к продаже стильный и комфортабельный офис с дизайнерским ремонтом на 35 рабочих мест, расположенный на 5 этаже бизнес-центра West Park класса B+. Светлое и уютное пространство включает в себя просторную зону open space, три отдельных кабинета, кабинет руководителя, оборудованную кухню и переговорную комнату. Из окон офиса открывается приятный вид. В офисе есть арендатор на долгосрочную аренду со стабильно высоким арендным потоком, что делает его привлекательным инвестиционным предложением. БЦ West Park отличается панорамным остеклением, представительской входной группой и высококачественной инфраструктурой: 6 лифтов, инженерные системы, вентиляция и кондиционирование, системы пожаротушения и контроля доступа, круглосуточная охрана и видеонаблюдение. Охраняемая наземная автостоянка на 400 машиномест. В шаговой доступности МЦД Очаково, автобусная остановка. Недалеко находятся ст.м. Аминьевская и Озерная. Идеальное место для размещения успешной компании, ценящей комфорт и престиж, а также выгодное предложение для инвесторов благодаря стабильно высокому арендному доходу.
1/35
588 245 000 ₽
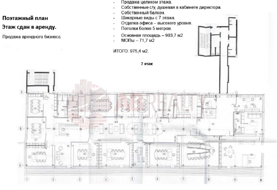
Офисное помещение,  Минская, 2ж
1213 м² · 484 791 ₽ за м²
Продажа от собственника! В ЗАО в БЦ Виктори Парк Плаза продаются офисы с арендаторами. БЦ класс А. Локация, р-н Раменки: 7 мин. пешком от м. Минская. Здание в стиле хай-тек. 2 этаж офисы 119 и 238 кв.м. 7 этаж целиком офис 975,4 кв.м - блок с кухней, своими с/у и душевой в кабинете руководителя, балконом. Панорамное остекление. Качественная офисная отделка. Высокие потолки. Дополнительно о БЦ: - Стильная входная группа - Современные инженерные коммуникации - Приточно-вытяжная вентиляция и центральное кондиционирование - Круглосуточная охрана и видеонаблюдение, пропускная система - Наземный охраняемый паркинг Цена продажи указана с НДС. Звоните и записывайтесь на просмотр!
1/8
19 900 000 ₽
Офисное помещение,  Вернадского проспект, 29
57 м² · 344 291 ₽ за м²
Продается офис с панорамным видом и высокими потолками. Собственник - ИП, с 2015 года. Арендатор - крупная фармкомпания с 2023 года, договор краткосрочный.
1/13
80 000 000 ₽
Универсальное помещение,  Машкова, 13 ст1
109 м² · 733 945 ₽ за м²
Помещение свободного назначения площадью 109м2 в самом центре Москвы! Помещение находится на 1 этаже клубного дома Современник. Ровная форма помещения, позволяет использовать его практически под любой бизнес. В помещении красивый входная группа с улицы Машкова, а вдоль всего помещения 5 окон. Выделенные мощность 27кВТ, с возможностью увеличения. ЖК Современник это дом премиального класса, расположенный недалеко от Чистопрудного бульвара. Наша компания состоит в ассоциации агентств элитной недвижимости AREA
1/8
21 888 000 ₽
Готовый бизнес,  Новотетерки, 8
55 м² · 393 669 ₽ за м²
Продается ГАБ в новом многофункциональном комплексе Kuskovo Space в трех минутах пешком от МЦД D4 ''Кусково''. Высокие потолки, панорамное остекление. Отдельный вход с улицы, а также вход через тамбур ''Пятерочки''. Электричество - 15 кВт. Надежный долгосрочный арендатор OZON, МАП - 160 000 руб. Отдельный кадастровый номер. Оперативный показ, юридическое сопровождение сделки, помощь с ипотекой. Звоните! Компания ZIP Realty является членом РГР (Российской гильдии риэлторов), ГРМ (Гильдии риэлторов Москвы), Гильдии риэлторов при МТПП (Московской торгово-промышленной палате), КОКОН (Консультанты коммерческой недвижимости), AREA (Ассоциации агентств элитной недвижимости)
1/23
37 000 000 ₽
Универсальное помещение,  Георгиевский переулок, 27 корп. 2
155 м² · 238 710 ₽ за м²
В новом ЖК ''Зеленый Парк '' продается коммерческое помещение свободного назначения по адресу : Георгиевский проспект 27к2 —Застройщик сдает в эксплуатацию детский сад на 250 мест и школу на 550 учащихся. —Рядом с коммерческой площадью уже расположены : пекарня ''Буханка'', Винлаб, Магнит, Пятерочка, Аптека ''Горздрав'', Wildberries, OZON. — Коммерческое помещение подойдет под следующие виды бизнеса : кофейни, рестораны, пиццерии, ногтевые студии, салоны красоты, парикмахерские, косметологии, медицинские центры, детские центры, игровые, детские магазины, зоомагазины. Объект : —Помещение 155.4 м2 , —ВЫСОТА ПОТОЛКОВ СОСТАВЛЯЕТ 5,67 метров, что открывает возможности для создания второго этажа и расширения количества посадочных мест. —Электричество 30 КВт ( можно согласовать больше) —Противопожарная система —Приточная вентиляция —Канализация —Водоснабжение —Отопление РАСПОЛОЖЕНИЕ: — Центральная аллея — В 50-ти метрах школа и детский сад — Удобные парковочные места — Свободная продажа. Показы в удобное для вас время. Звоните! Предоставляем услуги по одобрению ипотеки !
1/8
8 995 881 ₽
Готовый бизнес,  Рижский проезд, 3
18 м² · 497 010 ₽ за м²
Продается уютное помещение с арендатором на втором этаже кирпичного жилого дома. Сталинский дом, внешние стены толщиной 1 метр. Студия под ключ: отделка, меблировка, бытовая техника, кондиционер. Для жильцов доступна общая прачечная на первом этаже. 15 мин. пешком от станций метро ''ВДНХ'' и ''Алексеевская''. Один из самых зеленых районов Москвы. Развитая инфраструктура: магазины, аптеки, кафе, поликлиника. В шаговой доступности находится парк ''Сокольники''. МАП 78 000 руб./мес. Отдельный кадастровый номер. Оперативный показ, юридическое сопровождение сделки. Звоните!
1/4
22 372 000 ₽
Готовый бизнес,  Бауманская 2-я, 9/23 ст3
47 м² · 470 000 ₽ за м²
Продажа готового арендного бизнеса! Корпус Лаб, лот 1307 - 48,4 м², с отделкой. Высота потолков 3,9 м. Помещение находится на 3-м этаже 6-этажного строения с лифтом. Помещение с чистовой отделкой в минималистичном стиле. Полностью готово к эксплуатации. Преимущества инвестирования: -МАП 168 300 руб. -средняя арендная ставка 43.000 руб. за м²/год -окупаемость 11 лет В проекте Суперметалл предусмотрены помещения с качественными характеристиками как для собственного использования, так и готовый арендный бизнес с высокой доходностью. Благоустроенные крыши и двор, лобби и пространство для встреч в зеленом саду, известные гастрономические проекты, подземный отапливаемый паркинг. От создателей Хлебозавод, Дизайн Завода Флакон, Красной Стрелы. Суперметалл находится в 10 минутах пешком от м. Бауманская, рядом с МГТУ им. Баумана и Лефортовским парком.
1/4
25 850 000 ₽
Готовый бизнес,  Бауманская 2-я, 9/23 ст3
55 м² · 470 000 ₽ за м²
Продажа готового арендного бизнеса! Корпус Лаб, лот 1211 - 55 м², с отделкой. Высота потолков 3,2 м. Помещение находится на 2-м этаже 6-этажного строения с лифтом. Помещение с чистовой отделкой в индустриальном стиле. Полностью готово к эксплуатации. Преимущества инвестирования: -МАП 160 417 руб. -средняя арендная ставка 35.000 руб. за м²/год -окупаемость 13 лет В проекте Суперметалл предусмотрены помещения с качественными характеристиками как для собственного использования, так и готовый арендный бизнес с высокой доходностью. Благоустроенные крыши и двор, лобби и пространство для встреч в зеленом саду, известные гастрономические проекты, подземный отапливаемый паркинг. От создателей Хлебозавод, Дизайн Завода Флакон, Красной Стрелы. Суперметалл находится в 10 минутах пешком от м. Бауманская, рядом с МГТУ им. Баумана и Лефортовским парком.
1/5
170 000 000 ₽
Отдельностоящее здание,  Спасоналивковский 1-й переулок, 8 ст2
Полянка5 мин
341 м² · 498 242 ₽ за м²
Особняк 341 м2 на участке 201 м2. Земельный участок в аренде до 2063 года. 2 машиноместа на прилегающей территории. Инженерные коммуникации центральные. Сейчас в здании работает гостиница ''Дипломат''. Особняк расположен в 500 метрах от станций метро Полянка, Октябрьская, Добрынинская. Здание не является памятником архитектуры. Перекрытия железобетонные. Объект 3504-2759.
1/24
2 500 000 ₽
Универсальное помещение,  Волжский бульвар, 51 ст19
Волжская6 мин
19 м² · 128 205 ₽ за м²
Помещение СВОБОДНОГО назначения Сопровождение на всех этапах БЫСТРАЯ СДЕЛКА. Рассрочка, лизинг, ипотека! Предлагается к приобретению коммерческое помещение в бизнес-парке Волжский, расположенное по адресу: Волжский бульвар, д.51с19. Всего 4-5 минут пешком от метро Волжская. Помещение на -1 этаже малоэтажной постройки. Оформлена собственность, отдельный кадастровый номер. Площадь помещения — 19.5 м2. Есть СОБСТВЕННЫЙ ВХОД. В продаже коммерческая недвижимость свободного назначения на территории современного многофункционального бизнес-кластера. Комплекс со своей территорией расположен в ЮВАО, вблизи крупных транспортных артерий и станций метро: - ст.м. Волжская 520 м, - ст.м. Кузьминки 1400 м, - Волгоградский пр-т 1400 м, - СВХ 4 км, МКАД 4,5 км Здания на территории бизнес-парка представляют собой малоэтажную застройку из 19 строений, каждое из которых обладает своими уникальными характеристиками и планировочными решениями на любой запрос. Отделка фасадов выполнена панелями с имитацией клинкерного кирпича. Дополнительно на территории организованы зоны отдыха, также дополнительно имеется возможность для организации летних веранд и кафе. Оборудованы парковочные места для резидентов и их гостей. Бизнес-парк регулярно развивается и предлагает клиентам современные технологии. На территории работает станция зарядки электромобилей Green Drive. Два типа разъемов для быстрой зарядки — CCS Combo 2 и GBT. На зарядку электро- или гибридного автомобиля уйдет 20-30 минут. Техническая поддержка станции работает 24/7. Большое количество планировочных решений, статус свободного назначения позволяют адаптировать помещение под любой вид деятельности, исходя из ваших задач. Продуманная планировка дает возможность максимально эффективно использовать пространство. Площадь потолков варьируется от 2,7м до 7,11м, помещения на первом этаже имеют собственный вход. Здания и помещения прекрасно подходят под офисные и складские помещения, кафе, бары и рестораны, детские развлекательные и образовательные центры, салоны красоты и барбершопы, мастерские, цветочные, продовольственные и другие магазины, кофейни take-and-go, а также многое другое. Расположение способствует большому пешеходному трафику: - комплекс примыкает к парку Кузьминки, который является центром притяжения для многих резидентов и гостей столицы, а также постоянным местом прогулок и времяпровождения для жителей близлежащих домов, - в непосредственной близости плотный жилой массив, - рядом образовательные учреждения (Президентское кадетское училище, школы и сады), аптеки, поликлиники и больницы, продуктовые и непродовольственные магазины, - всего 5 минут пешком от ст.м. Волжская. Отличное решение для вашего бизнеса! Не упустите возможность стать частью современного и функционального бизнес-парка Волжский. Ежедневный показ. Онлайн показ. ЗВОНИТЕ! С удовольствием ответим на все ваши вопросы.
1/8
30 000 000 ₽
Торговые площади,  Бачуринская, 9а корп. 1
95 м² · 315 789 ₽ за м²
Продажа торгового помещения 94,7 м2 с арендатором алкогольный магазин на ул. Бачуринская, д. 9Ак1 (15 минут пешком от метро Коммунарка). 1-я линия домов. Помещение располагается на 1 этаже, состоит из 2-х блоков (36,2 и 58,5 м2), два входа (можно каждое помещение использовать автономно), открытая планировка, витринные окна по фасаду, высота потолков 3,10 метра, электрическая мощность 22 кВт (возможно увеличение). Помещение удачно располагается в первом доме на входе в жилой комплекс ''Новая Звезда'' (2899 квартир, около 7500 жителей), рядом остановка общественного транспорта. Интенсивный пешеходный трафик вдоль помещения. Жилой комплекс заселен на 100%. Окружение: алкомаркет ''Красное и Белое'', алкомаркет ''Винлаб'', супермаркет ''ВкусВилл'', аптека ''Горздрав'', кафе ''Black Grill House'', цветочный магазин. Арендатор: алкомаркет ''Хмельной ус'' и пиццерия, договор аренды сроком на 5 лет, арендная ставка 220 000 рублей в месяц, окупаемость 11,4 лет. Стоимость продажи 30 000 000 рублей. Без комиссии.
1/11
3 751 800 ₽
Универсальное помещение,  Кирпичная, 41 ст3
Измайлово13 мин
16 м² · 222 000 ₽ за м²
ПРОДАЖА коммерческого помещения в бизнес-квартале на ул. Кирпичная, 41 в Москве! БЫСТРАЯ СДЕЛКА! Бесплатное сопровождение на всех этапах. Рассрочка, лизинг, ипотека! Бизнес-квартал расположен на Востоке столицы в районе Соколиной горы. Он состоит из двух одноэтажных и одного двухэтажного зданий, в которых проведена полная реновация, установлены новые коммуникации. Одно из преимуществ — собственный отдельный вход для каждого помещения. Это позволит собственникам выстроить пространство полностью под себя и организовать его в соответствии со своими задачами и идеями. На облагороженной территории оборудованы места отдыха, посеян газон и высажены кустарники, а также представлено дополнительное озеленение. Стильные решения позволяют сохранить баланс между городской средой и природной и в то же время подчеркивают статус бизнес-квартала. Объект расположен в оживленном районе с высокой проходимостью. Это обеспечит большой поток клиентов и спрос на товары и услуги собственников. Поблизости расположены кафе и рестораны, административные здания, магазины, учебные заведения, жилые кварталы и многое другое, Измайловский парк. Также оборудована собственная парковка для резидентов и их клиентов. Это место отлично подойдет для стрит-ритейла, офисов, пунктов выдачи заказов (ПВЗ), салонов красоты, магазинов и шоу-румов, кафе и кофеен, а также многих других вариантов бизнеса. В шаговой доступности метро Семеновская и МЦД Соколиная гора. Ежедневный показ. Онлайн показ. ЗВОНИТЕ! Ответим на все вопросы.
1/5
22 162 640 ₽
Офисное помещение,  Мясницкая, 26а ст2
80 м² · 277 033 ₽ за м²
Код лота: 62C46C9-4001-7533-1. Реализуется на торгах. Продаем нежилое помещение 80 кв. м. , первый этаж, отдельный вход, расположено в ЦАО, в трех минутах Чистые пруды, Сретенский бульвар, Лубянка. Адрес: Российская Федерация, город Москва, вн. тер. г. муниципальный округ Басманный, улица Мясницкая, дом 26А, строение 2, помещение 4Н. Кадастровый номер: 77:01:0001038:1355. Запись о регистрации права собственности в Едином государственном реестре недвижимости: 77:01:0001038:1355-77/051/2022-3 от 11. 07. 2022. Обременения (ограничения): не зарегистрировано. Все коммуникации центральные, требуется ремонт. Хорошо подойдет для организация пункта выдачи, офиса продаж, шоурума. https://catalog. lot-online. ru/index. php?dispatch=products. view&product_id=1474727
1/39
198 918 752 ₽
Офисное помещение,  Моховая, 11 ст13
416 м² · 477 940 ₽ за м²
Имущество реализуется по поручению ГК ''Агентство по страхованию вкладов''. Код лота: РАД-437674. Реализуется на торгах. Продается помещение в центре Москвы площадью 416, 2 кв. м. , расположенное на 1-м этаже и в подвале офисного здания вблизи в м. Охотный ряд. Объект расположен в самом центре Москвы, рядом с Красной площадью и находится в 300 метрах от метро ''Охотный ряд'' на пересечении улиц Тверская и Моховая. В здание выполнена отделка офисного формата. Планировки выполнены в стандартном офисном формате и имеют кабинетную структуру. Окружение представлено в основном коммерческой застройкой, офисной и культурной. Рядом расположены: продуктовые магазины, рестораны и кафе, салоны красоты, поликлиники, стоматологии, медицинские центры, аптеки, банки, театры, скверы, парки и бульвары. Состав лота: - нежилое помещение (этаж 1, этаж 2) - 232, 8 кв. м, - нежилое помещение (подвал 0) - 183, 4 кв. м, - право аренды земельного участка - 500 +/- 8 кв. м. Вид права на помещения: собственность. Все коммуникации подведены к зданию, центральные. Установлены системы вентиляции и кондиционирования. Факторами инвестиционной привлекательности являются: Транспортная доступность: ст. м. Охотный ряд - 300 метров, ст. м. Александровский сад 460 метров, ст. м. Библиотека им. Ленина - 570 метров. - центр города, расположение внутри садового кольца. - развитая инфраструктура локации, - отличная транспортная доступность. https://catalog. lot-online. ru/index. php?dispatch=products. view&product_id=1586493
1/8
589 059 175 ₽
Отдельностоящее здание,  Керамический проезд, 59 ст2
5521 м² · 106 690 ₽ за м²
Код лота: 62C46C9-4001-7513-1. Реализуется на торгах. Продается нежилое здание площадью 5521, 2 кв. м, расположенное в Восточном Дегунино, Керамический проезд, д. 59, Строение 2. 6 минут пешком от станции Бескудниково. В здание 5 этажей, 1 подземный, здание в хорошем состоянии, все коммуникации центральные. Здание расположено на земельном участке площадью 7374 кв. м. Кадастровый номер: 77:09:0002007:10667. Категория земель: земли населенных пунктов. ВРИ: эксплуатации административного здания и стоянки служебных автомашин, под благоустройство. Участок в собственности. Конкурентные преимущества Удобная локация вблизи двух шоссе: Алтуфьевское и Дмитровское, Наилучшее использование объекта - под медицинский центр, отель, офис и другое. https://catalog. lot-online. ru/index. php?dispatch=products. view&product_id=1468365
1/50
51 940 500 ₽
Офисное помещение,  Каширское шоссе, 3 корп. 2 ст9
335 м² · 155 000 ₽ за м²
В ЮАО в бизнес-квартале Сириус Парк продаются офисы БЕЗ отделки. Класс В+. Деловой квартал состоит из 6 корпусов. Здание в стиле хай-тек. Панорамное остекление. Высокие потолки 3,5-4,6 м. Офисы с видом на улицу или в атриум. Дополнительно о БЦ: - Стильная входная группа - Скоростные панорамные лифты - Современные инженерные коммуникации - Приточно-вытяжная вентиляция и центральное кондиционирование - Круглосуточная охрана и видеонаблюдение, пропускная система - Наземный охраняемый паркинг Локация, р-н Нагатино-Садовники: 7-10 мин. пешком от м. Нагатинская, м. Коломенская. От м. Нагатинская до комплекса организованы бесплатные шаттлы. Близость главных кольцевых автодорог: 5 км. до ТТК, до МКАД - 12 км, до Садового кольца - 8 км. Прямая дорога по скоростной Каширской трассе позволит добраться за 40-50 мин. до аэропорта Домодедово. Стоимость продажи офисов 185 000 руб. за кв.м с НДС. От 330 кв.м - 155 000 руб. за кв.м с НДС. Звоните, оперативный показ!
1/43
270 000 000 ₽
Отдельностоящее здание,  8 Марта, 6а ст2
Петровский Парк14 мин
895 м² · 301 676 ₽ за м²
Особняк 895 м2 в северном округе Москвы, в шаговой доступности от метро Аэропорт. Здание построено в 1951 году. Капитальный ремонт сделан в 2001 году. Стены кирпичные, перекрытия железобетонные. Приточно-вытяжная система вентиляции. Высота потолков 4,1 метра. Собственная огороженная территория. Земельный участок оформлен в долгосрочную аренду.-1043м2 Инженерные коммуникации центральные. Электрическая мощность 100 кВт. Выполнен офисный ремонт, парковка на 14 автомобилей на собственной территории. Объект 3504-2687.
1/11
21 500 000 ₽
Универсальное помещение,  Наташи Качуевской, 3
47 м² · 457 447 ₽ за м²
Объект 541104. Продажа Готового арендного бизнеса возле станции метро улица Дмитриевского ! Угловое помещение в новом доме 2023 года постройки ! Объект расположен на 1 этаже ЖК Дмитриевский. 1-й дом от станции метро - 2 мин. пешком. Отдельный вход с улицы. В помещении выполнен дизайнерский ремонт ! Площадь - 47 м2 Высокие потолки - 4 м. Витринное остекление . Система вентиляции. Кондиционирование. Мокрая точка. Арендатор сетевая кофейня МАП - 170000р (коммунальные расходы арендатор оплачивает дополнительно) По соседству сетевые арендаторы - ПВЗ Яндекс Маркет , Ермолино , ВкусВилл , ПВЗ Ozon , ПВЗ Lamoda Быстрый выход на сделку , продавец физическое лицо ! Номер объекта: #1/541104/16963
1/11
75 500 000 ₽
Торговые площади,  Амурская, 1/2
96 м² · 786 458 ₽ за м²
Продажа торгового помещения площадью 96,2 м2 на ул. Амурская, д.1/2/1 (5-7 минут пешком от м. Локомотив / Черкизовская ). Помещение 96,2 м2 располагается на 1 этаже, открытая планировка, отдельный вход с фасада, высота потолка 4 м. Парковка перед фасадом. Место для размещения рекламы. Электрическая мощность 30 кВт Напротив построен большой ЖК ''Амурский парк'', далее ''Левел Амурский''. Дом построен в 2023 году, заселён. в радиусе 300 метров 7 388 квартир. Рядом ведется строительно новой очереди ЖК ''Амурский парк''. Помещение расположено на 1-й линии, с витринами на 1ю линию, трафик идущий от метро проходит через помещение. Помещение расположено на центральном перекрестке района. Постоянный трафик. Арендаторы: Пекарня Буханка, цветочный магазин. Месячный арендный платеж: 562 000 рублей. Договор аренды на 5 лет. Окупаемость 11 лет. Стоимость 75 500 000 рублей. Без комиссии.
1/5
1 840 000 000 ₽
Отдельностоящее здание,  Щипковский 1-й переулок, 3
Серпуховская7 мин
9208 м² · 199 820 ₽ за м²
На продажу предлагается отдельно стоящее четырехэтажное офисное здание 1972 года постройки. Площадь здания 9 208 кв.м. Перекрытия железобетонные. Земельный участок площадью 0,41 га в долгосрочной аренде до 2072 года. Огороженная парковка на 27 автомобилей. ВРИ - 1.2.5. общественное питание и 1.2.7. размещение административных и офисных зданий. Центральные коммуникации, выделенная электрическая мощность 654 кВт. Перекрытия железобетонные, смешанная планировка. Высота потолков 3,5м. Объект 3504-8175.
1/10
18 100 000 ₽
Офисное помещение,  Павелецкий 2-й проезд, 5 ст1
Автозаводская12 мин
61 м² · 296 721 ₽ за м²
ЭКСКЛЮЗИВНО! Продается функциональный офис в бизнес-центре класса В+ Riverdale. Поможем посадить арендатора и создать источник пассивного дохода (ГАБ). Рядом с БЦ строится ЖК Премиум класса, что несомненно положительно отразится на инвестиционной привлекательности БЦ и вашего актива! Характеристики помещения: - Смешанная планировка (1 кабинет+open space ) - Центральное кондиционирование - Приточно-вытяжная вентиляция - Открывающиеся окна Локация и транспортная доступность: - 10 мин до ТТТ - 10 мин до Садового кольца - 15 мин автобусе от ст.м. ''Павелецкая'' - 15 на автобусе от ст.м. ''Полежаевская'' - 5 мин пешком от ж/д станции ''Дербенеская'' О самом бизнес центре: Офисный центр относится к зданиям категории В+ и полностью отвечает высоким требованиям относительно эргономичности и наличия инженерных коммуникаций. Здание бизнес-центра это 25100 кв.м арендных площадей. 8-этажный офисный комплекс ''Riverdale'' образец офисного центра оптимальной высоты, когда на верхние этажи можно подняться даже по лестнице. В бизнес-центре имеются кафе, рестораны, а также конференц-залы для деловых встреч. Для арендаторов есть коворкинг-зоны. Вблизи находятся торговые центры, банки и деловые комплексы, а также парки для отдыха. Оперативный показ, звоните!
1/11
120 000 000 ₽
Офисное помещение,  Страстной бульвар, 4
158 м² · 759 494 ₽ за м²
Предлагается представительское нежилое помещение в центре Москвы с видом на памятник Пушкину, со своим балконом.Офис находится буквально в 1 минуте от Метро Чеховская,в помещении сделан качественный ремонт.
1/19
33 000 000 ₽
Офисное помещение,  Щепкина, 60/2 ст1
79 м² · 417 193 ₽ за м²
Продаётся удобное офисное помещение, отдельный вход со стороны улицы. Планировка: -Прихожая с просторным коридором -3 изолированных кабинета 15,6-16,8-14 кв.м. с мебелью -Полностью оборудованная кухня 8,1 кв.м. -с/у - 5-ти метровая функциональная кладовка На окнах роль-ставни. Окна на улицу и во двор.
  • 18
  • 19
  • 20
  • 21
  1. Недвижимость в Москве
  2. Продажа
  3. Коммерческая
  4. 12244 объявления

Может быть полезно

Ипотека

Узнайте за 10 минут, какой кредит вам одобрят банки

Подбор риелтора

Риелтор поможет купить или продать любую недвижимость

Журнал

Исламская ипотека и исламский банкинг: что это, как работает в России, изменения в 2026 Исламская ипотека и исламский банкинг: что это, как работает в России, изменения в 2026
Когда убирают ёлку и 5 способов сделать это экологично Когда убирают ёлку и 5 способов сделать это экологично
Как проверить надёжность застройщика перед покупкой квартиры Как проверить надёжность застройщика перед покупкой квартиры
Что такое СИП-панели и какие плюсы и минусы у дома, построенного из этого материала Что такое СИП-панели и какие плюсы и минусы у дома, построенного из этого материала
Личный опыт: я переехал в деревню, восстановил бабушкин дом и стал блогером Личный опыт: я переехал в деревню, восстановил бабушкин дом и стал блогером
Читать все статьи
Продажа коммерческой недвижимости в Москве
  • по районам
  • Замоскворечье
  • Тверской
  • Хамовники
  • Войковский
  • Головинский
  • Молжаниновский
  • Алексеевский
  • Марфино
  • Свиблово
  • Вешняки
  • Измайлово
  • Перово
  • Капотня
  • Лефортово
  • Печатники
  • Братеево
  • Нагорный
  • Чертаново Центральное
  • Котловка
  • Ясенево
  • Можайский
  • Ново-Переделкино
  • Тропарёво-Никулино
  • Фили-Давыдково
  • Строгино
  • Старое Крюково
  • Красносельский
  • Якиманка
  • Дмитровский
  • Савёловский
  • Алтуфьевский
  • Марьина Роща
  • Северный
  • Северное Медведково
  • Восточный
  • Косино-Ухтомский
  • Преображенское
  • Северное Измайлово
  • Кузьминки
  • Люблино
  • Рязанский
  • Даниловский
  • Орехово-Борисово Северное
  • Чертаново Южное
  • Ломоносовский
  • Северное Бутово
  • Внуково
  • Очаково-Матвеевское
  • Куркино
  • Хорошёво-Мнёвники
  • Силино
  • Мещанский
  • Аэропорт
  • Западное Дегунино
  • Сокол
  • Бабушкинский
  • Бутырский
  • Останкинский
  • Южное Медведково
  • Восточное Измайлово
  • Метрогородок
  • Соколиная Гора
  • Марьино
  • Текстильщики
  • Донской
  • Орехово-Борисово Южное
  • Академический
  • Гагаринский
  • Обручевский
  • Тёплый Стан
  • Дорогомилово
  • Проспект Вернадского
  • Митино
  • Щукино
  • Крюково
  • Арбат
  • Пресненский
  • Беговой
  • Коптево
  • Тимирязевский
  • Ховрино
  • Бибирево
  • Лианозово
  • Отрадное
  • Ярославский
  • Гольяново
  • Новогиреево
  • Сокольники
  • Некрасовка
  • Южнопортовый
  • Зябликово
  • Нагатино-Садовники
  • Царицыно
  • Зюзино
  • Черёмушки
  • Крылатское
  • Раменки
  • Покровское-Стрешнево
  • Южное Тушино
  • Матушкино
  • Басманный
  • Таганский
  • Бескудниковский
  • Восточное Дегунино
  • Левобережный
  • Хорошёвский
  • Лосиноостровский
  • Ростокино
  • Богородское
  • Ивановское
  • Новокосино
  • Выхино-Жулебино
  • Нижегородский
  • Бирюлёво Восточное
  • Бирюлёво Западное
  • Москворечье-Сабурово
  • Нагатинский Затон
  • Чертаново Северное
  • Коньково
  • Южное Бутово
  • Кунцево
  • Солнцево
  • Филёвский Парк
  • Северное Тушино
  • Савёлки
  • 10-й
  • 11-й
  • 12-й
  • 14-й
  • 15-й
  • 16-й
  • 17-й
  • 18-й
  • 19-й
  • 2-й
  • 20-й
  • 21-й
  • 22-й
  • 23-й
  • 3-й
  • 4-й
  • 5-й
  • 6-й
  • 7-й
  • 8-й
  • 9-й
  • Внуковское
  • Вороновское
  • Воскресенское
  • Восточный округ
  • Город Зеленоград округ
  • Град Московский
  • Десёновское
  • Западный округ
  • Киевский
  • Клёновское
  • Кокошкино
  • Краснопахорское
  • Марушкинское
  • Михайлово-Ярцевское
  • Московский
  • Московский
  • Мосрентген
  • Новая Москва
  • Новомосковский округ
  • Новофёдоровское
  • Панфиловский
  • Первомайское
  • Первый Московский Город-Парк
  • Роговское
  • Рязановское
  • Северный округ
  • Северо-Восточный округ
  • Северо-Западный округ
  • Сосенское
  • Троицкий округ
  • Филимонковское
  • Центральный округ
  • Щаповское
  • Щербинка
  • Юго-Восточный округ
  • Юго-Западный округ
  • Южный округ
  • по метро
  • Авиамоторная
  • Автозаводская
  • Академическая
  • Александровский сад
  • Алексеевская
  • Алтуфьево
  • Аннино
  • Арбатская
  • Аэропорт
  • Бабушкинская
  • Багратионовская
  • Баррикадная
  • Бауманская
  • Беговая
  • Белорусская
  • Беляево
  • Бибирево
  • Библиотека им. Ленина
  • Новоясеневская
  • Боровицкая
  • Ботанический сад
  • Братиславская
  • Бульвар Адмирала Ушакова
  • Бульвар Дмитрия Донского
  • Бунинская аллея
  • Варшавская
  • ВДНХ
  • Владыкино
  • Водный стадион
  • Войковская
  • Волгоградский проспект
  • Волжская
  • Воробьевы горы
  • Выхино
  • Выставочная
  • Динамо
  • Дмитровская
  • Добрынинская
  • Домодедовская
  • Дубровка
  • Измайловская
  • Калужская
  • Кантемировская
  • Каховская
  • Каширская
  • Киевская
  • Китай-город
  • Кожуховская
  • Коломенская
  • Комсомольская
  • Коньково
  • Красногвардейская
  • Красносельская
  • Красные ворота
  • Крестьянская застава
  • Кропоткинская
  • Крылатское
  • Кузнецкий мост
  • Кузьминки
  • Кунцевская
  • Курская
  • Кутузовская
  • Ленинский проспект
  • Лубянка
  • Люблино
  • Марксистская
  • Марьино
  • Маяковская
  • Медведково
  • Международная
  • Менделеевская
  • Молодежная
  • Нагатинская
  • Нагорная
  • Нахимовский проспект
  • Новогиреево
  • Новокузнецкая
  • Новослободская
  • Новые Черемушки
  • Октябрьская
  • Октябрьское поле
  • Орехово
  • Отрадное
  • Охотный ряд
  • Павелецкая
  • Парк Культуры
  • Парк Победы
  • Партизанская
  • Первомайская
  • Перово
  • Петровско-Разумовская
  • Печатники
  • Пионерская
  • Планерная
  • Площадь Ильича
  • Площадь Революции
  • Полежаевская
  • Полянка
  • Пражская
  • Преображенская площадь
  • Пролетарская
  • Проспект Вернадского
  • Проспект Мира
  • Профсоюзная
  • Пушкинская
  • Речной вокзал
  • Рижская
  • Римская
  • Рязанский проспект
  • Савеловская
  • Свиблово
  • Севастопольская
  • Семеновская
  • Серпуховская
  • Смоленская
  • Сокол
  • Сокольники
  • Спортивная
  • Сретенский бульвар
  • Студенческая
  • Сухаревская
  • Сходненская
  • Таганская
  • Тверская
  • Театральная
  • Текстильщики
  • Теплый Стан
  • Тимирязевская
  • Третьяковская
  • Трубная
  • Тульская
  • Тургеневская
  • Тушинская
  • Улица 1905 года
  • Улица Академика Янгеля
  • Улица Горчакова
  • Бульвар Рокоссовского
  • Улица Скобелевская
  • Улица Старокачаловская
  • Университет
  • Филевский парк
  • Фили
  • Фрунзенская
  • Царицыно
  • Цветной бульвар
  • Черкизовская
  • Чертановская
  • Чеховская
  • Чистые пруды
  • Чкаловская
  • Шаболовская
  • Шоссе Энтузиастов
  • Щелковская
  • Щукинская
  • Электрозаводская
  • Юго-Западная
  • Южная
  • Ясенево
  • Краснопресненская
  • Строгино
  • Славянский бульвар
  • Мякинино
  • Волоколамская
  • Митино
  • Марьина роща
  • Достоевская
  • Шипиловская
  • Зябликово
  • Борисово
  • Новокосино
  • Пятницкое шоссе
  • Алма-Атинская
  • Жулебино
  • Лермонтовский проспект
  • Деловой центр
  • Лесопарковая
  • Битцевский парк
  • Спартак
  • Улица Сергея Эйзенштейна
  • Выставочный центр
  • Улица Академика Королева
  • Телецентр
  • Улица Милашенкова
  • Тропарево
  • Котельники
  • Технопарк
  • Румянцево
  • Саларьево
  • Фонвизинская
  • Бутырская
  • Хорошёво
  • Зорге
  • Панфиловская
  • Стрешнево
  • Балтийская
  • Коптево
  • Лихоборы
  • Окружная
  • Ростокино
  • Белокаменная
У метро
  • Андроновка
  • ЗИЛ
  • Лихоборы
  • Кутузовская
  • Нижегородская
  • Отрадное
  • Кузьминки
  • Бабушкинская
  • Соколиная гора
  • Динамо
  • Бауманская
  • Котельники
  • Петровский Парк
  • Октябрьская
  • Калужская
  • Кутузовская
  • Парк Победы
  • Печатники
  • Владыкино
  • Курская
  • Кунцевская
  • Боровицкая
  • Дубровка
  • Новые Черёмушки
  • Измайловская
  • Братиславская
  • Октябрьское поле
  • Ботанический сад
  • Орехово
  • Ленинский проспект
  • Парк Культуры
  • Киевская
  • Кантемировская
  • Лубянка
  • Охотный ряд
  • Каховская
  • Павелецкая
  • Люблино
  • Каширская
  • Марксистская
  • Бульвар Адмирала Ушакова
  • Китай-город
  • Крымская
  • Марьино
  • Кожуховская
  • Маяковская
  • Партизанская
  • Бульвар Дмитрия Донского
  • Коломенская
  • Медведково
  • Первомайская
  • Комсомольская
  • Красногвардейская
  • Пионерская
  • Молодёжная
  • Перово
  • Бунинская аллея
  • Петровско-Разумовская
  • Менделеевская
  • Коньково
  • Варшавская
  • Нагатинская
  • ВДНХ
  • Красносельская
  • Планерная
  • Красные ворота
  • Нагорная
  • Площадь Ильича
  • Площадь Революции
  • Нахимовский проспект
  • Полежаевская
  • Крестьянская застава
  • Кропоткинская
  • Полянка
  • Новогиреево
  • Крылатское
  • Новокузнецкая
  • Пражская
  • Баррикадная
  • Кузнецкий мост
  • Новослободская
  • Фонвизинская
  • Водный стадион
  • Авиамоторная
  • Бутырская
  • Войковская
  • Автозаводская
  • Академическая
  • Волгоградский проспект
  • Александровский сад
  • Хорошёво
  • Зорге
  • Стрешнево
  • Алексеевская
  • Алтуфьево
  • Коптево
  • Лихоборы
  • Аннино
  • Воробьёвы горы
  • Окружная
  • Панфиловская
  • Ростокино
  • Арбатская
  • Выхино
  • Аэропорт
  • Белокаменная
  • Локомотив
  • Измайлово
  • Беговая
  • Багратионовская
  • Андроновка
  • Дмитровская
  • Белорусская
  • Угрешская
  • Новохохловская
  • Нижегородская
  • ЗИЛ
  • Беляево
  • Добрынинская
  • Верхние котлы
  • Бибирево
  • Крымская
  • Волжская
  • Балтийская
  • Шелепиха
  • Лужники
  • Митино
  • Площадь Гагарина
  • Преображенская площадь
  • Новоясеневская
  • Библиотека им. Ленина
  • Домодедовская
  • Пролетарская
  • Волоколамская
  • Шипиловская
  • Проспект Вернадского
  • Проспект Мира
  • Марьина роща
  • Достоевская
  • Профсоюзная
  • Пушкинская
  • Рижская
  • Римская
  • Новокосино
  • Зябликово
  • Серпуховская
  • Речной вокзал
  • Рязанский проспект
  • Жулебино
  • Борисово
  • Савёловская
  • Лермонтовский проспект
  • Деловой центр
  • Свиблово
  • Лесопарковая
  • Семёновская
  • Пятницкое шоссе
  • Севастопольская
  • Сокольники
  • Спортивная
  • Алма-Атинская
  • Битцевский парк
  • Смоленская
  • Спартак
  • Сокол
  • Сретенский бульвар
  • Тропарёво
  • Технопарк
  • Румянцево
  • Саларьево
  • Минская
  • Текстильщики
  • Сухаревская
  • Мякинино
  • Калитники
  • Строгино
  • Студенческая
  • Славянский бульвар
  • Деловой центр
  • Таганская
  • Сходненская
  • Тверская
  • Театральная
  • Тёплый Стан
  • Раменки
  • Ломоносовский проспект
  • Тимирязевская
  • Третьяковская
  • Трубная
  • Хорошёвская
  • Тульская
  • ЦСКА
  • Тургеневская
  • Тушинская
  • Улица 1905 года
  • Солнцево
  • Улица Академика Янгеля
  • Лухмановская
  • Улица Дмитриевского
  • Некрасовка
  • Окская
  • Улица Горчакова
  • Косино
  • Бульвар Рокоссовского
  • Юго-Восточная
  • Улица Скобелевская
  • Электрозаводская
  • Стахановская
  • Лефортово
  • Улица Старокачаловская
  • Зюзино
  • Шелепиха
  • Университет
  • Рабочий посёлок
  • Филёвский парк
  • Фили
  • Фрунзенская
  • Царицыно
  • Цветной бульвар
  • Долгопрудная
  • Марк
  • Черкизовская
  • Аникеевка
  • Чертановская
  • Павшино
  • Чеховская
  • Чистые пруды
  • Трикотажная
  • Стрешнево
  • Чкаловская
  • Шаболовская
  • Шоссе Энтузиастов
  • Щёлковская
  • Щукинская
  • Юго-Западная
  • Южная
  • Ясенево
  • Краснопресненская
По районам
  • Молжаниновский
  • Клёновское
  • Новогиреево
  • Марьино
  • Нижегородский
  • Замоскворечье
  • Хорошевский
  • Пресненский
  • Строгино
  • Троицк
  • Беговой
  • Марьина роща
  • Преображенское
  • Даниловский
  • Бескудниковский
  • Хамовники
  • Бибирево
  • Измайлово
  • Текстильщики
  • Бабушкинский
  • Рязанский
  • Алтуфьевский
  • Печатники
  • Гольяново
  • Бутырский
  • Косино-Ухтомский
  • Южнопортовый
  • Тверской
  • Восточное Измайлово
  • Ивановское
  • Бирюлево Восточное
  • Якиманка
  • Новокосино
  • Бирюлево Западное
  • Аэропорт
  • Марфино
  • Перово
  • Лосиноостровский
  • Метрогородок
  • Лианозово
  • Братеево
  • Останкинский
  • Донской
  • Отрадное
  • Северное Измайлово
  • Зябликово
  • Ростокино
  • Соколиная гора
  • Москворечье-Сабурово
  • Орехово-Борисово Северное
  • Свиблово
  • Сокольники
  • Нагатино-Садовники
  • Войковский
  • Выхино-Жулебино
  • Нагатинский затон
  • Нагорный
  • Восточное Дегунино
  • Кузьминки
  • Орехово-Борисово Южное
  • Северное Медведково
  • Лефортово
  • Царицыно
  • Вешняки
  • Южное Медведково
  • Головинский
  • Ярославский
  • Чертаново Северное
  • Богородское
  • Люблино
  • Чертаново Центральное
  • Чертаново Южное
  • Дмитровский
  • Академический
  • Некрасовка
  • Восточный
  • Западное Дегунино
  • Коптево
  • Савеловский
  • Сокол
  • Арбат
  • Тимирязевский
  • Воскресенское
  • Ховрино
  • Басманный
  • Десёновское
  • Красносельский
  • Московский
  • Левобережный
  • Алексеевский
  • Мещанский
  • Таганский
  • Щербинка
  • Зюзино
  • Рязановское
  • Гагаринский
  • Северное Бутово
  • Ломоносовский
  • Коньково
  • Котловка
  • Обручевский
  • Теплый Стан
  • Черемушки
  • Ясенево
  • Южное Бутово
  • Дорогомилово
  • Крылатское
  • Кунцево
  • Можайский
  • Михайлово-Ярцевское
  • Ново-Переделкино
  • Очаково-Матвеевское
  • Митино
  • Солнцево
  • Раменки
  • Фили-Давыдково
  • Тропарево-Никулино
  • Филевский парк
  • Куркино
  • Щаповское
  • Покровское-Стрешнево
  • Северное Тушино
  • Первомайское
  • Щукино
  • Савёлки
  • Хорошево-Мневники
  • Матушкино
  • Старое Крюково
  • Силино
  • Южное Тушино
  • Крюково
По округам
  • Северо-Западный административный округ
  • Центральный административный округ
  • Северо-Восточный административный округ
  • Восточный административный округ
  • Юго-Восточный административный округ
  • Южный административный округ
  • Западный административный округ
  • Троицкий административный округ
  • Юго-Западный административный округ
  • Новомосковский административный округ
  • Северный административный округ
  • Зеленоградский административный округ
По субъектам области
  • Москва
  • Москва
  • пос. Коммунарка
  • Москва
  • Москва
  • Москва
  • Москва
  • Москва
  • Москва
  • Москва
  • Москва
  • Москва
  • Москва
  • Москва
  • 1-я оч.
  • Москва
  • Москва
  • Москва
  • Москва
  • Москва
  • Рязановское поселение
  • 3-й мкр
  • Москва
  • Москва
  • Москва
  • Москва
  • Москва
  • Москва
  • Москва
  • Москва
  • Москва
  • Москва
  • Москва
  • Москва
  • Москва
  • Москва
  • Москва
  • Москва
  • Москва
  • Москва
  • Москва
  • Москва
  • Москва
  • Москва
  • Москва
  • Москва
  • 1-й мкр
  • Москва
  • Москва
  • Москва
  • Москва
  • Москва
  • Москва
  • Москва
  • Москва
  • Москва
  • Москва
  • Москва
  • Москва
  • Москва
  • Москва
  • Москва
  • Москва
  • Москва
  • Москва
  • Москва
  • Москва
  • Москва
  • Москва
  • Москва
  • д. Большое Свинорье
  • д. Николо-Хованское
  • Москва
  • Москва
  • Москва
  • Москва
  • Москва
  • Москва
  • Москва
  • Сосенское поселение
  • Москва
  • Москва
  • Москва
  • Москва
  • Москва
  • Москва
  • Москва
  • д. Середнево
  • Москва
  • Москва
  • Москва
  • Москва
  • Москва
  • Москва
  • Москва
  • Москва
  • Москва
  • пос. Коммунарка
  • Москва
  • Москва
  • Москва
  • Москва
  • Москва
  • № 37 кв-л
  • 3-я оч.
  • Москва
  • Москва
  • Москва
  • Москва
  • № 100 кв-л
  • Москва
  • Москва
  • Москва
  • Москва
  • Москва
  • Москва
  • Москва
  • Москва
  • Марушкинское поселение
  • Москва
  • Москва
  • Москва
  • Москва
  • Москва
  • Москва
  • Москва
  • Москва
  • Москва
  • № 32 кв-л
  • Южный кв-л
  • Москва
  • Москва
  • Москва
  • Москва
  • Москва
  • Москва
  • Москва
  • Москва
  • Москва
  • Москва
  • Москва
  • Москва
  • пос. Знамя Октября
  • Москва
  • Москва
  • № 152 кв-л
  • 22-й мкр
  • В мкр
  • Москва
  • Москва
  • Москва
  • Москва
  • Москва
  • Москва
  • Москва
  • Москва
  • Москва
  • Москва
  • Москва
  • Москва
  • Москва
  • Москва
  • Москва
  • Москва
  • Москва
  • Москва
  • Москва
  • Москва
  • Москва
  • Москва
  • Москва
  • Москва
  • Москва
  • Москва
  • Москва
  • Москва
  • Москва
  • Москва
  • Новомосковский ао
  • Москва
  • Москва
  • Москва
  • Москва
  • Москва
  • Внуково рп
  • Москва
  • Москва
  • Москва
  • Москва
  • Москва
  • Москва
  • Внуковское поселение
  • Москва
  • Родники мкр
  • № 150 кв-л
  • Москва
  • Москва
  • Москва
  • Москва
  • Москва
  • Москва
  • Москва
  • Москва
  • Москва
  • Москва
  • Москва
  • Москва
  • Москва
  • Москва
  • Москва
  • Москва
  • Москва
  • д. Середнево
  • Москва
  • Москва
  • № 33 кв-л
  • Москва
  • Москва
  • Москва
  • Москва
  • Москва
  • Москва
  • Москва
  • Москва
  • Москва
  • Москва
  • Москва
  • Москва
  • Москва
  • Москва
  • Москва
  • Москва
  • Москва
  • Москва
  • Москва
  • Москва
  • Москва
  • Москва
  • Москва
  • с. Остафьево
  • Москва
  • Москва
  • Москва
  • Москва
  • д. Сенькино-Секерино
  • Москва
  • Москва
  • Москва
  • Москва
  • Москва
  • Москва
  • Москва
  • Москва
  • Москва
  • Москва
  • Москва
  • Москва
  • Москва
  • Москва
  • Москва
  • Москва
  • № 132 кв-л
  • Москва
  • Филимонковское поселение
  • Москва
  • № 176 кв-л
  • Москва
  • Москва
  • Москва
  • Москва
  • Москва
  • Москва
  • Москва
  • Москва
  • Г мкр
  • Москва
  • Москва
  • Москва
  • с. Остафьево
  • Москва
  • Москва
  • Москва
  • Москва
  • Москва
  • Москва
  • Москва
  • Москва
  • Москва
  • Москва

Некоторые материалы настоящего раздела могут содержать информацию, запрещенную для детей, не достигших шести лет.

Информация о возрастных ограничениях в отношении информационной продукции, подлежащая распространению на основании норм Федерального закона «О защите детей от информации, причиняющей вред их здоровью и развитию».

О компанииСправочный центрВакансии
© ООО «Н1.РУ»  Правила использования

Некоторые материалы настоящего раздела могут содержать информацию, запрещенную для детей, не достигших шести лет.

Информация о возрастных ограничениях в отношении информационной продукции, подлежащая распространению на основании норм Федерального закона «О защите детей от информации, причиняющей вред их здоровью и развитию».

Новостройки
Студии
Однокомнатные
Двухкомнатные
Трехкомнатные
Четырехкомнатные
Многокомнатные
Каталоги
Выделение цветом
Спецпредложение
Топ
Турбо
Вторичка
Однокомнатные
Комнаты
Студии
Коттеджи
Дома
Аренда недвижимости
Квартиры
Комнаты
Студии
Коттеджи
Дома
Города
Архангельск
Екатеринбург
Красноярск
Новосибирск
Омск
Пермь
Тюмень
Челябинск
Все города
Карта сайта
 Купите коммерческую недвижимость в Москве - 12 244 объявления в каталоге коммерческой недвижимости на N1. Средняя цена продажи или покупки составляет 288,3 млн ₽. Покупайте коммерческую недвижимость недорого на сайте N1.ru.