Универсальное помещение
Алтуфьевское шоссе, 35 корп. 1 Показать на карте
Алтуфьевское шоссе, 35 корп. 1 Показать на карте
Москва
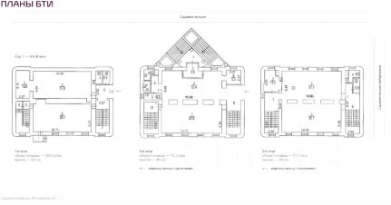
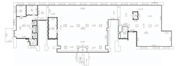
Лот 160234.Продажа помещения свободного назначения в новом МФК ''Гало''. Адрес: Алтуфьевское шоссе, 35к1.Близость жилых массивов и промышленных зон обеспечивает высокий спрос на офисы, производства и склады. Согласно планам, в ближайшие 5 лет здесь будет построено суммарно 2,8 млн м² жилой недвижимости, 400 тыс. м² коммерческой недвижимости.МФК ''Гало'' представляет собой 10-ти этажный корпус с благоустроенной территорией. Вокруг комплекса создана комфортная озеленённая среда с новыми удобными разъездами и парковочными местами.-1 этаж: Подземный паркинг, включающий места для мототранспорта, зоны хранения, электрозарядные станции, и лифт в подвальный уровень.2-10 этажи: Комбинация производственных, складских и офисных пространств, обеспеченная максимально комфортнойинфраструктурой. На крыше созданы дополнительные пространства для отдыха и работы.Транспортная доступность:15 минут до ТТК, 12 мин до МКАД, 4 мин до СВХ.До станции D1 Дегунино 1 минута пешком. До м. Отрадное 18 минут.Технические характеристики: Электроснабжение: 80 Вт . Высота потолка - 3,76м. Спринклерная система пожаротушения. Централизованная система вентиляции и кондиционирования. Умный доступ к зданию. Коммерческие условия: Стоимость -24 242 000 рублей,Стоимость за м2 - 230 000 рублей,ДКПН
105 м2
- Показать контакты
- Добавить в избранное
105 м2
24 242 000
230 000 /м2
