Офисное помещение
Производственная, 12 корп. 2 Показать на карте
Производственная, 12 корп. 2 Показать на карте
Москва
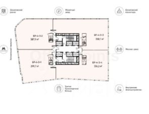
Продается офисное помещение на 1 этаже в жилом комплексе Лучи, В класса, который находится по адресу: ул. Производственная, д.12, к. 9.Пешая доступность от станций метро Солнцево, Боровское шоссе, Новопеределкино. Удобный выезд на Боровское и Киевское шоссе, а также МКАД. Помещение без отделки, открытая планировка. Отдельный вход с улицы. Мокрая точка. Высота потолков 2,5-3 м. Естественная система вентиляции, сплит-система. Подземный паркинг. Условия сделки и стоимость подлежат обсуждению.
105 м2
- Показать контакты
- Добавить в избранное
105 м2
42 629 873
404 458 /м2
