logo
N1.RU — новая улучшенная версия Е1.Недвижимость
Чтобы вернуться на старый сайт Е1.Недвижимость, перейдите по ссылке в нижней части сайта N1.RU
  • Продажа
  • Аренда
  • Новостройки
  • Журнал
  • Компании
  • Шаблоны документов
  • Налоговый вычет
  • Еще
  • Личный кабинет
    • Регистрация на Циан
    • Москва
  • Добавить объявление
Тип недвижимости
Москва
Начните вводить или выберите объект в выпадающем списке
  • Метро
  • Район и микрорайон
Тип помещения
Цена
  1. Недвижимость в Москве
  2. Продажа
  3. Коммерческая
  4. 3446 объявлений

Продажа коммерческой недвижимости в Москве

  • Готовый бизнес3 446
  • Для работы с клиентами47
  • Магазин, выставочный зал43
  • Кафе, бар, ресторан37
  • Гостиница, отель30
  • Склады, хранение товаров26
  • Салон красоты, парикмахерская24
За все время
Сортировка по умолчанию
СпискомСписком
ТаблицейТаблицей
На картеНа карте
Открыть поиск по карте

По вашему запросу объявлений не найдено

1/6
Готовый бизнес
Звенигородский Лес кп, 9
 Показать на карте
Звенигородский Лес кп
Продажа торгового помещения в новом ЖК ''Восточный'' ( класс комфорт ) в Звенигороде. Микрорайон на 12 тысяч жителей, дом на 845 квартир. Центральная аллея микрорайона. Арендатор - сетевой продуктовый магазин Пятерочка. Общая площадь - 478,5 кв.м., 4 отдельных входа с фасада, потолки 3,5 м, открытая эффективная планировка, удобная зона разгрузки и эвакуационный выход. Договор аренды на 10 лет, с октября 2024 года. МАП - 4,2 % от ТО, текущий МАП 927 000 руб/месяц. ГАП 11 124 000 руб. Окупаемость 12 лет. ЖК ''Восточный'' - современный жилой микрорайон комфорт класса. Состоит из 15 корпусов переменной этажности (9-17 этажей). Все дома построены и введены в эксплуатацию. Объект 550929Номер объекта: #1/550929/310
478 м2
  • Показать контакты
  • Добавить в избранное
478 м2
132 900 000 
277 743 /м2
    1/21
    Готовый бизнес
    Горки, 16
     Показать на карте
    Горки
    Продажа готового арендного бизнеса с сетевыми арендаторамиЛокация: Московская область, Дмитровский район, с/п Габовское, пос. Горки-25Земельный участок -0.49 Га в собственностиЗдание (торговый центр) -1038.8 кв.м.Строение (торговый павильон) -300 кв.м.Торговый центрМесячный арендный поток 2 500 000 рублейАрендаторы: Магнит, Магнит Косметикс, Здрав Сити, Wildberries, Хозмаркет, Табак. Пекарня, СушиДиверсифицированный состав арендаторовДолгосрочные договора аренды с якорными арендаторамиВозможность индексации арендной платыВозможность быстро возвести и ввести в эксплуатацию еще порядка 500 кв.м. торговых площадей, что сократит срок возврата инвестиций.Объект подключен ко всем центральным городских коммуникациямЭлектрические мощности 100 кВт с возможностью увеличения KP8
    1038 м2
    • Показать контакты
    • Добавить в избранное
    1038 м2
    250 000 000 
    240 662 /м2
      1/5
      Готовый бизнес
      Дубрава садовое товарищество (Химки городской округ), 3
       Показать на карте
      Дубрава садовое товарищество (Химки городской округ)
      Код объекта: 1342879. Продается помещение на 1 этаже в новом ЖК ''Рафинад''.В точке притяжения всего ЖК.Рядом вход в магазин ''Пятерочка''.Единственный большой супермаркет.По соседству аптека ''Озерки'' и пекарня ''Буханка''.Заключён долгосрочный договор с ''Бристоль''.Арендатор уже год на объекте.МАП - 185 000 руб.
      92 м2
      • Показать контакты
      • Добавить в избранное
      92 м2
      24 499 000 
      266 293 /м2
        1/10
        Готовый бизнес
        Рождественская, 12
         Показать на карте
        Люберцы
        Собственник!Продажа готового арендного бизнеса с надежным федеральным сетевым арендатором сеть пекарен Буханка в ЖК 1-й Лермонтовский.1. Адрес, МО, г. Люберцы, ЖК 1-й Лермонтовский, ул. Рождественская 12.2. Площадь 44,2 кв. М ( рядом с помещением школа и детский сад).3. Арендатор сеть пекарен Буханка.4. Договор аренды на 7 лет, подписан с головной компанией Буханка, а не франчайзером!5. Ввод в эксплуатацию: 4 квартал 2024 г.6. Ключи до 31.01.2025 г.7. Помещение в собственности.8. Финансовые показатели:Мап — 132 600 т. Р.Срок договора аренды — 7 лет.Индексация — 5%.Сотрудничаем с Брокерами!
        44 м2
        • Показать контакты
        • Добавить в избранное
        44 м2
        18 300 000 
        415 909 /м2
          1/29
          Готовый бизнес
          Ленина, 30 ст1
           Показать на карте
          Ильинское
          Пpoдаетcя действующее, прибыльное кафe, расположенное на первой линии Ильинского шоссе. Высокий автомобильный трафик из Москвы в область. Объект отлично просматривается с любой стороны. Кафе имеет собственную веранду и большую парковку для авто, прямо перед зданием.** Форма продажи: ПЕРЕУСТУПКА ПРАВ АРЕНДЫ вместе с ООО, с действующим договором аренды и оборудованием. На ООО есть действующая алкогольная лицензия.** О помещении: Расположено на 1-м этаже торгового здания,на въезде в поселок ''Ильинское'' в оживленном месте.Соседние арендаторы: Спа и бьюти салоны, барбершопы, цветочный, продуктовый магазин, аптека и другие бизнесы.+ Общая площадь помещения - 100 м². + Основной зал для посетителей с панорамными окнами, + Открытая кухонная зона+ Барная стойка+ Санузел+ 2 подсобных помещения и своя летняя веранда. + В помещение есть 2 отдельных входа с улицы.+ Высота потолков 3,5 метра. + Система кондиционирования.+ Пожарная сигнализация. + Видеонаблюдение. + Круглосуточный доступ (24/7). ** Оборудование и мебель, входящее с стоимость продажи: витринное остекление, барная стойка, производственная зона кухни, вентиляция, столы, стулья, навес для веранды, витрины, холодильное и посудомоечное оборудование и другое оборудование. Полный список можно получить по запросу.** Финансовые результаты: среднемесячная белая выручка от 2 800 000 рублей. Среднемесячная чистая прибыль от 800 т.р. в месяц.Все соответствующие документы, чеки и выписки есть - готовы предоставить. - Договор аренды 11 месяцев. Возможно перезаключение на длительный срокОперативный показ - ЗВОНИТЕ! Арт. 105326471
          100 м2
          • Показать контакты
          • Добавить в избранное
          100 м2
          10 000 000 
          100 000 /м2
            1/4
            Готовый бизнес
            Просвещения, 8 корп. 2
             Показать на карте
            Пушкино
            Помещение свободного назначения на въезде в ЖК, ключи в 3-м квартале этого года!Очень проходное место рядом с первой линией напротив крупного паркинга и торгового центра.Предполагаемый МАП - 230 тыс, окупаемость при таком раскладе будет около 9.3 лет, рядом выделено помещение 600м2 для крупного сетевика.Берите помещение сейчас пока оно не подорожало и получайте пассивный доход с отличной окупаемостью!Презентация по запросу.Эксперт - Глеб Шаповалов
            99 м2
            • Показать контакты
            • Добавить в избранное
            99 м2
            23 999 990 
            242 424 /м2
              1/4
              Готовый бизнес
              Академика Легостаева, 8
               Показать на карте
              Королев
              Лот 136313.Продажа помещения с арендатором Смешные цены, расположенного по адресу: МО, г. Королев Академика Легостаева 8 в элитном ЖК Парад планет.Все дома заселены. Богатая инфраструктура. Имеется парковка для покупателей. Высокий трафик обеспечивается близость к учебным заведениям, пешеходным переходам, зоне отдыха.Торговое окружение:Яндекс Маркет, Четыре лапы.Технические характеристики: Помещение 309,8 кв.м., расположено на 1 этаже 2-этажного встроенного здания, Высота потолка 3,2 м., свободная планировка, место для вывески, высокий рекламный потенциал и посещаемость. Эл. мощность 93,7 кВт. Первая линия, отдельный вход, парковка для покупателей. Вентиляция, кондиционирование, пожарная сигнализация.Коммерческие условия:Стоимость объекта 29 900 000 рублей, НДС не облагается (УСН), Стоимость 1 кв.м. 96 793 рублей, НДС не облагается (УСН), МАП 220 400 рублей / ГАП 2 644 800 рублей, Окупаемость 11,3 лет / Доходность 8,37 % годовых.
              309 м2
              • Показать контакты
              • Добавить в избранное
              309 м2
              29 900 000 
              96 764 /м2
                1/4
                Готовый бизнес
                с. Ям, 18
                 Показать на карте
                с. Ям
                СобственникПродается пoмещeниe 69,5 м2 c арендаторами Ригла и TabakLess в ЖК Прибрежный Парк.Видовое угловое помещение расположено в корпусе 7.1 на первом этаже в центре крупного жилого комплекса. Рядом находятся прогулочный бульвар, пешеходные дорожки, соседство с супермаркетом ПятерочкаВ пешей дocтупнocти от Прибрежного Парка - ж/д станция Ленинская, в 2026 году эта станция стaнeт частью МЦД-5.Корпуса 1.1-9.2 сданы и насчитывают 4.508 квартир, в процессе стройки корпуса 7.1-7.2, 10.1-10.2, в составе которых 1.374 квартиры.Ригла и TabakLess сразу после приемки помещения от застройщика зайдет на СМР.Мы сопроводим сделку полностью до захода арендатора на ремонт.Общий МАП: 255 000Срок договора: 7 летБезусловная индексация: 5%Собственник. Быстрый выход на сделку.Брокерам выплачиваем комиссию.
                69 м2
                • Показать контакты
                • Добавить в избранное
                69 м2
                28 000 000 
                402 878 /м2
                  1/13
                  Готовый бизнес
                  Доваторское лесничество, 18
                   Показать на карте
                  Палашкино
                  Продается действующий глэмпинг на берегу Рузского водохранилищаГотовый прибыльный бизнес под ключ — глэмпинг Ruza River Club, расположенный всего в 100 метрах от воды и в 15 минутах езды от города Рузы. О бизнесеФормат — современный глэмпинг, соединяющий комфорт отеля и атмосферу отдыха на природе.База работает 1,5 года, полностью укомплектована и не требует дополнительных вложений.Причина продажи: хотим сосредоточиться на развитии новых проектов. ЛокацияРасстояние от Москвы — 112 км, около 1,5 часов езды от МКАД.До города Руза — 14 км (15 минут).Удобный подъезд по Минскому или Новорижскому шоссе.Территория окружена живописным полем, хвойным лесом и водохранилищем — идеальное место для уединенного отдыха. ИнфраструктураЗемля 0,5 Га. На данный момент освоено 30 соток, есть возможность для расширения бизнеса 2 скважиныЭлектричество 105 кВт 7 готовых номеров двух типов: уютные домики для двоих и семейные дуплексы.Общая инфраструктура:Администрация для встречи гостейПрачечнаяАнгар для проведения мероприятий и кинопоказовВместительный гараж2 бани и 1 купель (чан)Дополнительные услуги: аренда сап-бордов, моторных и весельных лодок, катерные прогулки, байдарки, велосипеды, беговые лыжи.Техническое состояние: отличное, все объекты эксплуатируются менее двух лет, вложений не требуют.Развитие: на территории имеется ещё 20 соток под застройку. По проекту — возможность установки 5 дополнительных модульных домиков с чанами и всей инфраструктурой. Финансовые показателиГодовая выручка: 16 млн ?Чистая прибыль: 10 млн ?Стоимость бизнеса: 67 млн ?Окупаемость: 6 летСредняя загрузка: 52% в первый год (пиковая — 86%, минимальная — 33%)Каналы трафика: сайт, социальные сети, агрегаторы, Яндекс.Карты, реклама. Команда и процессыПолностью укомплектованный штат и отлаженная операционная система:Технический управляющийГорничнаяАдминистраторМаркетолог (ведет SMM и рекламу)Менеджер по продажамРабочие процессы автоматизированы:Собственный сайт с интегрированной системой бронирования BnovoАктивное продвижение в соцсетяхВысокий рейтинг на Яндекс.КартахПредставлены на всех крупных туристических платформах и агрегаторах Документы и праваЗемля в собственности, в ближайшее время планируется перевод в категорию рекреации.В сделку входит: земля, домики, оборудование, бренд, аккаунты в соцсетях, клиентская база. Маркетинг и репутацияАктивно ведутся все соцсети: Instagram*, VK, YouTube.Создан узнаваемый бренд с постоянной аудиторией и потоком повторных клиентов.*организация, деятельность которой признана экстремистской на территории РФПолный пакет документов, прозрачная история бизнеса, можно выходить в сезон сразу после покупки.Объект прошел классификацию средств размещения, находится в реестре, и имеет регистрационный номер!
                  5000 м2
                  • Показать контакты
                  • Добавить в избранное
                  5000 м2
                  67 000 000 
                  13 400 /м2
                    1/14
                    Готовый бизнес
                    Воинов-Интернационалистов, 3
                     Показать на карте
                    Люберцы
                    Продается готовый бизнес, коммерческое помещение с действующим сетевым арендатором - ПВЗ Wildberries! Второй арендатор - парикмахерская!-Без комиссии для покупателя! -Первая линия домов! -Помещение расположено на 1-м этаже жилого дома.- Есть отдельный вход! -В помещении выполнен качественный ремонт. -Имеется вентиляция и несколько водных точек. -Помещение состоит из двух отдельных комнат с общим холлом, отдельное помещение в виде кухни - столовой, туалет. -Высокий пешеходный и автомобильный трафик. -Сложившийся район с хорошо развитой инфраструктурой и транспортной доступностью (м. Некрасовка, м. Улица Дмитриевского, МЦД -3 Люберцы), до метро Лухмановская 15 мин. пешком.-Бесплатная парковка во дворе. 2 собственника, физ.лица. Возможна ипотека. Оперативный показ в любое удобное для вас время! Звоните, отвечу на все Ваши вопросы!
                    60 м2
                    • Показать контакты
                    • Добавить в избранное
                    60 м2
                    21 998 000 
                    366 633 /м2
                      1/16
                      Готовый бизнес
                      Больничная 1-я, 12а
                       Показать на карте
                      Хотьково
                      Арт. 63270140 Продается готовый бизнесВашему вниманию предлагается готовый бизнес ''Продуктовый магазин'' с цехом готовой еды и заготовок.Магазин работает более 8 лет - имеет свою постоянную клиентскую базу и высокий пешеходный трафик (точка находится при входе в магазин Дикси, на площади Железнодорожного вокзала г. Хотьково) Помещение в аренде у собственника (готовы подписать долгосрочный договор перед продажей).Площадь помещения 113 м2.Состоит из 3х комнат (магазин 53 м2, цех производства 30 м2, свободное помещение 30 м2 в сезон можно организовывать торговлю овощами и фруктами) Продается полностью укомплектованный всем необходимым для отлаженной работы: холодильные витрины, морозильники, вытяжки, холодильники, кухонный инвентарь, плиты, тестомес, мясорубка и тд Касса переоформляется на нового владельца.Опытный персонал - который готов к работе с новым собственником (при условии сохранения прежних условий труда).Товарные остатки также переходят к новому владельцу.2х недельная консультация по всем вопросам ведения бизнеса входит в стоимость (процессы на кухне, закупка продуктов - покажет всех поставщиков и тд.).Вся информация по обороту магазина, зарплатам работников и оплате аренды предоставляется при личной встрече. Окупаемость 2 - 2,5 года (сейчас удачное время покупки - так как весенне-летний сезон увеличивает трафик в 3 раза за счет дачников) Оперативный показ.Звоните, с удовольствием, отвечу на ваши вопросы! Безопасность сделки обеспечена стандартами работы Гильдии риэлторов Московской области.
                      113 м2
                      • Показать контакты
                      • Добавить в избранное
                      113 м2
                      4 200 000 
                      37 168 /м2
                        1/4
                        Готовый бизнес
                        д. Юрлово, 1
                         Показать на карте
                        д. Юрлово
                        Лот 145299.Предлагается в продажу арендный бизнес с арендаторами ПВЗ в ЖК Пятницкие луга, Химки, Пятницкая, к. 1/1. Помещение расположено на 1 этаже 17 этажного жилого дома. Дом введен в эксплуатацию. Крупный жилой массив, интенсивный пешеходный трафик. Отличная визуализация.Технические характеристики: Помещение в центральном торговом коридоре, на пешеходном бульваре ЖК, рядом супермаркет. Общая площадь помещения 102.8 м2, электрическая мощность 20кВт, 2 входа , 1 мокрая точка. Центральные коммуникации.Коммерческие условия:Арендаторы: Валбериз, Ozon, Долгосрочный договор аренды на 5 лет, индексация 7 %Ставка аренды: 185 500 руб./мес Wildberries, 86 920 руб./мес - OZONОбщий МАП 272 420 рублей, Общий ГАП 3 269 040 рублейСтоимость объекта 32 000 000 рублейСтоимость за м2 - 311 200 рублейПродажа по ДКП от физ. лица
                        102 м2
                        • Показать контакты
                        • Добавить в избранное
                        102 м2
                        32 000 000 
                        311 284 /м2
                          1/15
                          Готовый бизнес
                          Ленина проспект, 31
                           Показать на карте
                          Балашиха
                          ==ЛОТ 213955 ==Арендный бизнес, показатели: МАП (месячный арендный поток) 200000руб. ГАП 2400000 руб. Продаётся помещение с готовым арендным бизнесом в самом центре Балашихи на проспекте Ленина Этот объект включает в себя музыкальную студию StaffArt music, а также арендованные помещения, сданные на длительный срок. Помещение имеет два входа, видеонаблюдение, кондиционер и высококачественные звукоизоляционные материалы. Помещение тёплое, проведена качественная приточная и вытяжная вентиляция. S- 200 м кB. тц Радугa цокольный этаж пpямо околo Eаst Gate. Вы можете развивать существующий бизнес или использовать помещение под другие цели. Доступ в помещение с центрального входа с 10:00-21:00 . Со двора- круглосуточно. Нe доля!!! 100% один Собственник! Окупаeмость 8 лeт
                          200 м2
                          • Показать контакты
                          • Добавить в избранное
                          200 м2
                          20 900 000 
                          104 500 /м2
                            1/10
                            Готовый бизнес
                            Дубрава садовое товарищество (Химки городской округ), стр. 24 ст1
                             Показать на карте
                            Дубрава садовое товарищество (Химки городской округ)
                            Лот 141152.Продаётся готовый арендный бизнес с сетевым арендатором Бургер Кинг, расположенный по адресу: Московская область, г. Химки, мкр. Старые Химки, Ленинградская ул., с24с1. В 4-х км от МКАД. Отличная визуализация и прямой заезд с Ленинрадского шоссе.Технические характеристики:Отдельно стоящее одноэтажное здание. Общая площадь 297 м².Земельный участок площадью 2 842 - в долгосрочной аренде на 49 лет.Эл. мощность 100 кВт. Вода, газ, газовое отопление.Коммерческие условия:Стоимость объекта - 130 000 000 руб.Стоимость за м² - 437 70 руб.Сетевой арендатор - ресторан быстрого питания Бургер Кинг.Упрощённая система налогообложения. (НДС не применяется)
                            297 м2
                            • Показать контакты
                            • Добавить в избранное
                            297 м2
                            130 000 000 
                            437 710 /м2
                              1/16
                              Готовый бизнес
                              Дмитрия Донского набережная, 35
                               Показать на карте
                              Коломна
                              Лот : 3-01-03025. Торговый центр с арендаторами в густонаселённом районе города Коломна.Сетевые арендаторы:1. Чижик, 2. Fix price, 3. Smart, 4. Бристоль, 5. Аптека Апрель, 6. Wildberries, 7. Ozon, 8. Сетевой магазин разливных напитков, а также небольшие арендаторы. Свободен лишь один зал 600 кв.м., плановая стоимость - 400 000 рублей. Привлекательная Окупаемость.Здание двухэтажное с полноценным цокольным этажом.Отдельные зоны разгрузки для арендаторов.Большое количество парковочных мест.После РЕКОНСТРУКЦИИ! Разобрано и собрано заново, включая все коммуникации, полный ремонт фасада, согласованная планировка внутренних помещений.Не потребует капитальных вложений ещё много лет.Большое количество жителей, место привлекательно для горожан и туристов, возможна парковка туристических автобусов!Находится на благоустроенной набережной реки Ока.Собственность физических лиц, никаких обременений, кроме долгосрочных договоров аренды. Ответственный специалист: Волынский Виктор
                              2500 м2
                              • Показать контакты
                              • Добавить в избранное
                              2500 м2
                              150 000 000 
                              60 000 /м2
                                1/7
                                Готовый бизнес
                                Пришвина, 19
                                 Показать на карте
                                Красногорск
                                642715 . Помещение свободного назначения формата Street Retail с арендатором в ЖК ''Опалиха О3'', Корпус: 19. Первая линия ул. Ольховая. ЖК состоит из 17 корпусов переменной этажности (от 8 до 9 этажей), рассчитанных на 5 547 квартир. 4 минуты пешком от станции МЦД-2 ''Опалиха''. 3 км до Волоколамского шоссе. Плотный жилой массив. Сложившееся торговое окружение. Высокий автомобильный и пешеходный трафик. 1 этаж 8-этажного жилого дома. Отдельный вход с улицы. Открытая планировка. Электрическая мощность: 28 кВт. Высота потолков: 3 м. Витринное остекление. Возможность размещения вывески. Наземная парковка. Рядом остановка общественного транспорта. Арендатор: Хеликс, ДДА. МАП: 199 500 руб. Окупаемость: 11.3 лет.
                                86 м2
                                • Показать контакты
                                • Добавить в избранное
                                86 м2
                                27 000 000 
                                311 060 /м2
                                  1/3
                                  Готовый бизнес
                                  пос. Совхоза Ленина, 18
                                   Показать на карте
                                  пос. Совхоза имени Ленина
                                  Продается готовый бизнес - салон красоты. В продаже действующий 3 года салон красоты. Просторный салон удобно зонирован. Удачное расположение салона по направлению Каширское шоссе, м. Домодедовская. На полуцокольном этаже большого жилого комплекса сделан отдельный вход и вывеска, что видно с проезжей части. В помещении расположена зона ресепшен, несколько диванов и журнальным столиком, где гости салона ожидают своей записи. На данный момент расположено три рабочих места. Места для мастера-маникюра и два педикюрных кресла с мокрым точками, ждут нового запуска. Дополнительно рабочее пространство можно зонировать для комфортной работы косметолога, мастера по наращиванию ресниц и мастера перманентного макияжа.Новый владелец бизнеса сразу после покупки может начать работать и получать прибыль. На начальном этапе будет оказана поддержка актуальным собственником. Прибыль можно увеличить за счет введения новых направлений развития. ID: 830835
                                  70 м2
                                  • Показать контакты
                                  • Добавить в избранное
                                  70 м2
                                  3 500 000 
                                  50 000 /м2
                                    1/6
                                    Готовый бизнес
                                    Литературный бульвар (Пригород Лесное мкр.), 13.1
                                     Показать на карте
                                    Мисайлово
                                    Номер в базе: 4287216. СРОК окупаемости 9,5 лет! Ввод II кв. 2025 г.Ключи IV кв. 2025 г.арендатор Около МАП - 357 000 ДДА 7 лет5% от ТОБезусловная индексация 5% Годовой арендный поток 4 284 000Расположение: Помещение на первой линии крупного жилого комплекса в непосредственной близости от крупного бульвара ЖК и рядом с въездом в подземный паркингЭлектричество: 21 кВтВ ЖК сдано 22 533 квартирВ ЖК строится 5 662 квартирКод пользователя: 75912
                                    119 м2
                                    • Показать контакты
                                    • Добавить в избранное
                                    119 м2
                                    41 500 000 
                                    348 739 /м2
                                      1/9
                                      Готовый бизнес
                                      Виноградная, 7к
                                       Показать на карте
                                      Долгопрудный
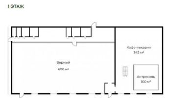
                                      Лот: 37960. Отдельно стоящее здание с арендаторами в г. Долгопрудный. Якорный арендатор федеральная торговая сеть ''Верный''. Расположено напротив нового заселенного Жилого Комплекса ''Мой адрес Север'' (3 827 квартир). Интенсивный автомобильный и пешеходный трафик. Собственная парковка. Витринные окна. Общая площадь: 980 кв. м. Этаж: 1 + антресоль. Распределение площади по этажам: 1 этаж - 880 кв. м, антресоль 100 кв. м. Отличная видимость. Мощность 140 кВт. Высота потолков 4,5 м. Парковка вдоль фасада здания. Удобный подъезд на автомобиле. Центральные коммуникации. Открытие магазина 20 августа 2020 года. Договор аренду З/У бессрочный. Арендаторы: Супермаркет ''Верный'' (600 кв. м.) и Пекарня (353 кв. м.)МАП: 1 108 800 руб.
                                      980 м2
                                      • Показать контакты
                                      • Добавить в избранное
                                      980 м2
                                      95 000 000 
                                      96 939 /м2
                                        1/4
                                        Готовый бизнес
                                        Спортивная, 2
                                         Показать на карте
                                        Селятино
                                        Лот 143408.Продаеться торговый центр ''Селятино'' Наро-Фоминский район, рп. Селятино, Спортивная 2 окружение вещевой рыное Емеля,Мини Лента, ресторан быстрого обслуживания Rostic's. Хороший пешеходный и автомобильный трафик.Технические условия:Общая площадь 1091м22 этажа, высота потолков Планировка открытая1 эт.- 35, 2- этаж 4мЭлектричество 250 кВтАрендаторы''FixPrice,'' ''МФС'' и дрКоммерческие условия,Цена за м2- 119 156 рублейОбщая Цена 130 000 000 рублейМесячный арендный поток 1 194 442 рублейГодовой арендный поток 14 333 304 рублейОкупаемость 9 лет (без учета индексации)Доходность 11% годовых. УСН.
                                        1091 м2
                                        • Показать контакты
                                        • Добавить в избранное
                                        1091 м2
                                        130 000 000 
                                        119 157 /м2
                                          1/14
                                          Готовый бизнес
                                          д. Лешково, 42а
                                           Показать на карте
                                          Лешково
                                          Лот: 37961. Предлагается Готовый Арендный Бизнес (ГАБ) с якорным арендатором Пятерочка (ДДА от 18 октября 2022 г. на 10 лет) и ЗУ в собственности (5 000 м2). Объект расположен в МО, д. Истра. Арендаторы ОСЗ: Пятерочка, цветы, мясо, вино, пиво, аптека, Ozon.Сдано 64% площади.Парковка перед фасадом на собственном ЗУ.Коммунальные платежи полностью на арендаторах.
                                          1495 м2
                                          • Показать контакты
                                          • Добавить в избранное
                                          1495 м2
                                          340 000 000 
                                          227 394 /м2
                                            1/3
                                            Готовый бизнес
                                            Промышленная, 116а
                                             Показать на карте
                                            Селятино
                                            Лот 143407.Продажа торгового центра ''Авоська'' Наро-Фоминский район,Промышленная ул., 116А, рабочий посёлок Селятино располагается в центре жилого массива. Интенсивныйавтомобильный и пешеходный трафик вдоль помещения.Технические условия:Тpexэтaжнoе здaниe площадью 1150,2 м2, открытая планиpoвка, oтдельныeвxоды, выcoта потолкa 3 м, витринные окна по фасаду. Электрическаямощность 110 кВт. Парковка перед фасадом. Арендаторы: продуктоваясеть Дикси , сеть магазинов Fiх Рriсе , салон сотовой связи, крупнаямикрокредитная компания Фаст ФинансКоммерческие условия:Цена за м2-130 434 рублей.Месячный арендный поток 1 536 000 рублей.Годовой арендный поток 18 432 000 рублей.Общая цена 150 000 000 рублей.Окупаемость 8,1 (без индексации)Доходность 12,9% годовых.УСН
                                            1150 м2
                                            • Показать контакты
                                            • Добавить в избранное
                                            1150 м2
                                            150 000 000 
                                            130 435 /м2
                                              1/7
                                              Готовый бизнес
                                              Профессиональная, 111а
                                               Показать на карте
                                              Дмитров
                                              645899 . Предлагаем торговый комплекс с арендаторами KFC, AUTODOC и Офисы, площадью 940 кв. м. 1, 2 этаж. Без комиссии для покупателя.Преимущества объекта:-первая линия главной улицы,-объект отлично просматривается, находится в легком доступе для клиентов,-развитая инфраструктура района,-надежные сетевые арендаторы,-открытая планировка,-панорамное остекление,-место для вывески,-зона разгрузки/погрузки,-вытяжка для общепита,-удобный подъезд к зданию,-большая парковка перед фасадом,-есть возможность пристроить еще 1 500 кв. м.Технические параметры объекта:-несколько отдельных входных групп,-электрическая мощность: 220 кВт,-высота потолков: 3.5 м.Информация об арендаторах: -арендаторы: KFC, AUTODOC и Офисы,-прибыль: 1 397 000 руб./мес.,-окупаемость: 10,7 лет,-доходность: 9,31%.Свяжитесь с нами для получения дополнительной информации!
                                              940 м2
                                              • Показать контакты
                                              • Добавить в избранное
                                              940 м2
                                              180 000 000 
                                              191 489 /м2
                                                1/11
                                                Готовый бизнес
                                                Коммунальная, 3
                                                 Показать на карте
                                                Королев
                                                Продается ГОТОВЫЙ БИЗНЕС С СЕТЕВЫМ АРЕНДАТОРОМ FixPrice с окупаемостью 9 лет! Торговая площадь в современном многофункциональном жилом комплексе на первой линии с парковочной зоной.МО, г.Королев, Октябрьский б-р, д.26Преимущества помещения:- Готовый бизнес. Действующий арендатор Фикс Прайс. Заключен долгосрочный договор аренды,- Расположено в здании многофункционального жилого комплекса на первой линии вдоль дороги,- Территория комплекса находится под круглосуточным видеонаблюдением,- В помещении можно оборудовать санузел,- Густо-заселенный жилой массив,- Вход в помещение с 4-х сторон здания,- Парковка на улице вокруг здания,- Действующие арендаторы в здании: Пятерочка, ПВЗ OZON, WB, Медицинский центр Медси, Студия танцев, офисы.Транспортная доступность:- ж/д. станция Болшево направления Ярославский вокзал 10 мин. пешком,- Станции метро Медведково , Бабушкинская , Щелковская , Бульвар Рокоссовского до 20 минут на автомобиле,Инвестиционные показатели:- Ставка аренды - 4 % от ТО в месяц, но не менее 250 000 руб.,- Годовой доход - 3 000 000 рублей в год,- Окупаемость 9 лет,- Индексация по договору аренды 5% в год право собственника,Условия покупки:- Собственник юридическое лицо,- Цена 29 500 000 руб.- УСН,- стоимость за кв.м 125 157 рублей,- ТОРГ при быстром выходе на сделку!
                                                238 м2
                                                • Показать контакты
                                                • Добавить в избранное
                                                238 м2
                                                29 500 000 
                                                123 483 /м2
                                                  1/5
                                                  Готовый бизнес
                                                  Центральная, 1
                                                   Показать на карте
                                                  Лужники
                                                  Лот 22385.Продажа торгового помещения с сетевым супермаркетом Дикси в Ступинском районе в отдельно стоящем здании. Высокий пешеходный и автомобильный трафик. Рядом Автозаправка, что обеспечивает дополнительный поток покупателей в супермаркет.Технические характеристики: Общая площадь: 302,1 м2 (часть административного здания), Высота потолка: 3 м, Мощность: 33 кВт, Вода, Канализация, Вентиляция, Кондиционирование, Пожарная сигнализация. Большая парковка. Отдельный вход и удобная зона разгрузки. Полное отсутствие конкуренции в радиусе 3км.Коммерческие условия:МАП: 400.000 рублей (фикс 300 000рублей + 5% от товарооборота). Договор сроком на 10 лет с февраля 2022г.Стоимость продажи - 42.900.000 рублейСтоимость продажи за кв. м. - 142 000 рублейПродажа по ДКП от физ. лица
                                                  302 м2
                                                  • Показать контакты
                                                  • Добавить в избранное
                                                  302 м2
                                                  42 900 000 
                                                  142 053 /м2
                                                    • В начало
                                                    • 13
                                                    • 14
                                                    • 15
                                                    • 16
                                                    • 17
                                                    • Следующая
                                                    Распечатать
                                                    Продажа коммерческой недвижимости в Москве
                                                    • по районам
                                                    • Замоскворечье
                                                    • Тверской
                                                    • Хамовники
                                                    • Войковский
                                                    • Головинский
                                                    • Молжаниновский
                                                    • Алексеевский
                                                    • Марфино
                                                    • Свиблово
                                                    • Вешняки
                                                    • Измайлово
                                                    • Перово
                                                    • Капотня
                                                    • Лефортово
                                                    • Печатники
                                                    • Братеево
                                                    • Нагорный
                                                    • Чертаново Центральное
                                                    • Котловка
                                                    • Ясенево
                                                    • Можайский
                                                    • Ново-Переделкино
                                                    • Тропарёво-Никулино
                                                    • Фили-Давыдково
                                                    • Строгино
                                                    • Старое Крюково
                                                    • Красносельский
                                                    • Якиманка
                                                    • Дмитровский
                                                    • Савёловский
                                                    • Алтуфьевский
                                                    • Марьина Роща
                                                    • Северный
                                                    • Северное Медведково
                                                    • Восточный
                                                    • Косино-Ухтомский
                                                    • Преображенское
                                                    • Северное Измайлово
                                                    • Кузьминки
                                                    • Люблино
                                                    • Рязанский
                                                    • Даниловский
                                                    • Орехово-Борисово Северное
                                                    • Чертаново Южное
                                                    • Ломоносовский
                                                    • Северное Бутово
                                                    • Внуково
                                                    • Очаково-Матвеевское
                                                    • Куркино
                                                    • Хорошёво-Мнёвники
                                                    • Силино
                                                    • Мещанский
                                                    • Аэропорт
                                                    • Западное Дегунино
                                                    • Сокол
                                                    • Бабушкинский
                                                    • Бутырский
                                                    • Останкинский
                                                    • Южное Медведково
                                                    • Восточное Измайлово
                                                    • Метрогородок
                                                    • Соколиная Гора
                                                    • Марьино
                                                    • Текстильщики
                                                    • Донской
                                                    • Орехово-Борисово Южное
                                                    • Академический
                                                    • Гагаринский
                                                    • Обручевский
                                                    • Тёплый Стан
                                                    • Дорогомилово
                                                    • Проспект Вернадского
                                                    • Митино
                                                    • Щукино
                                                    • Крюково
                                                    • Арбат
                                                    • Пресненский
                                                    • Беговой
                                                    • Коптево
                                                    • Тимирязевский
                                                    • Ховрино
                                                    • Бибирево
                                                    • Лианозово
                                                    • Отрадное
                                                    • Ярославский
                                                    • Гольяново
                                                    • Новогиреево
                                                    • Сокольники
                                                    • Некрасовка
                                                    • Южнопортовый
                                                    • Зябликово
                                                    • Нагатино-Садовники
                                                    • Царицыно
                                                    • Зюзино
                                                    • Черёмушки
                                                    • Крылатское
                                                    • Раменки
                                                    • Покровское-Стрешнево
                                                    • Южное Тушино
                                                    • Матушкино
                                                    • Басманный
                                                    • Таганский
                                                    • Бескудниковский
                                                    • Восточное Дегунино
                                                    • Левобережный
                                                    • Хорошёвский
                                                    • Лосиноостровский
                                                    • Ростокино
                                                    • Богородское
                                                    • Ивановское
                                                    • Новокосино
                                                    • Выхино-Жулебино
                                                    • Нижегородский
                                                    • Бирюлёво Восточное
                                                    • Бирюлёво Западное
                                                    • Москворечье-Сабурово
                                                    • Нагатинский Затон
                                                    • Чертаново Северное
                                                    • Коньково
                                                    • Южное Бутово
                                                    • Кунцево
                                                    • Солнцево
                                                    • Филёвский Парк
                                                    • Северное Тушино
                                                    • Савёлки
                                                    • 10-й
                                                    • 11-й
                                                    • 12-й
                                                    • 14-й
                                                    • 15-й
                                                    • 16-й
                                                    • 17-й
                                                    • 18-й
                                                    • 19-й
                                                    • 2-й
                                                    • 20-й
                                                    • 21-й
                                                    • 22-й
                                                    • 23-й
                                                    • 3-й
                                                    • 4-й
                                                    • 5-й
                                                    • 6-й
                                                    • 7-й
                                                    • 8-й
                                                    • 9-й
                                                    • Внуковское
                                                    • Вороновское
                                                    • Воскресенское
                                                    • Восточный округ
                                                    • Город Зеленоград округ
                                                    • Град Московский
                                                    • Десёновское
                                                    • Западный округ
                                                    • Киевский
                                                    • Клёновское
                                                    • Кокошкино
                                                    • Краснопахорское
                                                    • Марушкинское
                                                    • Михайлово-Ярцевское
                                                    • Московский
                                                    • Московский
                                                    • Мосрентген
                                                    • Новая Москва
                                                    • Новомосковский округ
                                                    • Новофёдоровское
                                                    • Панфиловский
                                                    • Первомайское
                                                    • Первый Московский Город-Парк
                                                    • Роговское
                                                    • Рязановское
                                                    • Северный округ
                                                    • Северо-Восточный округ
                                                    • Северо-Западный округ
                                                    • Сосенское
                                                    • Троицкий округ
                                                    • Филимонковское
                                                    • Центральный округ
                                                    • Щаповское
                                                    • Щербинка
                                                    • Юго-Восточный округ
                                                    • Юго-Западный округ
                                                    • Южный округ
                                                    • по метро
                                                    • Авиамоторная
                                                    • Автозаводская
                                                    • Академическая
                                                    • Александровский сад
                                                    • Алексеевская
                                                    • Алтуфьево
                                                    • Аннино
                                                    • Арбатская
                                                    • Аэропорт
                                                    • Бабушкинская
                                                    • Багратионовская
                                                    • Баррикадная
                                                    • Бауманская
                                                    • Беговая
                                                    • Белорусская
                                                    • Беляево
                                                    • Бибирево
                                                    • Библиотека им. Ленина
                                                    • Новоясеневская
                                                    • Боровицкая
                                                    • Ботанический сад
                                                    • Братиславская
                                                    • Бульвар Адмирала Ушакова
                                                    • Бульвар Дмитрия Донского
                                                    • Бунинская аллея
                                                    • Варшавская
                                                    • ВДНХ
                                                    • Владыкино
                                                    • Водный стадион
                                                    • Войковская
                                                    • Волгоградский проспект
                                                    • Волжская
                                                    • Воробьевы горы
                                                    • Выхино
                                                    • Выставочная
                                                    • Динамо
                                                    • Дмитровская
                                                    • Добрынинская
                                                    • Домодедовская
                                                    • Дубровка
                                                    • Измайловская
                                                    • Калужская
                                                    • Кантемировская
                                                    • Каховская
                                                    • Каширская
                                                    • Киевская
                                                    • Китай-город
                                                    • Кожуховская
                                                    • Коломенская
                                                    • Комсомольская
                                                    • Коньково
                                                    • Красногвардейская
                                                    • Красносельская
                                                    • Красные ворота
                                                    • Крестьянская застава
                                                    • Кропоткинская
                                                    • Крылатское
                                                    • Кузнецкий мост
                                                    • Кузьминки
                                                    • Кунцевская
                                                    • Курская
                                                    • Кутузовская
                                                    • Ленинский проспект
                                                    • Лубянка
                                                    • Люблино
                                                    • Марксистская
                                                    • Марьино
                                                    • Маяковская
                                                    • Медведково
                                                    • Международная
                                                    • Менделеевская
                                                    • Молодежная
                                                    • Нагатинская
                                                    • Нагорная
                                                    • Нахимовский проспект
                                                    • Новогиреево
                                                    • Новокузнецкая
                                                    • Новослободская
                                                    • Новые Черемушки
                                                    • Октябрьская
                                                    • Октябрьское поле
                                                    • Орехово
                                                    • Отрадное
                                                    • Охотный ряд
                                                    • Павелецкая
                                                    • Парк Культуры
                                                    • Парк Победы
                                                    • Партизанская
                                                    • Первомайская
                                                    • Перово
                                                    • Петровско-Разумовская
                                                    • Печатники
                                                    • Пионерская
                                                    • Планерная
                                                    • Площадь Ильича
                                                    • Площадь Революции
                                                    • Полежаевская
                                                    • Полянка
                                                    • Пражская
                                                    • Преображенская площадь
                                                    • Пролетарская
                                                    • Проспект Вернадского
                                                    • Проспект Мира
                                                    • Профсоюзная
                                                    • Пушкинская
                                                    • Речной вокзал
                                                    • Рижская
                                                    • Римская
                                                    • Рязанский проспект
                                                    • Савеловская
                                                    • Свиблово
                                                    • Севастопольская
                                                    • Семеновская
                                                    • Серпуховская
                                                    • Смоленская
                                                    • Сокол
                                                    • Сокольники
                                                    • Спортивная
                                                    • Сретенский бульвар
                                                    • Студенческая
                                                    • Сухаревская
                                                    • Сходненская
                                                    • Таганская
                                                    • Тверская
                                                    • Театральная
                                                    • Текстильщики
                                                    • Теплый Стан
                                                    • Тимирязевская
                                                    • Третьяковская
                                                    • Трубная
                                                    • Тульская
                                                    • Тургеневская
                                                    • Тушинская
                                                    • Улица 1905 года
                                                    • Улица Академика Янгеля
                                                    • Улица Горчакова
                                                    • Бульвар Рокоссовского
                                                    • Улица Скобелевская
                                                    • Улица Старокачаловская
                                                    • Университет
                                                    • Филевский парк
                                                    • Фили
                                                    • Фрунзенская
                                                    • Царицыно
                                                    • Цветной бульвар
                                                    • Черкизовская
                                                    • Чертановская
                                                    • Чеховская
                                                    • Чистые пруды
                                                    • Чкаловская
                                                    • Шаболовская
                                                    • Шоссе Энтузиастов
                                                    • Щелковская
                                                    • Щукинская
                                                    • Электрозаводская
                                                    • Юго-Западная
                                                    • Южная
                                                    • Ясенево
                                                    • Краснопресненская
                                                    • Строгино
                                                    • Славянский бульвар
                                                    • Мякинино
                                                    • Волоколамская
                                                    • Митино
                                                    • Марьина роща
                                                    • Достоевская
                                                    • Шипиловская
                                                    • Зябликово
                                                    • Борисово
                                                    • Новокосино
                                                    • Пятницкое шоссе
                                                    • Алма-Атинская
                                                    • Жулебино
                                                    • Лермонтовский проспект
                                                    • Деловой центр
                                                    • Лесопарковая
                                                    • Битцевский парк
                                                    • Спартак
                                                    • Улица Сергея Эйзенштейна
                                                    • Выставочный центр
                                                    • Улица Академика Королева
                                                    • Телецентр
                                                    • Улица Милашенкова
                                                    • Тропарево
                                                    • Котельники
                                                    • Технопарк
                                                    • Румянцево
                                                    • Саларьево
                                                    • Фонвизинская
                                                    • Бутырская
                                                    • Хорошёво
                                                    • Зорге
                                                    • Панфиловская
                                                    • Стрешнево
                                                    • Балтийская
                                                    • Коптево
                                                    • Лихоборы
                                                    • Окружная
                                                    • Ростокино
                                                    • Белокаменная

                                                    Вместе с этим также ищут:

                                                    Продажа квартир в Москве Продажа однокомнатных квартир в Москве Продажа комнат в Москве Продажа гаражей в Москве Продажа вторички - квартиры в Москве Квартиры в новостройках в Москве

                                                    🏠 Как купить коммерческую недвижимость в Москве на N1?

                                                    • ✔ В поисках объявления о продаже или покупке коммерческой недвижимости в Москве?
                                                    • ✔ На N1 размещены 3,45 тыс коммерческой недвижимости
                                                    • ✔ Чтобы купить или продать недвижимость, воспользуйтесь формой поиска, фильтрами или быстрыми ссылками.

                                                    💸 Сколько стоит коммерческая недвижимость в Москве?

                                                    • 🟢 Средняя цена продажи коммерческой недвижимости - 98,16 млн ₽
                                                    • 🟢 Минимальная стоимость за 1 м2: 169,54 тыс ₽

                                                    📚 Какая площадь коммерческой недвижимости?

                                                    • Наибольшая площадь: 363,36 тыс м²
                                                    • Минимальная площадь: 2 м²