Офисное помещение
Старокалужское шоссе, 64 ст1 Показать на карте
Старокалужское шоссе, 64 ст1 Показать на карте
Калужская, 5 мин
Москва
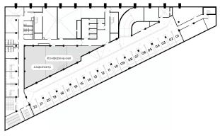
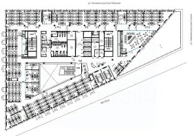
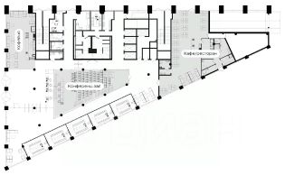
В реализации - офисный блок 7690 кв.м. в составе офисного квартала класса А STONE Калужская для размещения 870 сотрудников.STONE Калужская будет расположен в перспективном деловом районе на Юго-Западе. Квартал состоит из трех офисных башен, объединенных двухуровневым стилобатом, где разместится необходимая инфраструктура.Транспортная доступность:- 1 мин. пешком от м. ''Воронцовская'' (БКЛ- 1 мин. пешком до м. ''Калужская'' (радиальная)- 5 мин. до Ленинского проспекта- 6 км до ТТК- 5,5 км до МКАДПреимущества:- эффективные планировки open space- оснащение всеми современными инженерными системами: круглогодичная система центрального кондиционирования и приточно-вытяжная вентиляция с функцией охлаждения и подогрева- панорамное остекление и возможность естественного проветривания- высота потолков - до 3,65 м- двухуровневый подземный паркинг c зарядкой для электромобилейПомещения передаются в состоянии Shell&Core. Архитектура от бюро Kleinewelt. Строительная готовность - 2028 год.Эффективные планировочные решения и зонирование пространства, максимальное количество естественного освещения, богатая инфраструктура и интерьеры позволит будущему резиденту организовать пространство по собственному дизайн-проекту, воплотив любые идеи.Предлагаем индивидуальные условия приобретения на крупный объем.STONE - девелопер коммерческой и жилой недвижимости классов бизнес и премиум в Москве с 19-летним опытом. С 2022 года занимает лидирующую позицию на офисном рынке (рейтинг РБК). Сегодня в портфеле девелопера представлено 3 млн кв. м построенных, строящихся и проектируемых объектов, из которых более 1 млн кв. м находятся в стадии строительства.Компания имеет самый масштабный проектный портфель офисной недвижимости класса А на московском рынке (данные NF Group) и возглавляет топ-6 устойчивых девелоперов согласно исследованию F Research от Forbes. В настоящий момент девелопером представлено 16 бизнес-центров класса А, а также 3 жилых комплекса бизнес+ класса.ID.28211
7690 м2
- Показать контакты
- Добавить в избранное
7690 м2
3 374 656 400
438 837 /м2
