Офисное помещение
Пресненская набережная, 12 Показать на карте
Пресненская набережная, 12 Показать на карте
Москва
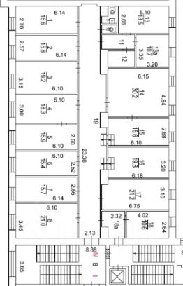
Лот 143200.К продаже предлагается офисный этаж в Башне Федерация Восток флагманский небоскреб ''Москва-Сити'', самая известная башня делового центра. Состоит из двух небоскребов: ''Восток'' и ''Запад'', объединенных общественно-торговым пространством. Под башнями располагаются 4 этажа подземной торговой галереи, с развитой инфраструктурой, являющейся самой большой в Сити. В Башне Федерация расположена самая высокая в Европе смотровая площадка ''Panorama360'', ресторан ''Sixty'' и самый высокий в Европе фитнес-клуб ''NEBO'' с плавательным бассейном на 61 этаже. Ближайшие станции ''Деловой центр'' и ''Международная''. Преимуществом его местоположения является удобная транспортная доступность офиса: он находится непосредственно уПресненской набережной, Кутузовского проспекта и Третьего транспортного кольца.Технические параметры: Общая площадь: 1036 кв.м . Планировка : открытая. Панорамное остекление. К помещению подведены все центральные коммуникации. Состояние - shell&core. Из панорамных окон открывается прекрасный вид на ''Москва-Сити'', набережную, Белый Дом и всю Москву. Ширина каждого окна 1,6 м2Коммерческие условия:• Стоимость - 673 500 000 рублей• Стоимость за 1 м2 - 650 000 рублей• продажа по ДКП от юр.лица
1036 м2
- Показать контакты
- Добавить в избранное
1036 м2
673 500 000
650 097 /м2
