Офисное помещение
Каширское шоссе, 3 корп. 2 ст9 Показать на карте
Каширское шоссе, 3 корп. 2 ст9 Показать на карте
Москва
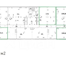
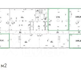
Продаём Офис в бизнес-центре ''Сириус Парк'' по адресу: Москва, Каширское шоссе, 3к2с9. Рабочих мест: от 679 до 1206*.Площадь: 5 427 м2.Планировка: смешанная.Состояние: готово к въезду.Цена за м2: 521 310 руб.Стоимость: 2 829 150 000 руб.Налог: включая НДС.Собственник: юр. лицо.Этаж: 2, 7 из 7.Охрана: система управления контроля доступа.Этот адрес обслуживает налоговая 24. Парковка наземная, стихийная.Системы здания:Вентиляция: приточно-вытяжная.Кондиционирование: центральное.Пожарная сигнализация: спринклерная система.Этот лот состоит из нескольких помещений: 173 кв. м., 190 кв. м., 156 кв. м. и 4908 кв. м.>ID объекта - 027839. Объявление актуально. Пришлём презентацию объекта и альтернатив (5-10 шт.).*Количество рабочих мест рассчитано автоматически: от 4,5 м2 на человека до 8 м2 на человека.Почему клиенты доверяют нам?1. 12000 объектов коммерческой недвижимости Москвы и Области, включая эксклюзивные и внерыночные.2. Работаем без комиссии и скрытых платежей. Вы заключаете договор напрямую с собственником.3. Профессиональное сопровождение: консультации на каждом этапе, помощь в подборе оптимального решения для вашего бизнеса.4. 17 лет опыта в коммерческой недвижимости.Не тратьте время, доверьте поиски нам! Позвоните, и мы оперативно организуем просмотр или подготовим подборку объектов.
5427 м2
- Показать контакты
- Добавить в избранное
5427 м2
2 829 150 000
521 310 /м2
