Офисное помещение
Ходынский бульвар, 10а Показать на карте
Ходынский бульвар, 10а Показать на карте
ЦСКА, 5 мин
Москва
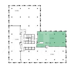
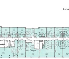
Продаём Офис в бизнес-центре ''Стоун Ходынка эйч 1 (1 очередь)'' по адресу: Москва, Ходынский бульвар, вл10А. Рабочих мест: от 104 до 184*.Площадь: 831 м2.Планировка: открытая.Состояние: под отделку.Цена за м2: 497 000 руб.Стоимость: 413 007 000 руб.Налог: включая НДС.Собственник: юр. лицо.Этаж: 13 из 23.Охрана: система управления контроля доступа.Метро рядом: м. ЦСКА в 1 минуте пешком. Этот адрес обслуживает налоговая 2. Системы здания:Вентиляция: приточно-вытяжная.Кондиционирование: центральное.Пожарная сигнализация: датчики пожаротушения.>ID объекта - 100167. Объявление актуально. Пришлём презентацию объекта и альтернатив (5-10 шт.).*Количество рабочих мест рассчитано автоматически: от 4,5 м2 на человека до 8 м2 на человека.Почему клиенты доверяют нам?1. 12000 объектов коммерческой недвижимости Москвы и Области, включая эксклюзивные и внерыночные.2. Работаем без комиссии и скрытых платежей. Вы заключаете договор напрямую с собственником.3. Профессиональное сопровождение: консультации на каждом этапе, помощь в подборе оптимального решения для вашего бизнеса.4. 17 лет опыта в коммерческой недвижимости.Не тратьте время, доверьте поиски нам! Позвоните, и мы оперативно организуем просмотр или подготовим подборку объектов.
831 м2
- Показать контакты
- Добавить в избранное
831 м2
413 007 000
497 000 /м2
