Офисное помещение
Космодамианская набережная, 4/22а Показать на карте
Космодамианская набережная, 4/22а Показать на карте
Москва
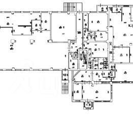
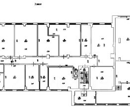
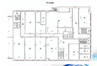
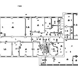
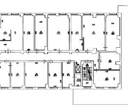
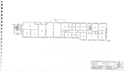
Продается офис в центре Замоскворечья.Полностью оборудован всем необходимым для комфортной работы.Современный ремонт, большое количество естественного света, удобная планировка.3 входа: два входа с набережной и отдельный вход для руководителя с полной изоляцией.3 блока санузлов, один из которых включает душевую.2 кухни и зона для приема пищи.20 кабинетов где комфортно могут работать до 50 сотрудников.Современная система доступа с распознаванием отпечатка пальца и личности.Просторная зона ресепшн и отдельная комната для охраны и водителя.Переговорные, кабинеты для сотрудников и кабинет руководителя с изолированным доступом.Электрические рольставни на всех окнах.Большая бесплатная парковка под шлагбаум во дворе дома.Удобное расположение рядом с метро Новокузнецкая и с живописным видом на Космодамианскую набережную, которая была полностью реконструирована в 2022 году.Развитая инфраструктура (кафе, рестораны, салоны красоты).В пешей доступности от метро Новокузнецкая и других станций метро (Третьяковская , Павелецкая).ЗВОНИТЕ СЕГОДНЯ!
450 м2
- Показать контакты
- Добавить в избранное
450 м2
220 000 000
488 889 /м2
