Офисное помещение
Почтовая Б., 7 ст1 Показать на карте
Почтовая Б., 7 ст1 Показать на карте
Москва
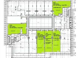
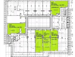
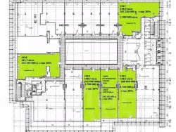
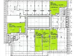
Продажа пая в кооперативе ''Лофт-Пост''. Пай выделен в качестве нежилого помещения, расположенного на 2-м этаже, имеющего общую площадь 89,1 кв. м., из которых площадь по полу составляет 61,5 кв. м (первый уровень), площадь антресоли-27,6 кв. м. Помещение имеет одно большое окно, один стояк канализации и водоснабжения. Без отделки. Общая высота потолков-5,4 метра. Высота потолков в антресоли-2,5 метра. Кооператив ''Лофт Пост''-формирующийся Бизнес-центр, предлагающий часть своих помещений на продажу. Остальные помещения сдаются собственниками в аренду, либо используются самостоятельно для размещения офисов. Круглосуточная охрана, система контроля доступа, современные лифты.
89 м2
- Показать контакты
- Добавить в избранное
89 м2
18 900 000
212 121 /м2
