Офисное помещение
Ходынский бульвар, 6/2 Показать на карте
Ходынский бульвар, 6/2 Показать на карте
ЦСКА, 5 мин
Москва
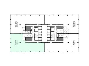
Офисное помещение 317.8 кв. м в бизнес-центре ''STONE Ходынка H3''. Прямая продажа, без комиссии. Объект на стадии активного строительства, готовность ко въезду уточняется по запросу. Округ: Северный (САО). Район: Хорошевский. Характеристики:- Класс: A, - Арендопригодная площадь: 13300, - Размер типового этажа: 1450, - Высота потолков: 4.25 м, 4.85 м, 3.65 м, - Наличие лифта: Есть. Стоимость: 196 940 400 руб. Финансовые условия: - В стоимость включено: НДС, - Налог: Включая НДС. Оформление сделки напрямую от собственника, без комиссии.Готовы оперативно организовать просмотр в удобное время, предоставить PDF-презентацию и план. Точное местоположение объекта можно найти по данным координатам: 55.788125,37.533697 ID = c_1759555
317 м2
- Показать контакты
- Добавить в избранное
317 м2
196 940 400
619 699 /м2
