Офисное помещение
Фрунзенская 3-я, 19 Показать на карте
Фрунзенская 3-я, 19 Показать на карте
Москва
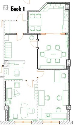
id:2476. Объект: Двухуровневый офисОбщая площадь: 252,1 мЖК: ''Ла Дефанс'' (элитный)Метро: Фрунзенская, Спортивная (7 мин. пешком)Описание:Офис премиум-класса с разделением на общую и приватную зоны. На первом уровне расположены 4 кабинета, open-space зона, переговорная комната, кухня и 2 санузла. Второй уровень полностью отведён под изолированный кабинет руководителя с дополнительной кухней и санузлом.Ключевые преимущества: Элитная локация с отличной транспортной доступностью. Современная отделка и функциональное зонирование. Возможность размещения штата 15-20 человек. Приватная VIP-зона для руководства.Целевая аудитория: Компании, ориентированные на престиж, комфорт сотрудников и эффективную организацию рабочего пространства.
252 м2
- Показать контакты
- Добавить в избранное
252 м2
225 000 000
892 503 /м2
