Офисное помещение
Ходынский бульвар, 6 ст2 Показать на карте
Ходынский бульвар, 6 ст2 Показать на карте
ЦСКА, 5 мин
Москва
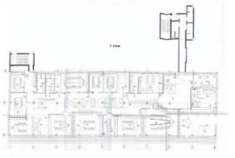
Рассрочка 0% до окончания строительстваВ реализации - офис в составе премиального офисного квартала на Ходынке напрямую от застройщика STONE, лидера офисного рынка.Планировки офисов соответствуют требованиям функционального офиса: глубина помещения - до 10 м, высота потолков - 3,65 м, шаг колонн - 8,4 х 8,4 м, отделка Shell&Core. Окна в пол обеспечат оптимальный уровень инсоляции и предусматривают возможность естественного проветривания.Квартал расположен в 1 минуте ходьбы от м. ''ЦСКА'', в районе Ходынского поля, граничит с Ленинградским деловым коридором - статусное бизнес-соседство позволит резидентам комфортно выстраивать деловые связи.Архитектура от бюро PARSEC. Квартал STONE Ходынка 1 состоит из 3-х разноэтажных башен общей площадью 89 тыс. кв. м.Транспортная доступность:- 1 мин. пешком от м. ''ЦСКА''- 20 мин. от м. ''Динамо''- 950 м до Ленинградского проспекта- 20 мин. без пересадок до Москва-СитиВ STONE Ходынка 1 будет создана собственная развитая инфраструктура, основной объем которой будет сосредоточен на первых этажах башен. Здесь появятся кафе и рестораны с выходом в парк, магазины и столовая, а также просторная бизнес-гостиная и фитнес-студия.Премиальный офисный квартал STONE Ходынка 1 реализуется в концепции Healthy building: улучшенные системы вентиляции, круглогодичное кондиционирование, многоступенчатая система очистки воздуха и биофильный дизайн.STONE - девелопер коммерческой и жилой недвижимости классов бизнес+ и премиум в Москве. С 2022 года занимает лидирующую позицию на офисном рынке (рейтинг РБК). За 18 лет компания вывела на рынок 28 проектов. Компания имеет самый масштабный проектный портфель офисной недвижимости класса А на московском рынке (данные NF Group) и возглавляет топ-6 устойчивых девелоперов, согласно исследованию FResearch (Forbes).ID.14528
148 м2
- Показать контакты
- Добавить в избранное
148 м2
90 470 400
608 000 /м2
