Офисное помещение
Двинцев, 3 ст4 Показать на карте
Двинцев, 3 ст4 Показать на карте
Савеловская, 6 мин
Москва
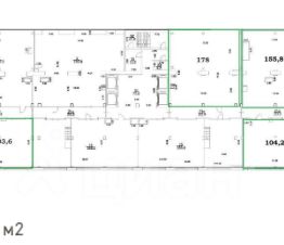
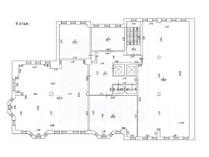
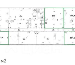
Продаём Офис в бизнес-центре ''СТОУН Савеловская (Башня 2)'' по адресу: Москва, улица Двинцев, 3с4. Рабочих мест: от 756 до 1342*.Площадь: 6 042 м2.Планировка: смешанная.Состояние: под отделку.Цена за м2: 538 969 руб.Стоимость: 3 256 450 000 руб.Налог: включая НДС.Собственник: физ. лицо.Этаж: 3, 13, 22, 23 из 24.Охрана: круглосуточная охрана здания.Метро рядом: м. Савёловская в 4 минутах пешком, м. Савёловская в 7 минутах пешком, м. Марьина Роща в 17 минутах пешком. Этот адрес обслуживает налоговая 15. Парковка подземная.Системы здания:Вентиляция: приточно-вытяжная.Кондиционирование: центральное.Пожарная сигнализация: спринклерная система.Этот лот состоит из нескольких помещений: 904 кв. м., 1531 кв. м., 1782 кв. м. и 1825 кв. м.>ID объекта - 027304. Объявление актуально. Пришлём презентацию объекта и альтернатив (5-10 шт.).*Количество рабочих мест рассчитано автоматически: от 4,5 м2 на человека до 8 м2 на человека.Почему клиенты доверяют нам?1. 12000 объектов коммерческой недвижимости Москвы и Области, включая эксклюзивные и внерыночные.2. Работаем без комиссии и скрытых платежей. Вы заключаете договор напрямую с собственником.3. Профессиональное сопровождение: консультации на каждом этапе, помощь в подборе оптимального решения для вашего бизнеса.4. 17 лет опыта в коммерческой недвижимости.Не тратьте время, доверьте поиски нам! Позвоните, и мы оперативно организуем просмотр или подготовим подборку объектов.
6042 м2
- Показать контакты
- Добавить в избранное
6042 м2
3 256 450 000
538 969 /м2
