Универсальное помещение
Академика Анохина, 2 корп. 3 Показать на карте
Академика Анохина, 2 корп. 3 Показать на карте
Юго-Западная, 13 мин
Москва
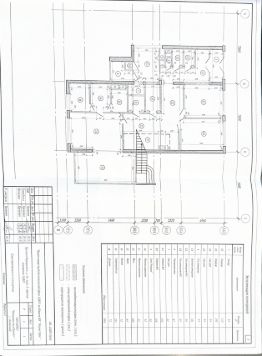
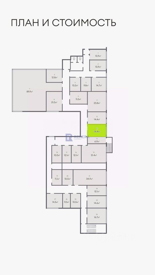
Продам нежилое помещение свободного назначения (идеально под офис, представительство компании, медицину. косметологию, салон красоты, нотариат, ветеринарную клинику, арендный бизнес) площадью 150 кв.м. в Тропарёво - Никулино, расположенное в многоквартирном доме на первом этаже. Плотный жилой массив. Район высокой покупательской способности. Средний доход населения в этой локации 500 000 рублей на человека в месяц (по данным специализированной платформы, отчет по запросу). Адрес: г. Москва, район Тропарёво-Никулино, ул. Академика Анохина, д. 2, корп. 3. Всего в 10 минутах ходьбы от метро Юго-Западная , идеальная локация для бизнеса или инвест - проекта в плотной жилой застройке. Район с дефицитом коммерческих помещений в аренду и покупку. Площадь помещения 150 кв.м. Первый этаж жилого дома с двумя отдельными входами (с фасада и со двора) - максимальная видимость и удобство. Помещение угловое, отличный рекламный потенциал. Кабинетная планировка, высота потолков 3 м, окна в каждом кабинете, 4 мокрые точки (вода, канализация), идеально подходит под открытие медицинской клиники, косметологии, стоматологии. Выделенная электрическая мощность 18 кВт, возможно увеличение. План БТИ по запросу. Идеально под: офис, представительство компании, медицинскую клинику, стоматологию, образовательный центр, детский центр, салон красоты, банк, интернет-магазин, клиентский офис, косметологию, нотариальную контору, турагентство или услуги.Рядом вся инфраструктура: торговые центры, супермаркеты, поликлиники, школы/садики, фитнес-клубы. Полная стоимость в договоре. Юридическая чистота документов. Звоните с 08:00 до 23:00 и в будни и в выходные. Показ оперативно.
150 м2
- Показать контакты
- Добавить в избранное
150 м2
49 000 000
326 667 /м2
