Офисное помещение
Мневники Нижн., 37а ст17 Показать на карте
Мневники Нижн., 37а ст17 Показать на карте
Москва
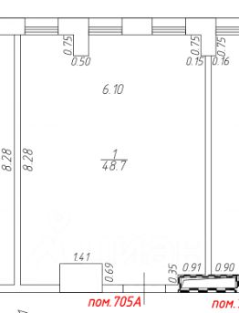
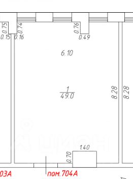
Рассрочка 0% до окончания строительстваВ реализации - офис, рассчитанный на команду от 5 до 40 человек, в составе премиального бизнес-центра STONE Мнёвники. Первый офисный проект в живописной Мнёвниковской пойме среди знаковых объектов спортивной инфраструктуры в окружении ЖК ''Остров''.Планировки соответствуют требованиям функционального офиса: глубина помещения - до 12 м, высота потолков - 3,65 м, шаг колонн - 8,4 х 8,4 м. Окна в пол обеспечат оптимальный уровень инсоляции и предусматривают возможность естественного проветривания.Благодаря расположению на берегу реки из офисов открываются паромные виды на парк и воду. Зелёные зоны создают благоприятный микроклимат, а также приятную атмосферу, повышая настроение сотрудников.Архитектурную концепцию STONE Мнёвники разрабатывает бюро Kleinewelt Architekten. Объект обладает вытянутым строгим силуэтом с металлическими ламелями. Важным акцентом в архитектурной композиции выступают арочные фасады.Транспортная доступность:- 7 мин. пешком от м. ''Терехово'' (БКЛ)- 15 мин. до Москва-Сити- 700 м до Гребного канала- 3 км до Рублёвского шоссеПремиальный бизнес-центр реализуется в концепции ''Здоровое строительство'': улучшенные системы вентиляции, круглогодичное кондиционирование, многоступенчатую систему очистки воздуха и биофильный дизайн.В STONE Мнёвники будет создана собственная развитая инфраструктура для резидентов. Здесь появятся кафе и рестораны с верандой, выходящей к реке, бизнес-гостиные с кофейным баром, аптеки, салоны красоты и другие торговые точки.STONE - девелопер коммерческой и жилой недвижимости классов бизнес и премиум в Москве с 19-летним опытом. Сегодня занимает лидирующую позицию на офисном рынке (рейтинг РБК). В портфеле девелопера представлено 3 млн кв. м построенных, строящихся и проектируемых объектов, из которых более 1 млн кв. м находятся в стадии строительства.Компания имеет самый масштабный проектный портфель офисной недвижимости класса А на московском рынке (данные NF Group) и возглавляет топ устойчивых девелоперов, согласно исследованию FResearch - Forbes. В настоящий момент девелопером представлено 17 бизнес-центров класса А, а также 4 жилых комплекса бизнес+ класса.ID.21505
3135 м2
- Показать контакты
- Добавить в избранное
3135 м2
1 746 073 750
556 961 /м2
