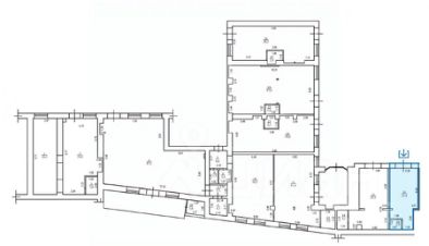
Универсальное помещение
Новокузнецкая, 33 ст1 Показать на карте
Новокузнецкая, 33 ст1 Показать на карте
Павелецкая, 5 мин
Москва
Предлагается помещение свободного назначения, в котором расположен функционирующий ресторан под названием Мацони. Он находится на первом этаже отдельного здания и состоит из двух обеденных залов. Также имеется удобная зона бара, оснащённая всем необходимым оборудованием, а также раздельные мужской и женский санитарные узлы.Подвал (этаж -1), помимо основного пространства, включает дополнительный уютный гостевой зал, который может быть использован для проведения мероприятий или приватного отдыха посетителей. В подвале располагаются кухня со всеми необходимыми рабочими местами и технологическим оборудованием, отдельные складские помещения для хранения продуктов и заготовок, удобные шкафы для личных вещей персонала и служебно-вспомогательные помещения.Ресторан функционирует как стабильно работающий бизнес-проект. На данный момент помещение полностью сдано в долгосрочную аренду единственному арендатору. Срок действия текущего договора аренды составляет 14 лет, при этом ежемесячно поступает фиксированный платёж в размере одного миллиона рублей. Важно отметить, что за последние десять лет установленная арендная ставка ни разу не подвергалась индексации, что обеспечивает стабильность дохода для владельца недвижимости.Питание электроэнергией осуществляется через мощную сеть с разрешенной нагрузкой до 100 киловатт, обеспечивая бесперебойное функционирование всех электроприборов и оборудования ресторана.В рамках предложения предусмотрены различные варианты приобретения данного объекта:— Покупка в качестве уже существующего успешного бизнеса (Готовый актив бизнеса), где новый владелец принимает на себя действующий договор аренды и продолжает получать регулярный денежный поток,— Приобретение исключительно коммерческой недвижимости (Готовое помещение), которая затем может использоваться новым владельцем самостоятельно или сдаваться другим арендаторам.Основные преимущества предлагаемого объекта заключаются в следующем:- Наличие долгосрочной аренды у надежного и проверенного временем арендатора,- Оптимальная внутренняя планировка помещений, позволяющая эффективно организовать деятельность предприятий общественного питания,- Полностью подготовленные и пригодные для эксплуатации площади, которые не требуют дополнительных вложений перед началом работы нового владельца,- Минимальные эксплуатационные расходы, возложенные на собственника, так как текущие обязанности по содержанию помещения исполняет арендатор.Для потенциальных покупателей доступна подробная информация, включающая юридическое описание объекта, финансовую отчетность компании и другие важные документы. Данные материалы предоставляются по отдельному запросу после предварительного согласования условий ознакомления.
286 м2
- Показать контакты
- Добавить в избранное
286 м2
150 000 000
524 476 /м2
