Универсальное помещение
Голубинская, 21а Показать на карте
Голубинская, 21а Показать на карте
Ясенево, 11 мин
Москва
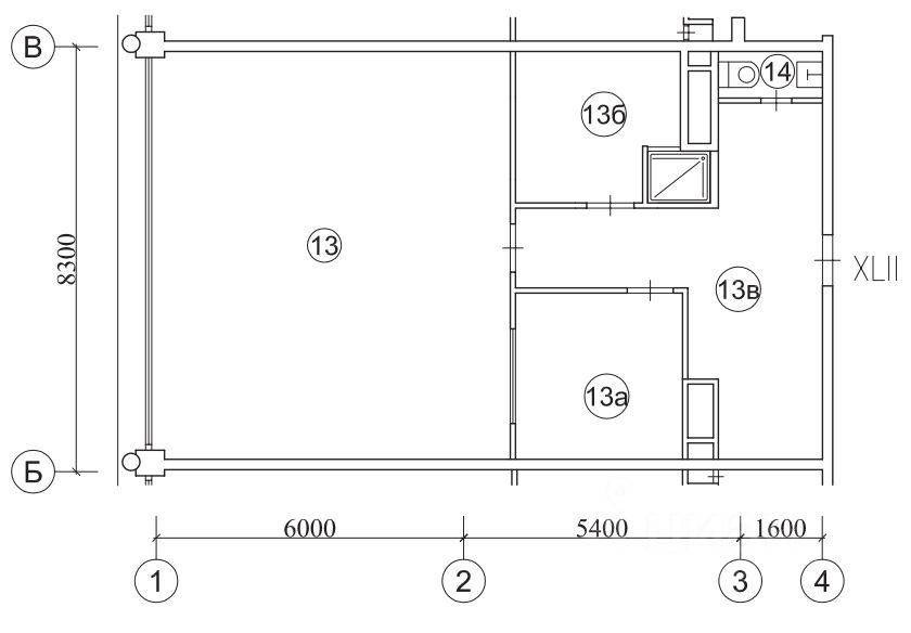
Арт. 133155457 Продаётся помещение свободного назначения 136 м² на Голубинской улицеПродаётся просторное помещение свободного назначения площадью 136 м2 по адресу: Москва, Голубинская ул., 21А. Объект расположен на первом этаже многоэтажного паркинга, имеет отдельный вход со двора и удобную прилегающую стоянку. Идеальное решение для предпринимателей, ищущих гибкое пространство под разные бизнесзадачи.Ключевые параметры*Общая площадь: 136 м2,*Этаж: 1й,*Высота потолков: 2,8 м,*Отделка: без отделки — даёт полную свободу для реализации собственного дизайнпроекта,*Мощность электросети: 50 кВт (есть возможность увеличения),*Отопление: отсутствует (можно организовать под специфику бизнеса),*Вход: отдельный, со двора,*Тип сделки: продажа,*Готовность: в эксплуатации,*Парковка: бесплатная, на улице, удобная прилегающая стоянка.*Расположение и транспортная доступностьАдрес: Москва, Голубинская ул., 21А.Близость к станциям метро:''Ясенево'':1115 минут пешком,''Новоясеневская'': 2130 минут,''Битцевский парк'': 2130 минут.Преимущества локации:*Первая линия от дороги - хорошая видимость и доступность для клиентов,*развитая инфраструктура района Ясенево: магазины, кафе, сервисы, остановки общественного транспорта,*Удобная транспортная развязка, быстрый выезд на основные магистрали,*Наличие бесплатной парковки рядом - удобно для клиентов и сотрудников,*7 машиномест в составе объекта - дополнительный плюс для автобизнеса или ПВЗ.Характеристики здания*Тип здания: многоэтажный паркинг,*Удалённость от дороги: первая линия,*Доступ: отдельный вход со двора, возможность устройства отдельного въезда,*Коммуникации: подключены центральные сети (электричество),*Состояние: помещение готово к эксплуатации, требует отделки под нужды будущего владельца.Варианты использованияБлагодаря универсальности и расположению помещение подходит для:*Пункта выдачи заказов (ПВЗ) маркетплейсов (Ozon, Wildberries, Яндекс Маркет и др.),*Автосервиса, шиномонтажа, автомойки,*Небольшого производства или мастерской,*Склада с зоной выдачи,*Офиса с демонстрационным залом,*Студии, коворкинга или творческого пространства,*Миницеха по сборке или упаковке товаров.По поводу покупки просьба звонить
136 м2
- Показать контакты
- Добавить в избранное
136 м2
13 800 000
101 471 /м2
