Универсальное помещение
Марка Шагала набережная, 13 Показать на карте
Марка Шагала набережная, 13 Показать на карте
ЗИЛ, 14 мин
Москва
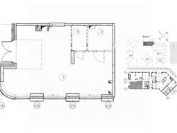
Объект333235Продается угловое офисное помещение с собственной террасой в ЖК ShagalПредлагается к продаже просторное угловое офисное помещение площадью 316,9 м² без учета террасы, расположенное на 5 этаже в первой очереди строительства жилого квартала Shagal по адресу: г. Москва, ул. Набережная Марка Шагала, д. 13.Помещение находится на первой линии, имеет отдельный вход с главной дороги и собственную лифтовую группу, что обеспечивает удобный доступ для сотрудников, клиентов и посетителей. Формат объекта отлично подойдет под офис компании, представительский офис, шоурум, клиентский центр или иной коммерческий формат.Планировка — открытая, помещение передается в бетоне, без ремонта, что позволяет реализовать индивидуальную концепцию пространства под задачи будущего собственника. Объект оснащен всеми необходимыми инженерными коммуникациями. Выделенная электрическая мощность составляет 63 кВт, из расчета 0,2 кВт на 1 м².Одно из ключевых преимуществ — собственная терраса, которая может стать дополнительной зоной отдыха, переговорным пространством или статусным элементом офиса.ЖК Shagal — масштабный современный квартал, рассчитанный на 25 000 жителей. Ежедневный потенциальный клиентский поток в локации может достигать до 50 000 человек. В окружении расположены четыре жилых комплекса бизнес-класса, что формирует устойчивую деловую и потребительскую среду.В пешей и транспортной доступности находятся станции ЗИЛ, МЦК ЗИЛ и Технопарк. Также предусмотрен подземный паркинг на -2 этажах. Возможна продажа помещения вместе с парковочными местами, условия обсуждаются отдельно.Собственник — ООО, продажа с НДС 22%. Срок окупаемости объекта — менее 10 лет.Звоните!
316 м2
- Показать контакты
- Добавить в избранное
316 м2
120 000 000
379 747 /м2
