Отдельностоящее здание
Переведеновский переулок, 13 ст7 Показать на карте
Переведеновский переулок, 13 ст7 Показать на карте
Бауманская, 13 мин
Москва
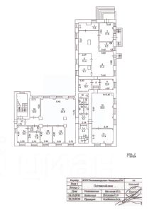
Готовый арендный бизнес с доходностью 9%.Продаётся 4-х этажное офисное здание, располагающееся в Басманном районе ЦАО, Переведеновский переулок, д. 13, общей площадью 2 258,9 м2, кабинетная планировка, в здании установлен лифт. Удобный выезд на ТТК. В шаговой доступности станции метро Электрозаводская, Сокольники, Бауманская. В здании использованы высококачественные отделочные материалы, здание оборудовано согласно современным требованием комфорта и безопасности. Установлены системы кондиционирования воздуха, приточно-вытяжная вентиляция, АПС.
2258 м2
- Показать контакты
- Добавить в избранное
2258 м2
360 000 000
159 370 /м2
