Отдельностоящее здание
Сыромятнический проезд, 8 Показать на карте
Сыромятнический проезд, 8 Показать на карте
Курская, 9 мин
Москва
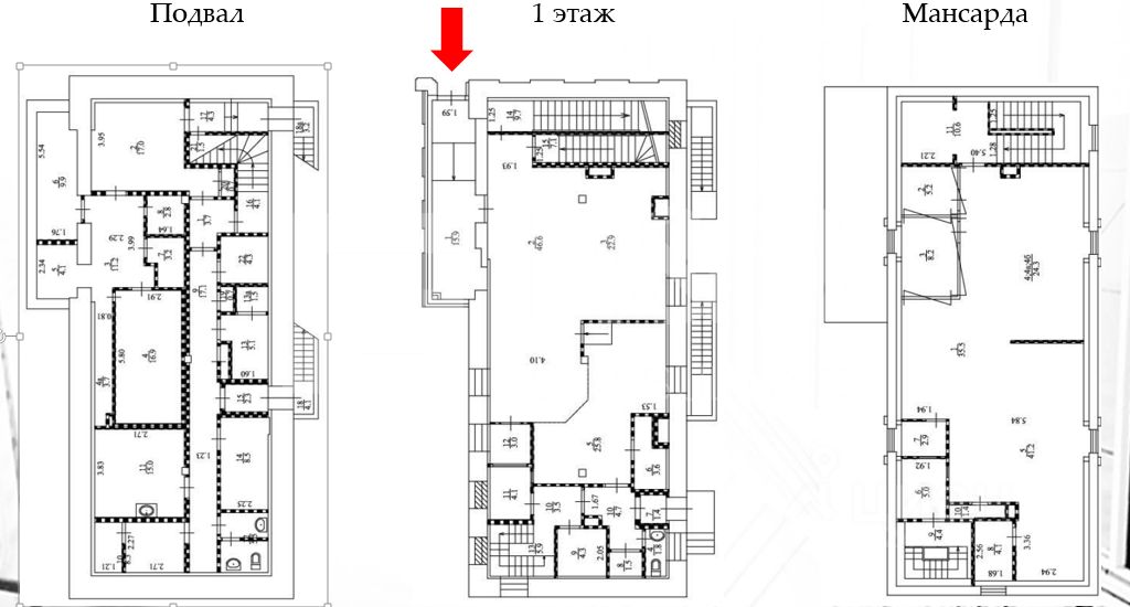
Двухэтажный особняк с подвалом в Сыромятническом проезде в Басманном районе. Исторический особняк был построен в 1890 году. Внутри кабинетная планировка со сводчатыми потолками, отделка в офисном стиле, в подвале оборудованы две сауны. Здание оснащено центральными коммуникациями и местным кондиционированием. На огороженной территории предусмотрена наземная парковка на 10 мест. Особняк подойдёт для размещения представительства, штаб-квартиры, офиса или бизнес-центра.Главное о локации. Здание расположено рядом с художественным центром ''Винзавод'', парком усадьбы Усачёвых-Найдёновых, Верхним Сыромятниченским сквером и Старым парком. Удобный выезд на набережную Академика Туполева, за 3 минуты можно доехать до Садового кольца, до ТТК — за 10 минут. До станций метро ''Курская'' и ''Чкаловская'' можно дойти за 11 минут пешком.История здания. Большой благотворительный комплекс, расположенный на берегу Яузы, строился с 1888 года по завещанию известного московского первогильдейского купца Герасима Ивановича Хлудова. Главными попечительницами и жертвовательницами были его дочери-наследницы. После устройства богадельни, корпусов бесплатных квартир и отделения для слабых и подверженных недугам, дошла очередь и до учебного заведения ''Начальное училище имени Востряковых''. Проект был заказан архитектору Кекушеву, который много строил для наследниц Хлудова в 1890-е годы. Небольшая двухэтажная пристройка получилась очень лаконичной. Только наличники окон выдают почерк мастера. Рамы окон со сложной расстекловкой довольно глубоко утоплены в плоскости стены сложным профилем. После революции училище было закрыто.Комментарий эксперта. Меня зовут Артур Мужиков — брокер компании Whitewill. Я отвечаю за продажу этого лота. Свяжитесь со мной, чтобы получить расширенную презентацию, больше фотографий или договориться о просмотре. Могу провести экскурсию по локации и познакомить вас с этим домом.ID 2 187.
1044 м2
- Показать контакты
- Добавить в избранное
1044 м2
350 000 000
335 249 /м2
