Отдельностоящее здание
Каширское шоссе, 43 корп. 5 Показать на карте
Каширское шоссе, 43 корп. 5 Показать на карте
Москва
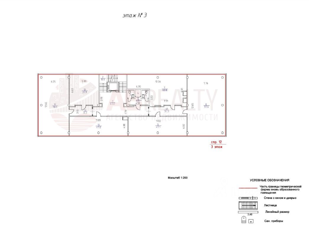
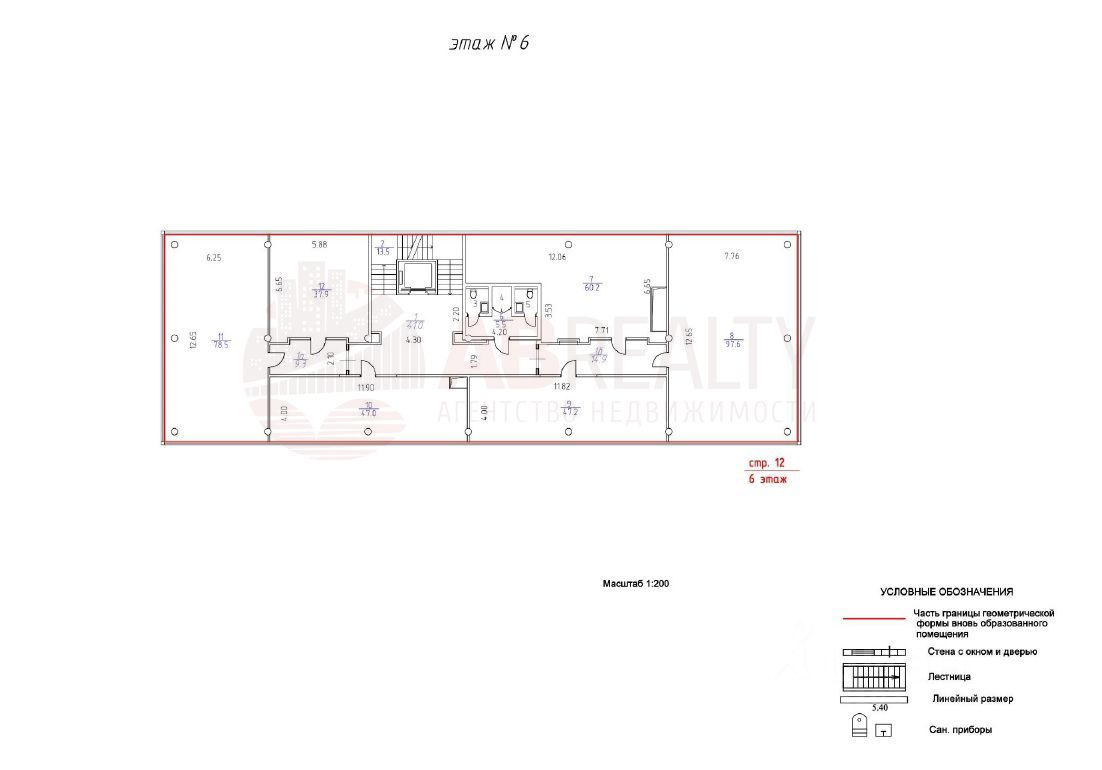
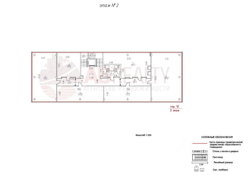
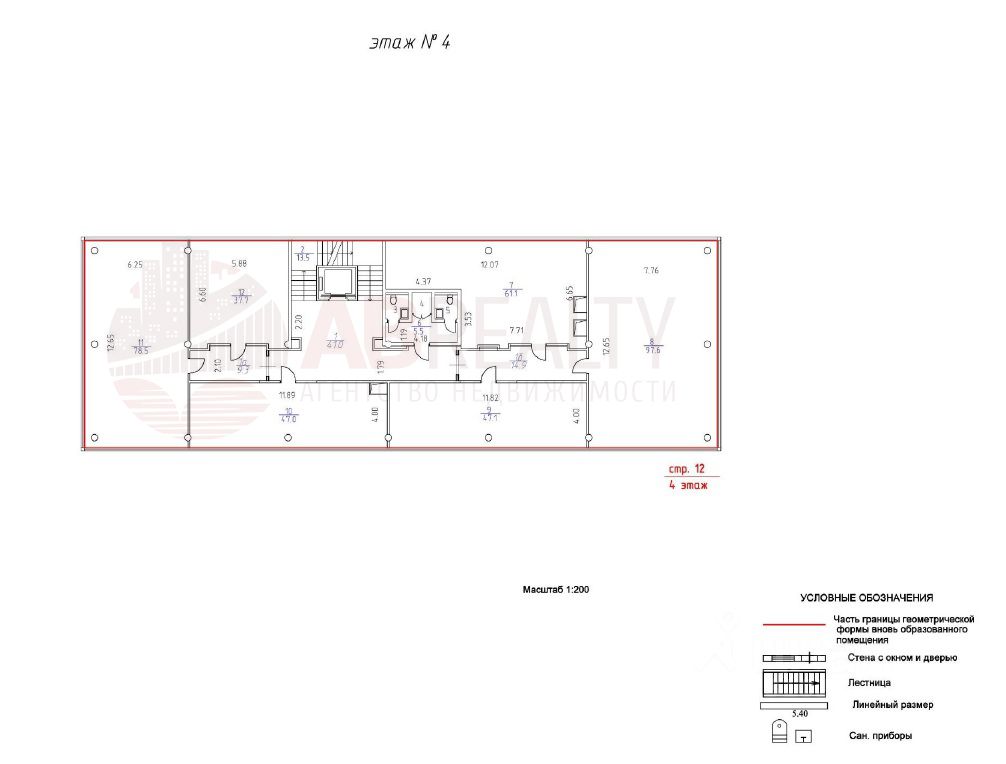
Продаётся офисное здание общей площадью 1400 м2.В настоящее время помещения в здании сдаются в аренду под офисы. Все помещения сданы. В среднем стоимость аренды 2000 руб/кв.м.Здание расположено на огороженной охраняемой территории, круглосуточное видеонаблюдение.Участок 17 соток. Имеется отдельный въезд и парковка для арендаторов.Здание после качественного капитального ремонта как фасада, так и всех внутренних помещений.Имеет отдельный вход с кабинетом охранны, цокольный этаж и три этажа вверх, включая мансарду.Электричество 65 кВт, возможно расширение.ГВС, ХВС и отопление центральные. Стоимость коммунальных платежей около 60 000 руб/мес.В перспективе строительство новой ветки метрополитена, что улучшит его пешую доступность.Возможность освобождение здания от арендаторов.Хорошо подходит под медицинский или реабилитационный центр.Участок в аренде на 49 лет (осталось 47 лет).Стоимость аренды 120 000 руб/месяц.в собственности. Все документы в сборе, без обременений и проблем.
1400 м2
- Показать контакты
- Добавить в избранное
1400 м2
170 000 000
121 429 /м2
