Офисное помещение
Минская, 2ж Показать на карте
Минская, 2ж Показать на карте
Москва
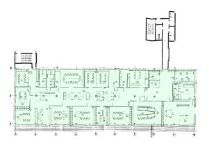
Продажа Хай-Тек офиса А класса в бизнес центре Виктори Парк! 7 этаж, самый высокий в здании. Офис сдан в аренду. Продажа от собственника по договору купли продажи. Торг обсуждаем! Показ в любое удобное Вам время! Оплатим вознаграждение брокерам. Бизнес центр построен в 2014 году. Имеет презентабельную входную группу. Локация прямо у метро. Планировка смешанная. Дизайнерская отделка выполнена в стиле HI TECH. Есть VIP зона руководства, переговорные, серверная, зона ресепшена, мини кухня, лифт, панорамное остекление, санузлы. Документы готовы к сделке. Офис без ограничений, без залогов, ипотек и т.д. Один собственник юр.лицо. Энергоснабжение 300 кВт Современные системы тепло - водо - и электроснабжения Система приточно-вытяжной вентиляции Система кондиционирования каждого помещения Автоматическая пожарная сигнализация Оптоволоконная телефонная связь и интернет Система управления эвакуацией Система охраны и видеонаблюдения
975 м2
- Показать контакты
- Добавить в избранное
975 м2
511 875 000
525 000 /м2
