Офисное помещение
Авиаконструктора Микояна, 1 Показать на карте
Авиаконструктора Микояна, 1 Показать на карте
ЦСКА, 7 мин
Москва
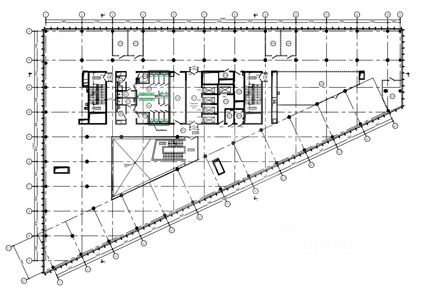
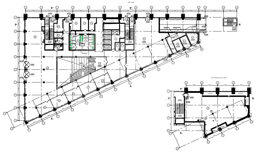
Новое строительство!Предлагается на продажу офис в нежилом, отдельно стоящем здании, расположенном в Хорошёвском районе (САО), на перекрестке улиц Авиаконструктора Сухого и Авиаконструктора Микояна. Первая линия домов. Ближайшая станция метро ЦСКА в 300 метрах ходьбы от здания.Общая площадь : 9873 м²Наземная площадь : 7924 м²Подземная площадь : 1949 м²0 этаж : 1949 м² (высота потолков 437)1 этаж : 1146 м² (высота потолков 760)Антресоль : 236 м² (высота потолков 350)2 этаж : 1687 м² (высота потолков 350)3 этаж : 1687 м² (высота потолков 350)4 этаж : 1687 м² (высота потолков 350)5 этаж : 1478 м² (высота потолков 350)Земельный участок : 4330 м²Вид права : аренда до 2046 годаВРИ : участки смешанного размещения общественно-деловых объектов (1.2.17)- Разрешение на строительство : 1Q 2021- Ввод в эксплуатацию : 2Q 2025- Наружные стены : монолитные- Перекрытия : монолитные- Пассажирские лифты : 4 шт.- Грузовой лифт : 1 шт.- Подземная парковка : 22 м/мВ 3Q 2025 года будет завершена отделка в здании, к этому времени, планируется сдача площадей в аренду по рабочим местам. Потенциальная вместимость в режиме коворкинга 1450 р/м. Стоимость аренды готовых рабочих мест от 50 000 ?/мес. за р/м (без учета НДС). На 5 этаже здания предполагается размещение террасы. Проект благоустройства территории включает в себя 5 тематических функциональных зон: площадь, сквер, кафе, лес и дети. В рамках сервисного обслуживания, возможно, предоставление различных услуг, набор которых можно комбинировать. Возможна продажа этажами. >ID объекта - 60317
9836 м2
- Показать контакты
- Добавить в избранное
9836 м2
6 437 957 080
654 530 /м2
