Универсальное помещение
Юровская, 92 Показать на карте
Юровская, 92 Показать на карте
Москва
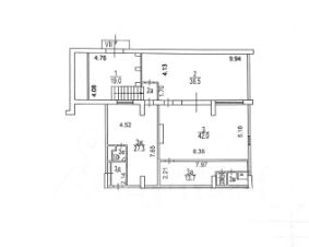
Сдается нежилое помещение по адресу: г. Москва, ул. Юровская, д. 92. Общая площадь 117 кв.м. Отдельный вход. Просторная входная группа, 2 зала, раздевалка, душевая, санузл.Прямая аренда. Просмотры по договоренности.
117 м2
- Показать контакты
- Добавить в избранное
117 м2
180 000 /мес.
1 538 /м2
