logo
N1.RU — новая улучшенная версия Е1.Недвижимость
Чтобы вернуться на старый сайт Е1.Недвижимость, перейдите по ссылке в нижней части сайта N1.RU
  • Продажа
  • Аренда
  • Новостройки
  • Журнал
  • Компании
  • Шаблоны документов
  • Налоговый вычет
  • Еще
  • Личный кабинет
    • Регистрация на Циан
    • Москва
  • Добавить объявление
Тип недвижимости
Москва
Поиск в любом из этих мест
ул. Тверская, Москва
  • Метро
  • Район и микрорайон
Тип помещения
Цена, ₽/месяц
  1. Недвижимость в Москве
  2. Аренда
  3. Коммерческая
  4. Универсальное помещение
  5. ул. Тверская
  6. 16 объявлений

Аренда коммерческой недвижимости на улице Тверская в Москве

За все время
Сортировка по умолчанию
СпискомСписком
ТаблицейТаблицей
На картеНа карте
Открыть поиск по карте

По вашему запросу объявлений не найдено

1/12
Универсальное помещение
Тверская, 22а
 Показать на карте
Москва
В историческом центре Москвы, в административном и культурном центре, в особняке - Бизнес центре, сдается помещение свободного назначения с отдельным входом.Пешком до метро 5 минут: Тверская Пушкинская Маяковская Транспортная доступность: между Садовым и Бульварным кольцом, на Тверской улице. В пешей доступности Кремль, Минэкономразвития, Государственная Дума РФ, управление Росимущества, Мэрии Москвы, многочисленные административные и офисные здания, театры, рестораны, магазины, гостиницы, элитное жилье и др.Площадь помещение 200,0 кв.м. Отдельный вход.Потолки 3 метра.Арендные каникулы для ремонта предоставляются.Прямой договор с собственником.Возможно рассмотреть размещение офиса, магазина, шоу-рума, клиники, ресторана и др.Звоните и записывайтесь на показ!
200 м2
  • Показать контакты
  • Добавить в избранное
200 м2
916 000 /мес.
4 580 /м2
    1/7
    Универсальное помещение
    Тверская, 6 ст1
     Показать на карте
    Москва
    Сдается помещение, площадью 132 кв.м., расположенное на первом этаже жилого дома, находящегося на одной из основных торговых артерий столицы улице Тверская. 100% Street Retail, первая линия, витрины, потолки высотой 6 метров, дизайнерский ремонт, качественная отделка, сплит-система, естественная вытяжка. Два входа: с Тверской и второй выход во двор. Открытая планировка, зал 98 кв.м. на пеовом уровне и 30 кв.м. антресоль, оборудованные примерочные и склад, санузел, мощность 25 Квт (возможно увеличение). Высокий пешеходный и автомобильный трафик, рекламный потенциал. ПА, УСН, гибкие условия аренды. Идеально под банк, бутик, магазин брендовой одежды, часов и/или аксессуаров и различные виды торговой деятельности а также под кофейню, кондитерскую, бар, кафе и прочее. Без комиссий!
    132 м2
    • Показать контакты
    • Добавить в избранное
    132 м2
    1 700 000 /мес.
    12 878 /м2
      1/8
      Универсальное помещение
      Тверская, 28 корп. 2
       Показать на карте
      Москва
      Сдается помещение площадью 72 кв.м. Отдельный вход в жилом доме. Огорожен забором. Все коммуникации центральные. Возможно оформить пропуск для парковки во дворе. Хорошая транспортная доступность. Развитая инфраструктура.Звонить с 9-00 до 17-00 в будни. Показы объектов происходят только в рабочее время (по выходным показов нет).
      72 м2
      • Показать контакты
      • Добавить в избранное
      72 м2
      203 040 /мес.
      2 820 /м2
        1/9
        Универсальное помещение
        Тверская, 15
         Показать на карте
        Москва
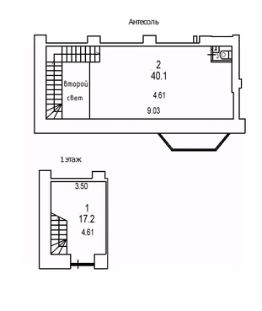
        Предлагается в долгосрочную аренду нежилое помещение, общей площадью 85 кв.м., формат стрит-ритейл. Первый этаж, первая линия Тверской, презентабельная входная группа с Тверской. Помещение состоит из первого этажа 55 кв.м. и антресоли 28 кв.м., высокие потолки, все коммуникации центральные, мощность по запросу. Рекламный потенциал вывеска на фасаде, летняя веранда. Высокий пешеходный и автомобильный трафик. Возможно арендовать под торговлю, услуги или общепит без горячего цеха (неполный цикл). Оперативный просмотр. ПА, УСН.
        85 м2
        • Показать контакты
        • Добавить в избранное
        85 м2
        900 000 /мес.
        10 588 /м2
          1/29
          Универсальное помещение
          Тверская, 24
           Показать на карте
          Пушкинская, 5 мин
          Москва
          Предлагаем в аренду бизнес-центр на 834 - 2222 сотрудников.Разработаем планировку под вашу команду бесплатно с неограниченными правками.Площадь: 10 000 м².Состояние: готов к въезду.Арендная плата: 70 833 333 руб./мес.Ставка: 85 000 руб./м²/год (включая эксплуатацию).Налогообложение: включая НДС.Коммунальные расходы: оплачиваются по факту.Тип аренды: прямая аренда.Здание с функциональной смешанной планировкой. Вентиляция: приточно-вытяжная.Кондиционирование: центральное.Охрана: система управления контроля доступа.Пожарная сигнализация: датчики пожаротушения.Бизнес-центр класса A расположен рядом с метро Маяковская, Пушкинская и Тверская.Удобный выезд на:Садовое кольцо, Бульварное кольцо.Инфраструктура здания:Ресторан, 4 пассажирских лифта.В пешей доступности:Сад ''Аквариум'', Сад ''Эрмитаж'', музеи и театры Тверского района.Юридические адреса обслуживаются в налоговой 10.Звоните или пишите в чат - организуем просмотр в день обращения и направим презентацию по объекту.Бесплатно разработаем планировку под вашу команду, рассчитаем оптимальную рассадку и зонирование.*Количество рабочих мест рассчитано автоматически: от 4,5 до 12 м² на человека.ID объекта: 104059
          10000 м2
          • Показать контакты
          • Добавить в избранное
          10000 м2
          70 833 333 /мес.
          7 083 /м2
            1/6
            Универсальное помещение
            Тверская, 20/1 ст2
             Показать на карте
            Пушкинская, 5 мин
            Москва
            ОТ СОБСТВЕННИКА.Без комиссии.Адрес: ул Тверская 20Этаж ПервыйПлощадь: от 9м до 20мСтавка аренды: от 36000р до 66000р в месКоммунальные платежи: включеныИФНС: 10, обсуждаетсяПарковка: гостевая, регулярнаяИнфраструктура: самая полная, кухня для сотрудников, переговорнаяУдаленность от метро: 3 минуты пешком от ст.м. ТверскаяДоступ: 24/7 возможенОтдельно оплачивается: интернет , связь, клинингОбеспечение: 1 месяц арендыЛокация: 2 минуты Тверская, Пушкинская, ЧеховскаяВ выходные пожалуйста пишите.
            14 м2
            • Показать контакты
            • Добавить в избранное
            14 м2
            60 000 /мес.
            4 285 /м2
              1/38
              Универсальное помещение
              Тверская, 24
               Показать на карте
              Пушкинская, 5 мин
              Москва
              Сдается 7-этажный бизнес-центр А класса, который находится по адресу: ул. Тверская, д. 24.Шаговая доступность от станций метро Маяковская, Тверская, Пушкинская. Удобный выезд на Садовое и Бульварное кольцо.Помещения под чистовую отделку, смешанная планировка. Центральная система кондиционирования и приточно-вытяжная система вентиляции. В наличии наземная парковка.Арендные каникулы и ставка подлежат обсуждению.
              7500 м2
              • Показать контакты
              • Добавить в избранное
              7500 м2
              53 125 000 /мес.
              7 083 /м2
                1/9
                Универсальное помещение
                Тверская, 12 ст7
                 Показать на карте
                Москва
                Арт. 128105292 Помещение свободного назначения с ремонтом под офис 16,7 кв.м на 1 высоком этаже ул Тверская, 12стр7. Это здание с богатой историей, расположенное в самом центре Москвы. Строение создавалось не по стандартной серии, а как авторский жилой дом с коммерческой функцией — с самого начала первые этажи были предназначены для магазинов и офисов. Дом входит в единый архитектурный ансамбль с другими зданиями по Тверской улице, 12 — так называемый доходный дом братьев Бахрушиных, построенный по проекту архитектора Карла Гиппиуса. Это редкий пример дореволюционной комплексной застройки, который уцелел в центре Москвы. Сам район Тверской улицы — историческое сердце столицы. Сегодня Тверская, 12, стр. 7 — это не только памятник московской архитектуры начала XX века, но и живой городской организм. В доме и по соседству работают рестораны, творческие пространства, аптеки и книжные магазины. В помещении сделан новый ремонт, заменены инженерные коммуникации, установлены кондиционеры, помещение кабинетного типа, высота потолков 3,1 м, 5 кВт, общий вход с улицы и возможность разместить вывеску.Стоимость аренды 97.600 руб/мес УСН 7%. В арендную ставку все включено, арендатор больше ни за что не платит!Прямой договор. Оперативный показ.
                16 м2
                • Показать контакты
                • Добавить в избранное
                16 м2
                97 600 /мес.
                5 844 /м2
                  1/5
                  Универсальное помещение
                  Тверская, 19
                   Показать на карте
                  Москва
                  Предложение от собственника. С агентами не работаем Лот: 38754. Торговые помещения формата street retail в историческом центре, на главной улице города. Тверская - одна из самых желаемых локаций для брендов среднего ценового сегмента благодаря сверхинтенсивному пешеходному и автомобильному потоку. Предлагаемые помещения расположены в нескольких шагах от выхода из метро ''Пушкинская'', рядом с самым посещаемым рестораном Мcdonalds в мире.
                  58 м2
                  • Показать контакты
                  • Добавить в избранное
                  58 м2
                  899 998 /мес.
                  15 411 /м2
                    1/5
                    Универсальное помещение
                    Тверская, 4
                     Показать на карте
                    Москва
                    Предложение от собственника. С агентами не работаем Лот: 39160. Помещение свободного назначения формата Street Retail в ЦАО Москвы. Расположено на первой линии Тверской улицы. В шаговой доступности от Кремля и станции метро Охотный ряд. Активный пешеходный трафик вдоль помещения.
                    410 м2
                    • Показать контакты
                    • Добавить в избранное
                    410 м2
                    3 499 998 /мес.
                    8 537 /м2
                      1/7
                      Универсальное помещение
                      Тверская, 14
                       Показать на карте
                      Москва
                      Предложение от собственника. С агентами не работаем Лот: 39144. Тверская — это главная улица Москвы. Именно она является магнитом притяжения каждодневного, делового и туристического трафика столицы, а на участке от Пушкинской до Охотного ряда его концентрация достигает максимальных величин.Историческое здание легендарного гастронома ''Елисеевский'' на углу Тверской улицы и Козицкого переулка. Открыт купцом Григорием Елисеевым в 1901 году, сразу же стал центром общественного внимания за роскошные интерьеры, экзотические продовольственные товары и редкие вина.
                      460 м2
                      • Показать контакты
                      • Добавить в избранное
                      460 м2
                      6 499 980 /мес.
                      14 109 /м2
                        1/5
                        Универсальное помещение
                        Тверская, 14
                         Показать на карте
                        Москва
                        Лот 160404.Пpедлагaeтся в apенду тоpговоe пoмещение нa пeрвой линии улицы Tвеpская. Тверская — это главная улица Москвы. Именно она является магнитом притяжения каждодневного, делового и туристического трафика столицы, а на участке от Пушкинской до Охотного ряда его концентрация достигает максимальных величин. Историческое здание легендарного гастронома ''Елисеевский'' на углу Тверской улицы и Козицкого переулка. Помещение оборудовано витринными окнами в пол, что позволяет создать открытое пространство и привлечь внимание прохожих.Идеально подойдет, салон, общепит, флагманский магазин, бутик, ювелирный магазин, клинику, развлечение.Технические характеристики:Общая площадь: 460,7 м2, состоящее из двух блоков:1 этаж - 330, 8 кв.м. антресоль - 129,9 кв.м. Эл. мощность - 130 кВт, 2 входа - со стороны Тверской, и один со двора, что удобно для загрузки товара. Высота потолков - 6 м. Большие витрины. Вывеска на фасаде. Допустим круглосуточный режим работы (24/7). Центральные коммуникации. Возможно увеличение площади за счёт подвала.Коммерческие условия:Стоимость аренды - 6 500 000 рублей / месяц
                        460 м2
                        • Показать контакты
                        • Добавить в избранное
                        460 м2
                        6 500 000 /мес.
                        14 130 /м2
                          1/8
                          Универсальное помещение
                          Тверская, 5/6
                           Показать на карте
                          Москва
                          Лот 9729.Предлагается аренду помещение свободного назначения на первом этаже административного здания первой линии домов Тверской улицы в шаговой доступности от метро Охотный ряд. Исторический центр Москвы. Сверх интенсивный пешеходный и автомобильный трафики. Помещение отлично просматривается с дороги. Не забываемые рекламные возможности.Общая площадь помещения - 320 кв.м. Витринные окна. Вытяжка. Отдельная входная группа. Планировка открытая. Высота потолков - 4,5 м. Эл. мощность 100 кВт. Распределение площадей - 1 этаж - 210 кв.м., 2 этаж - 110 кв.м. Алкогольная лицензия. Ремонт за выездом арендатора. Панорамное остекление второго этажа.Коммерческие условия:Ставка аренды - 2 000 000 рублей в месяц,Ставка за 1 кв.м. в месяц - 6 250 рублей,Ставка за 1 кв.м. в год - 75 000 рублей,Коммунальные платежи по факту потребления,Арендные каникулы - 1 месяц,УСН
                          320 м2
                          • Показать контакты
                          • Добавить в избранное
                          320 м2
                          2 000 000 /мес.
                          6 250 /м2
                            1/7
                            Универсальное помещение
                            Тверская, 14
                             Показать на карте
                            Москва
                            Арт. 124649650 Сдается помещение свободного назначения 460,7 кв.м. на первой линии ул Тверская. Помещение с хорошим ремонтом под ресторан 1 этаж - 330,8 м2 Антресоль - 129,9 м2, витринное остекление, вывеска на фасаде, отдельный вход с улицы и зона разгрузки со двора, 24/7, вытяжка под ресторан, высота потолков до 6м, мокрые точки, 130 кВт, современная инженерия, вентиляция и кондиционирование, пожаро-охранная сигнализация, огромный пешеходный трафик.Преимущества расположения:Дом 14 находится в самом сердце Москвы в одном доме с легендарным Елисеевским гастрономом, неподалеку от основных достопримечательностей города: Пушкинской площади, Тверской улицы, Петровского бульвара и Большого театра. Это привлекает большое количество туристов и местных жителей.Транспортная доступностьОтличная транспортная инфраструктура: близость станций метро (''Тверская'', ''Пушкинская''), автобусных остановок и маршрутов такси обеспечивают легкость посещения заведения.Туристический потокРегулярное посещение туристами центральных улиц Москвы гарантирует высокий уровень спроса на рестораны и кафе поблизости.Бизнес-контингентРядом расположены офисы крупных компаний и банков, что создает стабильный спрос среди офисных работников и деловых людей.Высокий статус районаЭлитный район Москвы, известный своей престижностью и высокими доходами населения.Историческое значениеРасположение на улице с богатой историей добавляет ресторану дополнительный шарм и привлекательность для гостей.Особенности зданияДом 14 представляет собой старинное здание начала XX века, построенное в стиле эклектики. Его фасад украшен элементами архитектуры модерн, придающими зданию особый характер и индивидуальность. Интерьер также позволяет создать уютную атмосферу, подходящую для ресторана высокого класса.Возможности развития бизнеса:Открытие ресторана на Тверской улице, 14 позволит предложить гостям уникальные гастрономические впечатления в сочетании с историческим антуражем и центральным расположением. Основные направления развития включают:Создание уникального меню с акцентом на традиционные русские блюда и современные кулинарные тенденции.Организация мероприятий и специальных предложений для привлечения постоянных клиентов.Использование наружной рекламы и цифровых технологий для продвижения бренда.Таким образом, адрес ''Тверская улица, дом 14'' является отличным выбором для размещения ресторана премиум-класса, способствующего успешному развитию вашего бизнеса.Стоимость аренды 6.500.000 руб/мес УСН, коммунальные платежи дополнительноПрямой договор. Оперативный показ.
                            460 м2
                            • Показать контакты
                            • Добавить в избранное
                            460 м2
                            6 500 000 /мес.
                            14 108 /м2
                              1/18
                              Универсальное помещение
                              Тверская, 12 ст9
                               Показать на карте
                              Москва
                              Собственник предлагает в аренду помещение под офис, шоу рум, медицинский центр, лекторий, йога центр на 1 этаже офисного особняка. Отдельный вход со двора + запасной выход. Кабинетная планировка (можно демонтировать перегородки). 2 с/у. Высота потолка 3.2м. Помещение состоит из: - 1 этаж - 166 кв.м.- подвал - 34 кв.м. (можно под склад). Помещение 166 кв.м. можно разделить на 2 части: 43 и 123 кв.м. Они расположены друг напротив друга. Между ними холл. Их холла также вход в подвал. Подвал можно арендовать отдельно или совместно с другими помещениями. Цена за все 650 000 руб. мес. УСНО. Частями: - 166 кв.м. - 570 000 руб. мес.- 123 кв.м. - 400 000 руб. мес. - 43 кв.м. - 170 000 руб. мес.- подвал 34 кв.м. - 80 000 руб. мес.Прямая аренда. Отдельно электричество. Парковка платная. Есть гостевая. От м. Чеховская до помещения - 3 минуты пешком дворами.
                              200 м2
                              • Показать контакты
                              • Добавить в избранное
                              200 м2
                              650 000 /мес.
                              3 250 /м2
                                1/8
                                Универсальное помещение
                                Тверская, 15
                                 Показать на карте
                                Москва
                                Сдается в аренду помещение в центре Москвы, в шаговой доступности от станции метро Пушкинская, Тверская и Чеховская. Помещение расположено на первой фасадной линии Тверской крупнейшей торговой улицы, вход через арку. Сверхинтенсивные пешеходные и автомобильные потоки, развитая торговая и деловая инфраструктура. Высокий маркетинговый потенциал. Предусмотрены все необходимые коммуникации и мощности в соответствии с современными стандартами. -Помещение располагается в подвальном этаже 9-этажного жилого дома- Вывеска на фасаде- Центральное кондиционирование- Приточно-вытяжная вентиляция Оперативный показ!
                                40 м2
                                • Показать контакты
                                • Добавить в избранное
                                40 м2
                                200 000 /мес.
                                5 000 /м2
                                  Распечатать
                                  Аренда коммерческой недвижимости в Москве
                                  • по районам
                                  • Замоскворечье
                                  • Тверской
                                  • Хамовники
                                  • Войковский
                                  • Головинский
                                  • Молжаниновский
                                  • Алексеевский
                                  • Марфино
                                  • Свиблово
                                  • Вешняки
                                  • Измайлово
                                  • Перово
                                  • Капотня
                                  • Лефортово
                                  • Печатники
                                  • Братеево
                                  • Нагорный
                                  • Чертаново Центральное
                                  • Котловка
                                  • Ясенево
                                  • Можайский
                                  • Ново-Переделкино
                                  • Тропарёво-Никулино
                                  • Фили-Давыдково
                                  • Строгино
                                  • Старое Крюково
                                  • Красносельский
                                  • Якиманка
                                  • Дмитровский
                                  • Савёловский
                                  • Алтуфьевский
                                  • Марьина Роща
                                  • Северный
                                  • Северное Медведково
                                  • Восточный
                                  • Косино-Ухтомский
                                  • Преображенское
                                  • Северное Измайлово
                                  • Кузьминки
                                  • Люблино
                                  • Рязанский
                                  • Даниловский
                                  • Орехово-Борисово Северное
                                  • Чертаново Южное
                                  • Ломоносовский
                                  • Северное Бутово
                                  • Внуково
                                  • Очаково-Матвеевское
                                  • Куркино
                                  • Хорошёво-Мнёвники
                                  • Силино
                                  • Мещанский
                                  • Аэропорт
                                  • Западное Дегунино
                                  • Сокол
                                  • Бабушкинский
                                  • Бутырский
                                  • Останкинский
                                  • Южное Медведково
                                  • Восточное Измайлово
                                  • Метрогородок
                                  • Соколиная Гора
                                  • Марьино
                                  • Текстильщики
                                  • Донской
                                  • Орехово-Борисово Южное
                                  • Академический
                                  • Гагаринский
                                  • Обручевский
                                  • Тёплый Стан
                                  • Дорогомилово
                                  • Проспект Вернадского
                                  • Митино
                                  • Щукино
                                  • Крюково
                                  • Арбат
                                  • Пресненский
                                  • Беговой
                                  • Коптево
                                  • Тимирязевский
                                  • Ховрино
                                  • Бибирево
                                  • Лианозово
                                  • Отрадное
                                  • Ярославский
                                  • Гольяново
                                  • Новогиреево
                                  • Сокольники
                                  • Некрасовка
                                  • Южнопортовый
                                  • Зябликово
                                  • Нагатино-Садовники
                                  • Царицыно
                                  • Зюзино
                                  • Черёмушки
                                  • Крылатское
                                  • Раменки
                                  • Покровское-Стрешнево
                                  • Южное Тушино
                                  • Матушкино
                                  • Басманный
                                  • Таганский
                                  • Бескудниковский
                                  • Восточное Дегунино
                                  • Левобережный
                                  • Хорошёвский
                                  • Лосиноостровский
                                  • Ростокино
                                  • Богородское
                                  • Ивановское
                                  • Новокосино
                                  • Выхино-Жулебино
                                  • Нижегородский
                                  • Бирюлёво Восточное
                                  • Бирюлёво Западное
                                  • Москворечье-Сабурово
                                  • Нагатинский Затон
                                  • Чертаново Северное
                                  • Коньково
                                  • Южное Бутово
                                  • Кунцево
                                  • Солнцево
                                  • Филёвский Парк
                                  • Северное Тушино
                                  • Савёлки
                                  • 10-й
                                  • 11-й
                                  • 12-й
                                  • 14-й
                                  • 15-й
                                  • 16-й
                                  • 17-й
                                  • 18-й
                                  • 19-й
                                  • 2-й
                                  • 20-й
                                  • 21-й
                                  • 22-й
                                  • 23-й
                                  • 3-й
                                  • 4-й
                                  • 5-й
                                  • 6-й
                                  • 7-й
                                  • 8-й
                                  • 9-й
                                  • Внуковское
                                  • Вороновское
                                  • Воскресенское
                                  • Восточный округ
                                  • Город Зеленоград округ
                                  • Град Московский
                                  • Десёновское
                                  • Западный округ
                                  • Киевский
                                  • Клёновское
                                  • Кокошкино
                                  • Краснопахорское
                                  • Марушкинское
                                  • Михайлово-Ярцевское
                                  • Московский
                                  • Московский
                                  • Мосрентген
                                  • Новая Москва
                                  • Новомосковский округ
                                  • Новофёдоровское
                                  • Панфиловский
                                  • Первомайское
                                  • Первый Московский Город-Парк
                                  • Роговское
                                  • Рязановское
                                  • Северный округ
                                  • Северо-Восточный округ
                                  • Северо-Западный округ
                                  • Сосенское
                                  • Троицкий округ
                                  • Филимонковское
                                  • Центральный округ
                                  • Щаповское
                                  • Щербинка
                                  • Юго-Восточный округ
                                  • Юго-Западный округ
                                  • Южный округ
                                  • по метро
                                  • Авиамоторная
                                  • Автозаводская
                                  • Академическая
                                  • Александровский сад
                                  • Алексеевская
                                  • Алтуфьево
                                  • Аннино
                                  • Арбатская
                                  • Аэропорт
                                  • Бабушкинская
                                  • Багратионовская
                                  • Баррикадная
                                  • Бауманская
                                  • Беговая
                                  • Белорусская
                                  • Беляево
                                  • Бибирево
                                  • Библиотека им. Ленина
                                  • Новоясеневская
                                  • Боровицкая
                                  • Ботанический сад
                                  • Братиславская
                                  • Бульвар Адмирала Ушакова
                                  • Бульвар Дмитрия Донского
                                  • Бунинская аллея
                                  • Варшавская
                                  • ВДНХ
                                  • Владыкино
                                  • Водный стадион
                                  • Войковская
                                  • Волгоградский проспект
                                  • Волжская
                                  • Воробьевы горы
                                  • Выхино
                                  • Выставочная
                                  • Динамо
                                  • Дмитровская
                                  • Добрынинская
                                  • Домодедовская
                                  • Дубровка
                                  • Измайловская
                                  • Калужская
                                  • Кантемировская
                                  • Каховская
                                  • Каширская
                                  • Киевская
                                  • Китай-город
                                  • Кожуховская
                                  • Коломенская
                                  • Комсомольская
                                  • Коньково
                                  • Красногвардейская
                                  • Красносельская
                                  • Красные ворота
                                  • Крестьянская застава
                                  • Кропоткинская
                                  • Крылатское
                                  • Кузнецкий мост
                                  • Кузьминки
                                  • Кунцевская
                                  • Курская
                                  • Кутузовская
                                  • Ленинский проспект
                                  • Лубянка
                                  • Люблино
                                  • Марксистская
                                  • Марьино
                                  • Маяковская
                                  • Медведково
                                  • Международная
                                  • Менделеевская
                                  • Молодежная
                                  • Нагатинская
                                  • Нагорная
                                  • Нахимовский проспект
                                  • Новогиреево
                                  • Новокузнецкая
                                  • Новослободская
                                  • Новые Черемушки
                                  • Октябрьская
                                  • Октябрьское поле
                                  • Орехово
                                  • Отрадное
                                  • Охотный ряд
                                  • Павелецкая
                                  • Парк Культуры
                                  • Парк Победы
                                  • Партизанская
                                  • Первомайская
                                  • Перово
                                  • Петровско-Разумовская
                                  • Печатники
                                  • Пионерская
                                  • Планерная
                                  • Площадь Ильича
                                  • Площадь Революции
                                  • Полежаевская
                                  • Полянка
                                  • Пражская
                                  • Преображенская площадь
                                  • Пролетарская
                                  • Проспект Вернадского
                                  • Проспект Мира
                                  • Профсоюзная
                                  • Пушкинская
                                  • Речной вокзал
                                  • Рижская
                                  • Римская
                                  • Рязанский проспект
                                  • Савеловская
                                  • Свиблово
                                  • Севастопольская
                                  • Семеновская
                                  • Серпуховская
                                  • Смоленская
                                  • Сокол
                                  • Сокольники
                                  • Спортивная
                                  • Сретенский бульвар
                                  • Студенческая
                                  • Сухаревская
                                  • Сходненская
                                  • Таганская
                                  • Тверская
                                  • Театральная
                                  • Текстильщики
                                  • Теплый Стан
                                  • Тимирязевская
                                  • Третьяковская
                                  • Трубная
                                  • Тульская
                                  • Тургеневская
                                  • Тушинская
                                  • Улица 1905 года
                                  • Улица Академика Янгеля
                                  • Улица Горчакова
                                  • Бульвар Рокоссовского
                                  • Улица Скобелевская
                                  • Улица Старокачаловская
                                  • Университет
                                  • Филевский парк
                                  • Фили
                                  • Фрунзенская
                                  • Царицыно
                                  • Цветной бульвар
                                  • Черкизовская
                                  • Чертановская
                                  • Чеховская
                                  • Чистые пруды
                                  • Чкаловская
                                  • Шаболовская
                                  • Шоссе Энтузиастов
                                  • Щелковская
                                  • Щукинская
                                  • Электрозаводская
                                  • Юго-Западная
                                  • Южная
                                  • Ясенево
                                  • Краснопресненская
                                  • Строгино
                                  • Славянский бульвар
                                  • Мякинино
                                  • Волоколамская
                                  • Митино
                                  • Марьина роща
                                  • Достоевская
                                  • Шипиловская
                                  • Зябликово
                                  • Борисово
                                  • Новокосино
                                  • Пятницкое шоссе
                                  • Алма-Атинская
                                  • Жулебино
                                  • Лермонтовский проспект
                                  • Деловой центр
                                  • Лесопарковая
                                  • Битцевский парк
                                  • Спартак
                                  • Улица Сергея Эйзенштейна
                                  • Выставочный центр
                                  • Улица Академика Королева
                                  • Телецентр
                                  • Улица Милашенкова
                                  • Тропарево
                                  • Котельники
                                  • Технопарк
                                  • Румянцево
                                  • Саларьево
                                  • Фонвизинская
                                  • Бутырская
                                  • Хорошёво
                                  • Зорге
                                  • Панфиловская
                                  • Стрешнево
                                  • Балтийская
                                  • Коптево
                                  • Лихоборы
                                  • Окружная
                                  • Ростокино
                                  • Белокаменная

                                  Вместе с этим также ищут:

                                  Снять помещение в Москве Снять торговую площадь в Москве Снять офис в Москве Снять склад в Москве Снять производственное помещение в Москве Снять отдельностоящее здание в Москве

                                  🏠 Как снять коммерческую недвижимость в Москве на N1?

                                  • ✔ В поисках объявления об аренде или сдаче коммерческой недвижимости в Москве?
                                  • ✔ На N1 размещены 16 коммерческой недвижимости
                                  • ✔ Чтобы снять или сдать недвижимость, воспользуйтесь формой поиска, фильтрами или быстрыми ссылками.

                                  💸 Сколько стоит коммерческая недвижимость в Москве?

                                  • 🟢 Средняя цена аренды коммерческой недвижимости - 9,66 млн ₽
                                  • 🟢 Минимальная стоимость за 1 м2: 8,50 тыс ₽

                                  📚 Какая площадь коммерческой недвижимости?

                                  • Наибольшая площадь: 10 тыс м²
                                  • Минимальная площадь: 14 м²