Универсальное помещение
Маресьева, 6 корп. 1 Показать на карте
Маресьева, 6 корп. 1 Показать на карте
Москва
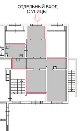
Аренда от собственника без комиссии!Предлагается в аренду нежилое помещение общей площадью 111 кв.м. Лучшее предложение в этом районе! Цена - качество соответствует.УДОБНО: помещение находится на 1 этаже с 2-мя отдельными входами/выходами разные стороны здания. С одной стороны вход с центральной дороги от метро Некрасовка, с другой стороны - находится у входа в подъезд, что УВЕЛИЧИВАЕТ проходимость людей. Такой ТРАФИК ТОЛЬКО У НАС: В помещении большие витринные окна. Ступени отсутствуют и имеется пандус для въезда инвалидных колясок.Высота потолков 4,5 метра.Электрическая мощность - 12 кВт с возможностью увеличения до 25 кВт.Приточная домовая вентиляция проведена в помещение. Удобно организовать вытяжку под общепит. Пожарная сигнализация.ВЫГОДНО: удобное расположение мокрой точки в непосредственной близости от вентиляции.Мокрые точки в кол-ве 2 штук.Помещение с качественным ремонтом.Все центральные коммуникации вода, водоотведение, канализация.Напротив помещения находятся паковочные места, что делает прибывание клиентов более удобным, а помещение более посещаемым Назначение: стоматология, торговля, магазин, кафе, пиццерия, мастерская, цветы, клиентский офис, тату салон, товары для дома, офис, фотостудия, агентство, бытовые услуги, ателье одежды, парикмахерская, массажист, компьютерный клуб, детский развивающий центр, детский магазин, зоомагазин, зоотовары, нотариальная контора, пункт выдачи, частная практика, мастерская и т.д.Возможность размещения наружной рекламы на здании с 2-х сторон. Арендные каникулы предусмотрены.Аренда от собственника без комиссии!
40 м2
- Показать контакты
- Добавить в избранное
40 м2
70 000 /мес.
1 750 /м2
