Офисное помещение
Волгоградский проспект, 43 корп. 3 Показать на карте
Волгоградский проспект, 43 корп. 3 Показать на карте
Москва
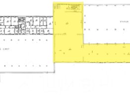
Офис в аренду площадью 201.15 м2, на 15 этаже 19-этажного бизнес-центра класса B+ ''АвилонПлаза'' в 10 мин. пешком от м.Текстильщики.Номер налоговой объекта - 22, предоставляется юридический адрес. Высота потолков: 2.8 м. Офис предоставляется в прямую аренду, минимальный срок аренды -11 месяцев, с предоплатой за 1 месяц, пропускная система. Кабинетная планировка, на полу плитка и ковролин, одна мокрая точка.Охрана, местное кондиционирование, вентиляция офиса - приточная, центральное отопление, спринклерная система пожаротушения. Отдельная многоуровневая охраняемая парковка, бесплатные гостевые парковочные (не более трёх часов на 1 а/м).Коммерческие условия:Базовая ставка аренды - 21 600 руб. м.кв./годЭксплуатационные расходы - 5136 руб. м.кв./годКоммунальные платежи - 3 531 руб. м.кв./год
201 м2
- Показать контакты
- Добавить в избранное
201 м2
507 350 /мес.
2 522 /м2
