Универсальное помещение
Бакунинская, 5 Показать на карте
Бакунинская, 5 Показать на карте
Красносельская, 13 мин
Москва
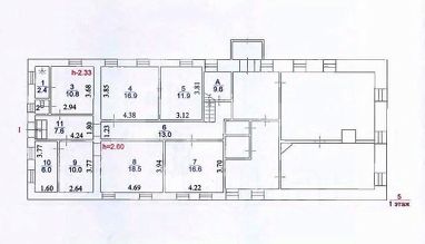
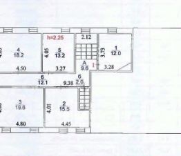
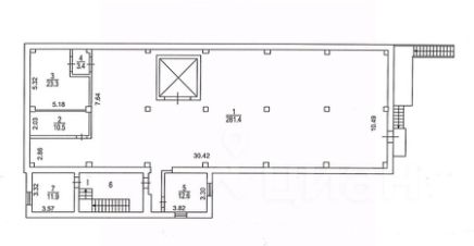
Офисное помещение в Tatlin Apartments: 156 м² с отделкой и двумя открытыми террасами (эксплуатируемая кровля) по 122 м2 каждая. Вход в здание с ул. Бакунинская, можно подняться на лифте или по лестнице. Помещение расположено на 3 этаже и включает открытое пространство, остекленную переговорную, кухню и 3 санузла (один с душевой кабиной, второй на 2 кабины), прямой выход из лифта. Помещение подойдет как под офис, так и торговую площадь.Апарт-комплекс находится в историческом локации с развитой инфраструктурой, рядом ТТК, В помещении установлены кондиционеры LG с закрытой дренажной системой, подключённые к общедомовой VRV-мультисистеме.Собственником является юридическое лицо. Арендные каникулы на время ремонта обсуждаются индивидуально.Эксплуатация и коммунальные платежи оплачиваются отдельно.
156 м2
- Показать контакты
- Добавить в избранное
156 м2
600 000 /мес.
3 846 /м2
