Офисное помещение
Михневская, 8 Показать на карте
Михневская, 8 Показать на карте
Москва
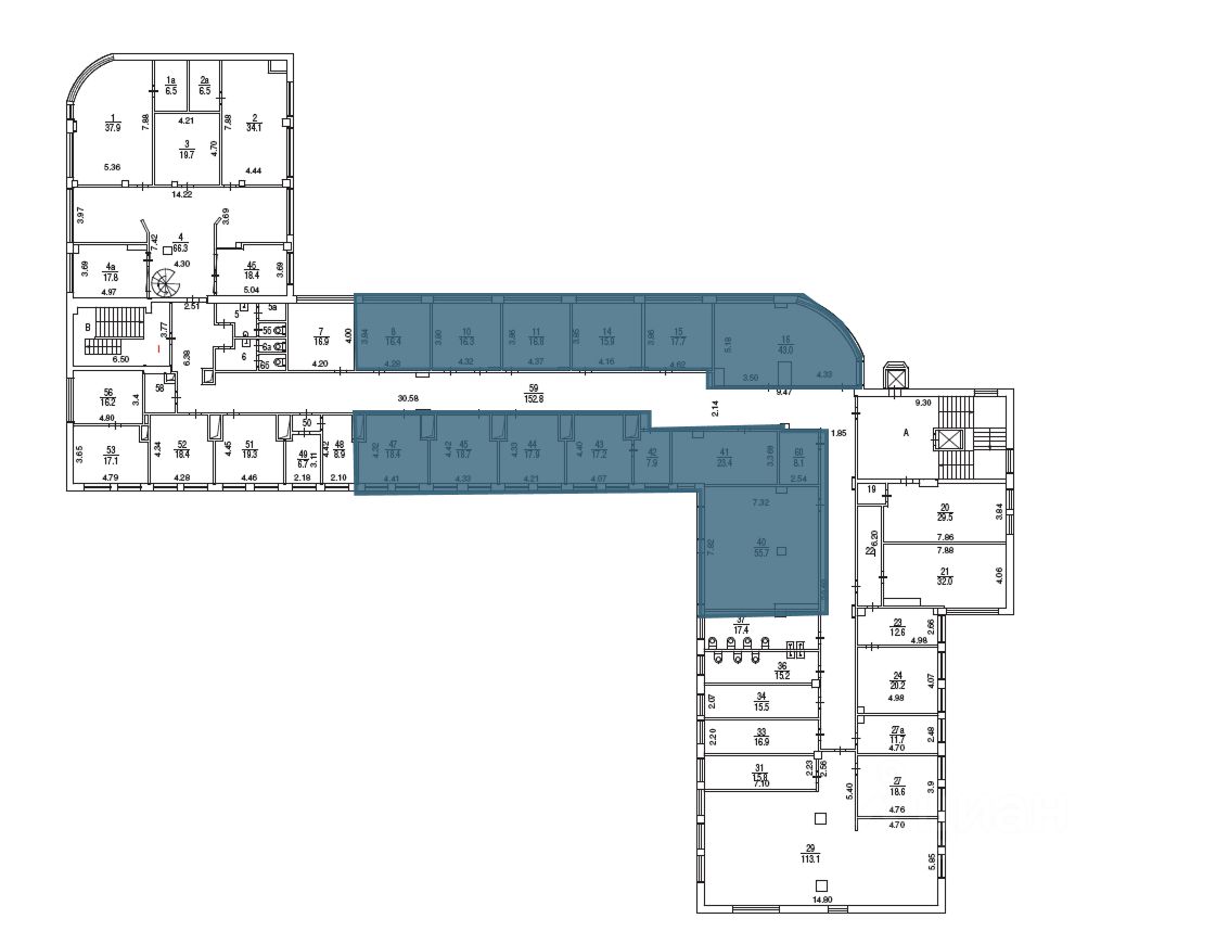
Сдается под офис блок 566.7 кв.м.В этом офисе несколько помещений на разных этажах.Договор аренды заключаете с собственником помещения. Без надбавки к итоговой стоимости аренды.В арендную ставку включено: - НДС,- охрана здания.В арендную ставку не входит: коммунальные услуги, электроэнергия, эксплуат.расходы, уборка офиса, уборка общих мест, вывоз мусора, интернет, услуга эксплуатации внутри помещения.• условия договора: 11 месяцев, обеспечительный 1 месяц, предоплата 3 месяца,• налогообложение: НДС,• вход в здание: для арендаторов свободный, для клиентов свободный,• парковка: на прилегающих улицах,• здание работает: круглосуточно,Показы с 10.00 до 18.00 по будням.Поможем провести переговоры по условиям аренды, удовлетворив все стороны.Звоните. Мы оперативно организуем просмотр помещения в удобную для вас дату и ответим на все интересующие вопросы.Для вас наши услуги абсолютно бесплатны — их оплачивают бизнес-центры.
566 м2
- Показать контакты
- Добавить в избранное
566 м2
708 375 /мес.
1 250 /м2
