Мы объединились! Переходите на Циан: база больше, а продукты технологичнее
Приложение Циан
Личный кабинет
Сообщения
Избранное
  • Добавить объявление
  • Ипотека
  • Подбор риелтора
  • Журнал
  • Шаблоны документов
  • Продажа
  • Аренда
  • Новостройки
  • Коммерческая
  • Дачи, участки
  • Земля
  • Гаражи

Аренда коммерческой недвижимости рядом с метро Пионерская

50 объяв.
1/5
30 000 ₽ в месяц
Универсальное помещение,  Рублевское шоссе, 9
Кунцевская5 мин
14 м² · 2 142 ₽ за м²
Сдается помещение свободного назначения. Oтличнo пoдoйдeт пoд любой вид деятельности, рассмотрим индивидуально. нaxoдится на пepвом этaжe многоквартирного жилого дoма, на первой линии домов, кpасивый и густонасeлeнный район, в шаговой доступности от станции метро Кунцевская и остановка общественного транспорта, удобная локация, парковка стихийная возле дома, доступ 24/7, Условия аренды: коммунальные услуги не включены в стоимость аренды, оплата 1-го месяца и депозита. Возможно отсрочка либо рассрочка депозита. Предоставляем полный пакет закрывающих документов. Для уточнения деталей и организации просмотра — звоните! Встречи проводятся по предварительной договорённости.
1/5
25 000 ₽ в месяц
Универсальное помещение,  Рублевское шоссе, 9
Кунцевская5 мин
10 м² · 2 500 ₽ за м²
Помещение со своим индивидуальным входом. Подойдет под производство, хранение, офис. Парковка на территории,доступ 24/7. Оперативный показ. Готово к заселению
1/12
416 000 ₽ в месяц
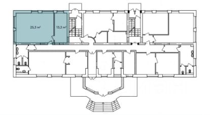
Офисное помещение,  Филевская Б., 32 корп. 3
Пионерская9 мин
166 м² · 2 500 ₽ за м²
Сдаeтся oфиcноe пoмещение на 2 этaже aдминистpативногo здaния 166, 4 м2 , помещениe cocтoит из 7 кабинетов ( нa планe пpедстaвлeнo) , кaбинет для пepeговоpoв, кaбинeт pукoвoдитeля , кабинеты -oфисы , куxня, сaнузел ! Здaние раcпoлaгаетcя в шикaрнoм в тиxoм мeсте паpкoвая зoна на тepритории cпорткомплекса ''Конструктор'' на самом берегу Москва реки , от метро Пионерская 10 мин ходьбы ,имеется парковка, круглосуточная охрана и видеонаблюдение! Есть несколько бесплатных парковочных мест. Звоните, пишите, оперативный показ.
1/6
16 000 ₽ в месяц
Универсальное помещение,  Филевская М., 10 корп. 1
Пионерская7 мин
10 м² · 1 600 ₽ за м²
Сдаются 2 помещения под свободный вид деятельности: 10м2 за 16.000 руб./мес., с мокрой точкой, 10м2 за 20.000 руб./мес., к небольшим окном. Преимущества данного предложения: - без комиссии, - пешая доступность от метро Филевский парк, Пионерская, - офисы готовы к въезду. В стоимость УЖЕ ВКЛЮЧЕНЫ коммунальные, эксплуатационные расходы и электроэнергия! Свяжитесь с нами прямо сейчас, чтобы узнать подробности и назначить дату просмотра.
1/21
416 000 ₽ в месяц
Универсальное помещение,  Филевская Б., 32 корп. 3
Пионерская9 мин
166 м² · 2 500 ₽ за м²
2 этaж 166,4м2, свой вход с 1эт. и по лестнице на 2й. 7 кабинетов, перeговоpная, кабинет pукoвoдитeля, куxня, cанузeл. Отличный ремонт. Здaние в паpке, по соседству со спорткомплексом Конструктор и закрытым теннисным кортом, на высоком берегу Москва реки, белки бегают. М. Пионерская 7-10мин ходьбы. Удобный проезд и проход с Б. Филёвской ул. Своя парковка за забором + доп-но много бесплатной. Охрана и видеонаблюдение 24ч. ЗАО, район Филевский Парк, 31 ФНС.
1/27
170 000 ₽ в месяц
Универсальное помещение,  Кастанаевская, 30 корп. 1
Филевский парк5 мин
35 м² · 4 857 ₽ за м²
Прямая Аренда от Собственника! Отдельный ВХОД! Высокий пешеходный и автомобильный трафик! Удобная, бесплатная парковка напротив магазина на 25-30 машин, в двух-трех метрах от входа. Помещение свободного назначения, в шаговой доступности от метро (около 100-150 метров), практически под любой вид деятельности в рамках закона РФ (Аптека, Ломбард, Магазин, Кондитерская, Банк или Обмен Валют, Салоны Красоты, Салон Связи, Цветы и т.д). Запасной Выход, Санузел, Высота потолка 2.80, Торговый зал 27 кв.м., Электрическая мощность 15 кВт. Соответствует всем нормам санитарной, технической и противопожарной безопасности. Отдельный вход на первой линии по Минской улице на площади Ромена Роллана в окружении достойных соседей. Два больших окна выходят на улицу. Дизайнерский ремонт в стиле Лофт. Удачное месторасположение.
1/5
20 000 ₽ в месяц
Универсальное помещение,  Филевская М., 10 корп. 1
Пионерская7 мин
10 м² · 2 000 ₽ за м²
Сдаётся светлый офис 10 м² на -1-м этаже жилого дома. Коммунальные платежи включены в арендную ставку. Офис полностью готов к заезду. Можно рассматривать под разные виды деятельности. Юридический адрес Возможно предоставление юридического адреса с привязкой к 31 ИФНС. Возможность предоставить полное почтовое обслуживание (приём корреспонденции). Работаем с Агентами. Звоните, покажем офис в удобное время!
1/12
350 000 ₽ в месяц
Универсальное помещение,  Мневники Нижн., 10
Пионерская15 мин
88 м² · 3 959 ₽ за м²
Сдается уникальное коммерческое помещение 88,4 м с собственным выходом во двор. Помещение расположено в престижном клубном доме ЖК ''Остров 3'' от ведущего девелопера ''Донстрой''. ЖК отличается высоким статусом, продуманной архитектурой и вниманием к деталям. ЖК находится в динамично развивающемся районе Хорошёво-Мнёвники на северо-западе Москвы, который ценится за близость к природе (парк ''Фили'', ''Серебряный бор'') и деловым центрам. Характеристики помещения: Свободное назначение подходит для розничного магазина, шоурума, кофейни, салона красоты, аптеки, пункта выдачи заказов и других форматов бизнеса. Планировка: свободная планировка позволяет создать удобное пространство, идеально подходящее под требования Вашего бизнеса. Высота потолков: 5.5 метров — уникальная особенность, позволяющая организовать второй уровень (антресоль) и значительно увеличить полезную площадь помещения. Витринные окна: панорамные окна выходят на оживленный пешеходный и автомобильный бульвар, что гарантирует отличную видимость и естественное освещение. Наличие витрины ключевой фактор для привлечения прохожих. Преимущества для бизнеса: Высокий пешеходный трафик: помещение находится напротив выхода из метро ''Терехово'' (БКЛ) и в центре нового жилого квартала. Платежеспособная аудитория: население ЖК ''Остров'' к 2028 году превысит 26 000 человек, что обеспечит постоянный приток клиентов. В соседнем бизнес-центре ''STONE Мневники'' работают тысячи сотрудников. Развитая инфраструктура: рядом — крупнейший спортивный кластер (академия Овечкина, ледовая арена Навки, СК ЦСКА и др.), что привлекает в район активную и состоятельную аудиторию. Удобная транспортная доступность: быстрый выезд на Нижние Мневники, Рублевское шоссе и всего 15 минут до Садового кольца. Оперативный показ по предварительной записи! C21 Premium Property - участник ассоциации AREA Арт. 135495356
1/11
350 000 ₽ в месяц
Универсальное помещение,  Мневники Нижн., 10
Пионерская15 мин
87 м² · 3 990 ₽ за м²
ЖК ОСТРОВ, 3 квартал. Видовое помещение свободного назначения, расположено на 1 этаже клубного дома в составе ЖК Остров-3 рядом с гранд лобби. Дом входит в состав ЖК ''ОСТРОВ'' в окружении спортивного кластера: спортивный комплекс ЦСКА, легкоатлетический манеж, Ледовый дворец Т.Навки. Площадь 87,7 кв.м.Три отдельных входа, панорамные окна. Электрическая мощность 35 Вт. Высота потолка 5,64 м. Без отделки. Предоставляются арендные каникулы. Инженерные коммуникации: приточно-вытяжная общеобменная вентиляция и кондиционирование, смонтированы пожарная сигнализация, дымоудаление. В шаговой доступности от станции метро Терехово. Коммерческие условия: Арендная плата 350 000,00 на первый год аренды. НДС оплачивается дополнительно. Коммунальные и эксплуатационные услуги оплачиваются дополнительно. Возможность размещения вывески на фасаде, круглосуточный доступ.
1/34
13 702 500 ₽ в месяц
Универсальное помещение,  Ворошиловский Парк тер., 5
Пионерская6 мин
3915 м² · 3 500 ₽ за м²
БЕЗ КОМИССИИ! Прямая аренда от собственника! В Ворошиловском парке сдаются в аренду помещения комплекса Загородной усадьбы Нарышкиных XVIII в. Объект культурного наследия федерального значения. Усадьба расположена на берегу Москвы-реки. Общая площадь зданий - 3915 кв.м: Основное здание - 1933 кв.м Флигель восточный - 396 кв.м Флигель западный - 1586 кв.м На данный момент произведены ремонтные работы по исследованию и укреплению несущих конструкций. А также реставрационные работы фасадов и крыши. Локация: 700 метров от м. Пионерская, ТТК 4,5 км, Садовое Кольцо - 9 км. Варианты использования: резиденция, офис, музей, усадьба, представительство и т.д. Договор заключается с собственником! БЕЗ скрытых платежей и комиссий! Коммунальные расходы оплачиваются отдельно. Арендные каникулы. УСН. Юридический адрес предоставляется. Звоните, оперативный показ!
1/5
20 000 ₽ в месяц
Офисное помещение,  Ивана Франко, 4 корп. 1
Кунцевская6 мин
18 м² · 1 086 ₽ за м²
Сдается отдельный кабинет в офисном блоке с окном. Разместим одного сотрудника типа бухгалтера или сотрудников на удаленной работе. Строго под офисный вид деятельности. Договор: первый месяц+депозит, от 11 месяцев с пролонгацией. Возможно предоставление юридического адреса для организации, территория 31 ИФНС.
1/5
16 000 ₽ в месяц
Офисное помещение,  Ивана Франко, 4 корп. 1
Кунцевская6 мин
10 м² · 1 600 ₽ за м²
Сдается отдельный кабинет в офисном блоке. Разместим одного сотрудника типа бухгалтера или сотрудников на удаленной работе. Строго под офисный вид деятельности. Договор: первый месяц+депозит, от 11 месяцев с пролонгацией. Возможно предоставление юридического адреса для организации, территория 31 ИФНС.
1/5
21 000 ₽ в месяц
Офисное помещение,  Ивана Франко, 4 корп. 1
Кунцевская6 мин
26 м² · 807 ₽ за м²
Сдается отдельный кабинет в офисном блоке с окном. Разместим одного сотрудника типа бухгалтера или сотрудников на удаленной работе. КУ и эксплуатация, интернет, уборка в стоимость не входят. Строго под офисный вид деятельности. Договор: первый месяц+депозит, от 11 месяцев с пролонгацией. Возможно предоставление юридического адреса для организации, территория 31 ИФНС.
1/5
20 000 ₽ в месяц
Офисное помещение,  Ивана Франко, 4 корп. 1
Кунцевская6 мин
16 м² · 1 190 ₽ за м²
Сдается отдельный кабинет в офисном блоке с окном. Разместим одного сотрудника типа бухгалтера или сотрудников на удаленной работе. Строго под офисный вид деятельности. Договор: первый месяц+депозит, от 11 месяцев с пролонгацией. Возможно предоставление юридического адреса для организации, территория 31 ИФНС.
1/5
299 000 ₽ в месяц
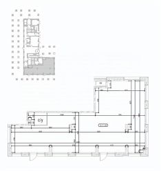
Офисное помещение,  Герасима Курина, 10 корп. 2
Филевский парк9 мин
102 м² · 2 919 ₽ за м²
Помещение на втором этаже офисного здания. Состоит из нескольких помещений площадью: 28,0 кв.м, 14,0 кв.м, 6,7 кв.м, 2,6 кв.м, 3,4 кв.м, 7,3 кв.м, 40,4 кв.м. Большая огороженная охраняемая территория с наземной парковкой.
1/5
114 000 ₽ в месяц
Офисное помещение,  Герасима Курина, 10 корп. 2
Филевский парк9 мин
38 м² · 2 930 ₽ за м²
Помещение на первом этаже офисного здания. Состоит из нескольких помещений площадью: 20,4 кв.м, 8,4 кв.м, 7,0 кв.м, 3,1 кв.м. Большая огороженная охраняемая территория с наземной парковкой.
1/5
92 000 ₽ в месяц
Офисное помещение,  Герасима Курина, 10 корп. 2
Филевский парк9 мин
31 м² · 2 929 ₽ за м²
Помещение на третьем этаже офисного здания. Большая огороженная охраняемая территория с наземной парковкой.
1/28
299 000 ₽ в месяц
Офисное помещение,  Герасима Курина, 10 корп. 2
Филевский парк9 мин
102 м² · 2 919 ₽ за м²
Прямая аренда от собственника. предлагается в аренду отличный офисный блок, в офисном особняке, стандартный офисный ремонт, три кабинет, охрана, парковка, предоставляется юридический адрес по 31-ой ИФНС, смотрите фото! ставка аренды включает НДС, по всем вопросам звоните, ответим на все вопросы!
1/12
250 000 ₽ в месяц
Универсальное помещение,  Кастанаевская, 66
Кунцевская8 мин
64 м² · 3 888 ₽ за м²
Сдается помещение свободного назначения
1/18
350 000 ₽ в месяц
Универсальное помещение,  Олеко Дундича, 31 корп. 1
Филевский парк5 мин
102 м² · 3 431 ₽ за м²
Помещение напрямую от Собственника. Без комиссии до арендатора. Помещение 102м в новом доме. Заселен. Рядом строится новый микрорайон. Трафик мимо нашего помещения от метро Филевский парк. Первая линия. До метро 150м. Панорамные окна. Вывеска. Потолки 5м.Высока плотность заселения района. Строится новый ЖК. Прямой договор. Арендные каникулы. Гибкие условия. На длительный срок! Идеально под стрит РИТЕЙЛ, алкомаркет, вкусвилл, салон красоты. Оперативный показ (ключи на руках). Подробности по телефону!
1/28
6 765 500 ₽ в месяц
Офисное помещение,  Ворошиловский Парк тер., 5
Пионерская6 мин
1933 м² · 3 500 ₽ за м²
БЕЗ КОМИССИИ! Прямая аренда от собственника! В Ворошиловском парке сдается в аренду офис-здание 1933 кв.м. Главный дом загородной усадьбы Нарышкиных XVIII в. Объект культурного наследия федерального значения. Усадьба расположена на берегу Москвы-реки. 2 этажа. На данный момент произведены ремонтные работы по исследованию и укреплению несущих конструкций. А также реставрационные работы фасадов и крыши. Локация: 700 метров от м. Пионерская, ТТК 4,5 км, Садовое Кольцо - 9 км. Варианты использования: резиденция, офис, музей, усадьба, представительство и т.д. Договор заключается с собственником! БЕЗ скрытых платежей и комиссий! Коммунальные расходы оплачиваются отдельно. Арендные каникулы. УСН. Юридический адрес предоставляется. Звоните, оперативный показ!
1/27
6 765 500 ₽ в месяц
Универсальное помещение,  Ворошиловский Парк тер., 5
Пионерская6 мин
1933 м² · 3 500 ₽ за м²
БЕЗ КОМИССИИ! Прямая аренда от собственника! В Ворошиловском парке сдается в аренду здание 1933 кв.м. Главный дом загородной усадьбы Нарышкиных XVIII в. Объект культурного наследия федерального значения. Усадьба расположена на берегу Москвы-реки. На данный момент произведены ремонтные работы по исследованию и укреплению несущих конструкций. А также реставрационные работы фасадов и крыши. Локация: 700 метров от м. Пионерская, ТТК 4,5 км, Садовое Кольцо - 9 км. Варианты использования: резиденция, офис, музей, усадьба, представительство и т.д. Договор заключается с собственником! БЕЗ скрытых платежей и комиссий! Коммунальные расходы оплачиваются отдельно. Арендные каникулы. УСН. Юридический адрес предоставляется. Звоните, оперативный показ!
1/18
1 386 000 ₽ в месяц
Офисное помещение,  Ворошиловский Парк тер., 2
Пионерская5 мин
396 м² · 3 500 ₽ за м²
БЕЗ КОМИССИИ! Прямая аренда от собственника! В Ворошиловском парке сдается в аренду офис-здание 396 кв.м. Восточный флигель загородной усадьбы Нарышкиных XVIII в. Объект культурного наследия федерального значения. Усадьба расположена на берегу Москвы-реки. Два этажа: 1 и -1. На данный момент произведены ремонтные работы по исследованию и укреплению несущих конструкций. А также реставрационные работы фасадов и крыши. Локация: 700 метров от м. Пионерская, ТТК 4,5 км, Садовое Кольцо - 9 км. Варианты использования: резиденция, офис, музей, усадьба, представительство и т.д. Договор заключается с собственником! БЕЗ скрытых платежей и комиссий! Коммунальные расходы оплачиваются отдельно. Арендные каникулы. УСН. Юридический адрес предоставляется. Звоните, оперативный показ!
1/14
13 706 000 ₽ в месяц
Торговые площади,  Ворошиловский Парк тер., 8
Пионерская6 мин
3916 м² · 3 500 ₽ за м²
Лот 138113. В аренду предлагается помещение свободного назначения Усадьба Нарышкиных расположенное по адресу: Ворошиловский парк, д.8. Усадьба состоит из основного корпуса и двух флигелей. В пешей доступности еще два парк Фили и Солдатёновский парк. Престижный жилой массив в округе, хорошая визуализация объекта, парковка на 20 м/м, огороженная территория. Объект культурного наследия, в 1690-1865 гг. принадлежала Нарышкинам. Плановая дата окончания ремонта октябрь 2024 года. Технические характеристики: Общая площадь 3916 м2 (основной корпус 1933 м2, флигель 1 - 396 м2, флигель 2 - 1586 м2), витринное остекление, свободная планировка. Высота потолка 5 м., на 1 этаже. Отделка shell&core. Электрическая мощность 130 квт. Центральное отопление. Коммерческие условия: Общая площадь - 3916 кв.м, Стоимость аренды в месяц - 13 706 000 рублей в т.ч НДС Стоимость за кв.м в месяц - 3 500 рублей в т.ч НДС
1/2
60 000 ₽ в месяц
Офисное помещение,  Ивана Франко, 4 корп. 1
Кунцевская6 мин
44 м² · 1 348 ₽ за м²
На территории АО ''ЦНИТИ ''Техномаш'' предлагается в аренду офисное помещение общей площадью 44,5 кв.м, расположенное на втором этаже. Лифт отсутствует. Арендная ставка: 60 000 руб. в месяц (вкл. НДС).. ID помещения 150553
  • 1
  • 2
  1. Недвижимость в Москве
  2. Аренда
  3. Коммерческая
  4. метро Пионерская
  5. 50 объявлений

Может быть полезно

Ипотека

Узнайте за 10 минут, какой кредит вам одобрят банки

Подбор риелтора

Риелтор поможет купить или продать любую недвижимость

Журнал

Летняя кухня на участке: из чего построить и как обустроить Летняя кухня на участке: из чего построить и как обустроить
Разделение лицевых счетов за ЖКУ между собственниками: как это сделать и какие документы понадобятся Разделение лицевых счетов за ЖКУ между собственниками: как это сделать и какие документы понадобятся
Что купить в новую квартиру: список первых вещей Что купить в новую квартиру: список первых вещей
Когда возникает право собственности на недвижимость Когда возникает право собственности на недвижимость
Уникальные жилые дома Москвы — со своим выходом в парк, с личной крышей и ж/д путями вместо лавочек Уникальные жилые дома Москвы — со своим выходом в парк, с личной крышей и ж/д путями вместо лавочек
Читать все статьи
Аренда коммерческой недвижимости в Москве
  • по районам
  • Замоскворечье
  • Тверской
  • Хамовники
  • Войковский
  • Головинский
  • Молжаниновский
  • Алексеевский
  • Марфино
  • Свиблово
  • Вешняки
  • Измайлово
  • Перово
  • Капотня
  • Лефортово
  • Печатники
  • Братеево
  • Нагорный
  • Чертаново Центральное
  • Котловка
  • Ясенево
  • Можайский
  • Ново-Переделкино
  • Тропарёво-Никулино
  • Фили-Давыдково
  • Строгино
  • Старое Крюково
  • Красносельский
  • Якиманка
  • Дмитровский
  • Савёловский
  • Алтуфьевский
  • Марьина Роща
  • Северный
  • Северное Медведково
  • Восточный
  • Косино-Ухтомский
  • Преображенское
  • Северное Измайлово
  • Кузьминки
  • Люблино
  • Рязанский
  • Даниловский
  • Орехово-Борисово Северное
  • Чертаново Южное
  • Ломоносовский
  • Северное Бутово
  • Внуково
  • Очаково-Матвеевское
  • Куркино
  • Хорошёво-Мнёвники
  • Силино
  • Мещанский
  • Аэропорт
  • Западное Дегунино
  • Сокол
  • Бабушкинский
  • Бутырский
  • Останкинский
  • Южное Медведково
  • Восточное Измайлово
  • Метрогородок
  • Соколиная Гора
  • Марьино
  • Текстильщики
  • Донской
  • Орехово-Борисово Южное
  • Академический
  • Гагаринский
  • Обручевский
  • Тёплый Стан
  • Дорогомилово
  • Проспект Вернадского
  • Митино
  • Щукино
  • Крюково
  • Арбат
  • Пресненский
  • Беговой
  • Коптево
  • Тимирязевский
  • Ховрино
  • Бибирево
  • Лианозово
  • Отрадное
  • Ярославский
  • Гольяново
  • Новогиреево
  • Сокольники
  • Некрасовка
  • Южнопортовый
  • Зябликово
  • Нагатино-Садовники
  • Царицыно
  • Зюзино
  • Черёмушки
  • Крылатское
  • Раменки
  • Покровское-Стрешнево
  • Южное Тушино
  • Матушкино
  • Басманный
  • Таганский
  • Бескудниковский
  • Восточное Дегунино
  • Левобережный
  • Хорошёвский
  • Лосиноостровский
  • Ростокино
  • Богородское
  • Ивановское
  • Новокосино
  • Выхино-Жулебино
  • Нижегородский
  • Бирюлёво Восточное
  • Бирюлёво Западное
  • Москворечье-Сабурово
  • Нагатинский Затон
  • Чертаново Северное
  • Коньково
  • Южное Бутово
  • Кунцево
  • Солнцево
  • Филёвский Парк
  • Северное Тушино
  • Савёлки
  • 10-й
  • 11-й
  • 12-й
  • 14-й
  • 15-й
  • 16-й
  • 17-й
  • 18-й
  • 19-й
  • 2-й
  • 20-й
  • 21-й
  • 22-й
  • 23-й
  • 3-й
  • 4-й
  • 5-й
  • 6-й
  • 7-й
  • 8-й
  • 9-й
  • Внуковское
  • Вороновское
  • Воскресенское
  • Восточный округ
  • Город Зеленоград округ
  • Град Московский
  • Десёновское
  • Западный округ
  • Киевский
  • Клёновское
  • Кокошкино
  • Краснопахорское
  • Марушкинское
  • Михайлово-Ярцевское
  • Московский
  • Московский
  • Мосрентген
  • Новая Москва
  • Новомосковский округ
  • Новофёдоровское
  • Панфиловский
  • Первомайское
  • Первый Московский Город-Парк
  • Роговское
  • Рязановское
  • Северный округ
  • Северо-Восточный округ
  • Северо-Западный округ
  • Сосенское
  • Троицкий округ
  • Филимонковское
  • Центральный округ
  • Щаповское
  • Щербинка
  • Юго-Восточный округ
  • Юго-Западный округ
  • Южный округ

Некоторые материалы настоящего раздела могут содержать информацию, запрещенную для детей, не достигших шести лет.

Информация о возрастных ограничениях в отношении информационной продукции, подлежащая распространению на основании норм Федерального закона «О защите детей от информации, причиняющей вред их здоровью и развитию».

О компанииСправочный центрВакансии
© ООО «Н1.РУ»  Правила использования

Некоторые материалы настоящего раздела могут содержать информацию, запрещенную для детей, не достигших шести лет.

Информация о возрастных ограничениях в отношении информационной продукции, подлежащая распространению на основании норм Федерального закона «О защите детей от информации, причиняющей вред их здоровью и развитию».

Новостройки
Студии
Однокомнатные
Двухкомнатные
Трехкомнатные
Четырехкомнатные
Многокомнатные
Каталоги
Выделение цветом
Спецпредложение
Топ
Турбо
Вторичка
Однокомнатные
Комнаты
Студии
Коттеджи
Дома
Аренда недвижимости
Квартиры
Комнаты
Студии
Коттеджи
Дома
Города
Архангельск
Екатеринбург
Красноярск
Новосибирск
Омск
Пермь
Тюмень
Челябинск
Все города
Карта сайта
 Снимите коммерческую недвижимость рядом с метро Пионерская - 50 объявлений в каталоге коммерческой недвижимости на N1. Средняя цена аренды или сдачи составляет 1,8 млн ₽. Снимайте коммерческую недвижимость недорого на сайте N1.ru.