Офисное помещение
Можайский Вал, 8 Показать на карте
Можайский Вал, 8 Показать на карте
Москва
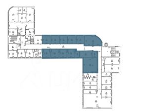
Экономьте время и деньги: отрисуем планировку под вас бесплатно, с любым количеством правок. Предлагаем в аренду Офис в бизнес-центре ''Атлантик'' по адресу: Москва, улица Можайский Вал, 8.Рабочих мест: от 98 до 174*.Площадь: 784 м2.Планировка: смешанная.Состояние: готовность к въезду с.Ставка (включая эксплуатацию): 67 100 руб. за м2/год.Арендная плата: 4 383 867 руб./мес.Налог: включая НДС.Коммунальные расходы: оплачиваются по факту.Этаж: 4 из 14.Тип аренды: прямая аренда.Охрана: круглосуточная охрана здания.Метро рядом: м. Киевская в 7 минутах пешком, м. Студенческая в 8 минутах пешком. Этот адрес обслуживает налоговая 30. Парковка подземная.Системы здания:Вентиляция: приточно-вытяжная.Кондиционирование: центральное.Пожарная сигнализация: спринклерная система.>ID объекта - 18125.*Количество рабочих мест рассчитано автоматически: от 4,5 м2 на человека до 8 м2 на человека.Почему клиенты доверяют нам?1. 12000 объектов коммерческой недвижимости Москвы и Области, включая эксклюзивные и внерыночные.2. Работаем без комиссии и скрытых платежей. Вы заключаете договор напрямую с собственником.3. Профессиональное сопровождение: консультации на каждом этапе, помощь в подборе оптимального решения для вашего бизнеса.4. 17 лет опыта в коммерческой недвижимости.Не тратьте время, доверьте поиски нам! Позвоните, и мы оперативно организуем просмотр или подготовим подборку объектов.
784 м2
- Показать контакты
- Добавить в избранное
784 м2
4 383 867 /мес.
5 591 /м2
