Офисное помещение
Гринвуд тер., 19 стр. Показать на карте
Гринвуд тер., 19 стр. Показать на карте
Путилково
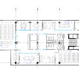
Экономьте время и деньги: отрисуем планировку под вас бесплатно, с любым количеством правок. Предлагаем в аренду Офис в бизнес-центре ''Гринвуд'' по адресу: Московская область, городской округ Красногорск, деревня Путилково, территория Гринвуд, с19.Рабочих мест: от 114 до 201*.Площадь: 908 м2.Планировка: смешанная.Состояние: готово к въезду.Ставка (включая эксплуатацию): 17 741 руб. за м2/год.Арендная плата: 1 342 387 руб./мес.Налог: включая НДС.Коммунальные расходы: оплачиваются по факту.Этаж: 3, 4 из 6.Тип аренды: Прямая аренда.Охрана: круглосуточная охрана здания.Этот адрес обслуживает налоговая 33. Парковка наземная.Системы здания:Вентиляция: приточно-вытяжная.Кондиционирование: центральное.Пожарная сигнализация: спринклерная система.Этот лот состоит из нескольких помещений: 657 кв. м. и 251 кв. м.>ID объекта - 028908.*Количество рабочих мест рассчитано автоматически: от 4,5 м2 на человека до 8 м2 на человека.Почему клиенты доверяют нам?1. 12000 объектов коммерческой недвижимости Москвы и Области, включая эксклюзивные и внерыночные.2. Работаем без комиссии и скрытых платежей. Вы заключаете договор напрямую с собственником.3. Профессиональное сопровождение: консультации на каждом этапе, помощь в подборе оптимального решения для вашего бизнеса.4. 17 лет опыта в коммерческой недвижимости.Не тратьте время, доверьте поиски нам! Позвоните, и мы оперативно организуем просмотр или подготовим подборку объектов.
908 м2
- Показать контакты
- Добавить в избранное
908 м2
1 342 387 /мес.
1 478 /м2
