Офисное помещение
Таганская, 17 Показать на карте
Таганская, 17 Показать на карте
Москва
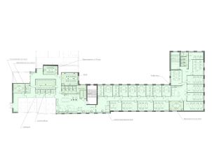
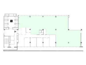
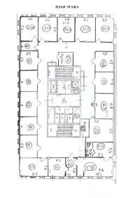
Экономьте время и деньги: отрисуем планировку под вас бесплатно, с любым количеством правок. Предлагаем в аренду Офис в бизнес-центре ''Мосэнка Парк Тауэрс 4'' по адресу: Москва, Таганская улица, 17-23.Рабочих мест: от 148 до 261*.Площадь: 1 178 м2.Планировка: смешанная.Состояние: готово к въезду.Ставка (включая эксплуатацию): 47 786 руб. за м2/год.Арендная плата: 4 691 002 руб./мес.Налог: включая НДС.Коммунальные расходы: включены, кроме электроэнергии.Этаж: 3, 5, 6 из 12.Тип аренды: Прямая аренда.Охрана: круглосуточная охрана здания.Метро рядом: м. Марксистская в 5 минутах пешком, м. Таганская в 9 минутах пешком, м. Пролетарская в 12 минутах пешком. Этот адрес обслуживает налоговая 9. Парковка подземная, наземная.Системы здания:Вентиляция: приточно-вытяжная.Кондиционирование: центральное.Пожарная сигнализация: датчики пожаротушения.Этот лот состоит из нескольких помещений: 459 кв. м., 568 кв. м. и 151 кв. м.>ID объекта - 027644.*Количество рабочих мест рассчитано автоматически: от 4,5 м2 на человека до 8 м2 на человека.Почему клиенты доверяют нам?1. 12000 объектов коммерческой недвижимости Москвы и Области, включая эксклюзивные и внерыночные.2. Работаем без комиссии и скрытых платежей. Вы заключаете договор напрямую с собственником.3. Профессиональное сопровождение: консультации на каждом этапе, помощь в подборе оптимального решения для вашего бизнеса.4. 17 лет опыта в коммерческой недвижимости.Не тратьте время, доверьте поиски нам! Позвоните, и мы оперативно организуем просмотр или подготовим подборку объектов.
1178 м2
- Показать контакты
- Добавить в избранное
1178 м2
4 691 002 /мес.
3 982 /м2
