Дубрава садовое товарищество (Химки городской округ)
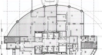
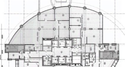
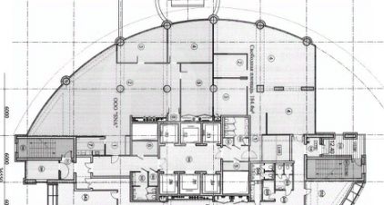
Экономьте время и деньги: отрисуем планировку под вас бесплатно, с любым количеством правок. Предлагаем в аренду Офис в бизнес-центре ''Химки Бизнес Парк'' по адресу: Московская область, Химки, Ленинградская улица, вл39с5.Рабочих мест: от 175 до 311*.Площадь: 1 400 м2.Планировка: смешанная.Состояние: готово к въезду.Ставка (включая эксплуатацию): 18 300 руб. за м2/год.Арендная плата: 2 135 000 руб./мес.Налог: включая НДС.Коммунальные расходы: оплачиваются по факту.Этаж: 14 из 15.Тип аренды: прямая аренда.Охрана: круглосуточная охрана здания.Этот адрес обслуживает налоговая 43. Парковка наземная, подземная.Системы здания:Вентиляция: приточно-вытяжная.Кондиционирование: центральное.Пожарная сигнализация: спринклерная система.>ID объекта - 21622.*Количество рабочих мест рассчитано автоматически: от 4,5 м2 на человека до 8 м2 на человека.Почему клиенты доверяют нам?1. 12000 объектов коммерческой недвижимости Москвы и Области, включая эксклюзивные и внерыночные.2. Работаем без комиссии и скрытых платежей. Вы заключаете договор напрямую с собственником.3. Профессиональное сопровождение: консультации на каждом этапе, помощь в подборе оптимального решения для вашего бизнеса.4. 17 лет опыта в коммерческой недвижимости.Не тратьте время, доверьте поиски нам! Позвоните, и мы оперативно организуем просмотр или подготовим подборку объектов.
1400 м2
- Показать контакты
- Добавить в избранное
1400 м2
2 135 000 /мес.
1 525 /м2
