Дубрава садовое товарищество (Химки городской округ)
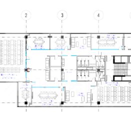
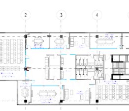
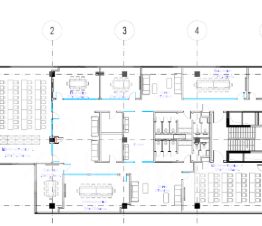
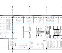
Экономьте время и деньги: отрисуем планировку под вас бесплатно, с любым количеством правок. Предлагаем в аренду Офис в бизнес-центре ''Химки Бизнес Парк'' по адресу: Московская область, Химки, Ленинградская улица, вл39с5.Рабочих мест: от 681 до 1210*.Площадь: 5 447 м2.Планировка: смешанная.Состояние: готово к въезду.Ставка (включая эксплуатацию): 18 000 руб. за м2/год.Арендная плата: 8 170 500 руб./мес.Налог: включая НДС.Коммунальные расходы: оплачиваются по факту.Этаж: 5, 6, 7, 14 из 15.Тип аренды: Прямая аренда.Охрана: круглосуточная охрана здания.Этот адрес обслуживает налоговая 43. Парковка наземная, подземная.Системы здания:Вентиляция: приточно-вытяжная.Кондиционирование: центральное.Пожарная сигнализация: спринклерная система.Этот лот состоит из нескольких помещений: 1400 кв. м., 1349 кв. м., 1343 кв. м. и 1355 кв. м.>ID объекта - 020292.*Количество рабочих мест рассчитано автоматически: от 4,5 м2 на человека до 8 м2 на человека.Почему клиенты доверяют нам?1. 12000 объектов коммерческой недвижимости Москвы и Области, включая эксклюзивные и внерыночные.2. Работаем без комиссии и скрытых платежей. Вы заключаете договор напрямую с собственником.3. Профессиональное сопровождение: консультации на каждом этапе, помощь в подборе оптимального решения для вашего бизнеса.4. 17 лет опыта в коммерческой недвижимости.Не тратьте время, доверьте поиски нам! Позвоните, и мы оперативно организуем просмотр или подготовим подборку объектов.
5447 м2
- Показать контакты
- Добавить в избранное
5447 м2
8 170 500 /мес.
1 500 /м2
