Универсальное помещение
Народного Ополчения, 22/2 Показать на карте
Народного Ополчения, 22/2 Показать на карте
Москва
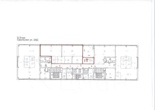
Аренда 2 этажа ТЦ целиком — 1 447,1 м² | 500 м от метро | 1 линия | Реконцепция фасадаПредлагается в аренду второй этаж ТЦ площадью 1 447,1 м² — отличная возможность занять крупный формат в перспективной локации с обновлением концепции объекта в 2026 году.Характеристики объекта:Площадь: 1 447,1 м² (2 этаж целиком)МАП: 3 650 000 ?/мес. (30 267 ?/м²/год) с НДСФормат: ПСН (свободное назначение)Договор: долгосрочный от 3 летПреимущества помещения:-- Отличная визуальная доступность-- Возможность размещения вывески на фасаде-- Доступ 24/7 (по согласованию)-- Зона разгрузки/погрузки-- Парковка у ТЦ-- Все коммуникации-- Мокрые точки, вытяжка-- Смешанная планировкаЛокация:— Первая линия ул. Народного Ополчения— 500 метров до метро Народное Ополчение— Прямой выезд на проспект Маршала Жукова и ТТК— Сформированное торговое и жилое окружениеВажный инвестиционный момент:— В текущем году запланировано масштабное обновление фасада ТЦ с полным изменением внешнего облика.— Также анонсировано открытие итальянского ресторана — что усилит трафик и повысит привлекательность объекта.— Вы заходите в проект на этапе трансформации: фиксируете выгодную ставку, получаете арендные каникулы, заключаете долгосрочный договор, занимаете сильную позицию в обновлённом ТЦ.Подойдёт под:• Ресторан / бар / гастропроект• Медицинский центр / стоматологию / лабораторию• Фитнес-клуб / студию йоги / wellness-пространство• Магазин / супермаркет / шоурум• Салон красоты / СПА• КоворкингГотовы обсуждать условия и конфигурацию помещения под ваш проект.Звоните — помещение от собственника.
1447 м2
- Показать контакты
- Добавить в избранное
1447 м2
3 650 000 /мес.
2 522 /м2
