Офисное помещение
Тверская, 24 Показать на карте
Тверская, 24 Показать на карте
Пушкинская, 5 мин
Москва
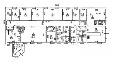
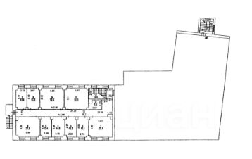
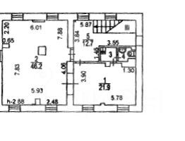
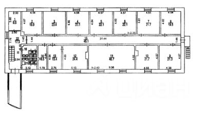
Предлагаем в аренду офис по адресу: Москва, Тверская улица, 24. Рабочих мест: от 1250 до 2222*.Площадь: 10 000 м2.Планировка: смешанная.Состояние: готовность к въезду с.Ставка (включая эксплуатацию): 85 000 руб. за м2/год.Арендная плата: 70 833 333 руб./мес.Налог: включая НДС.Коммунальные расходы: оплачиваются по факту.Этажей: 7.Тип аренды: прямая аренда.Охрана: система управления контроля доступа.Метро рядом: м. Маяковская в 4 минутах пешком, м. Пушкинская в 6 минутах пешком, м. Тверская в 6 минутах пешком. Этот адрес обслуживает налоговая 10. Системы здания:Вентиляция: приточно-вытяжная.Кондиционирование: центральное.Пожарная сигнализация: датчики пожаротушения.>ID объекта - 104059.*Количество рабочих мест рассчитано автоматически: от 4,5 м2 на человека до 8 м2 на человека.
10000 м2
- Показать контакты
- Добавить в избранное
10000 м2
70 833 333 /мес.
7 083 /м2
