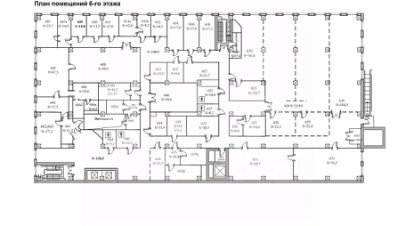
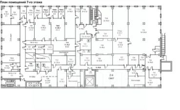
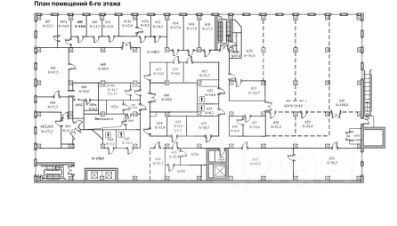
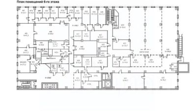
Универсальное помещение
Садовая-Сухаревская, 15 ст1 Показать на карте
Садовая-Сухаревская, 15 ст1 Показать на карте
Москва
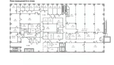
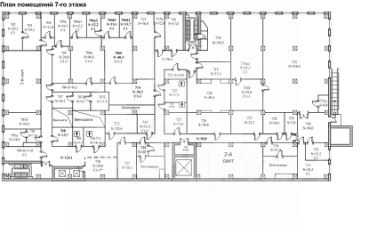
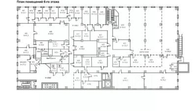
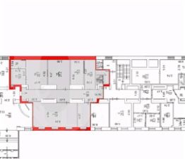
Арт. 131592074 Это не просто офис, это ваш готовый плацдарм для успеха в динамичной бизнес-среде! Расположенный в историческом особняке 1917 года постройки класса B, этот кабинет площадью 22.5 м² — идеальное решение для тех, кто ценит комфорт, стиль и стратегическое расположение.Полная готовность к работе: Кабинет полностью оборудован всей необходимой мебелью и техникой, что позволяет начать работу буквально ''завтра''. Вам не придется тратить время и средства на ремонт или обустройство здесь каждая деталь продумана для вашей продуктивности и комфорта.Транспортная доступность:5 минут пешком до ''Сухаревской'',6 минут до ''Цветного бульвара'' и 10 минут до ''Трубной''.Помимо этого, объект находится в непосредственной близости от таких крупных магистралей, как Проспект Мира и Садовое Кольцо, что гарантирует легкий доступ из любой точки города. Это означает минимальные затраты времени на дорогу и максимальное удобство для всех!
22 м2
- Показать контакты
- Добавить в избранное
22 м2
150 000 /мес.
6 666 /м2
