Офисное помещение
Гиляровского, 4 ст5 Показать на карте
Гиляровского, 4 ст5 Показать на карте
Москва
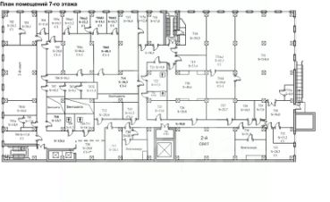
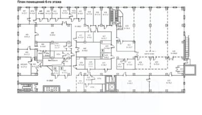
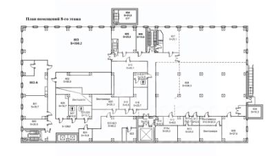
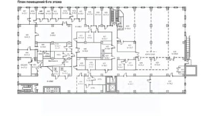
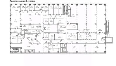
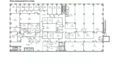
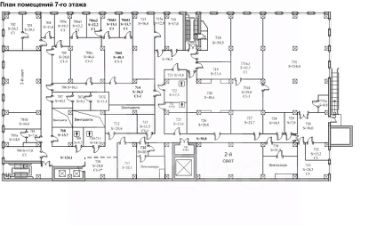
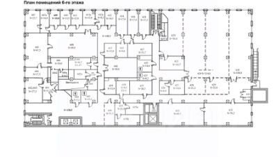
Экономьте время и деньги: отрисуем планировку под вас бесплатно, с любым количеством правок. Предлагаем в аренду Офис в бизнес-центре ''БЦ у м.Сухаревская'' по адресу: Москва, улица Гиляровского, 4с5.Рабочих мест: от 33 до 58*.Площадь: 262 м2.Планировка: смешанная.Состояние: готово к въезду.Ставка (включая эксплуатацию): 45 000 руб. за м2/год.Арендная плата: 982 500 руб./мес.Налог: включая НДС.Коммунальные расходы: включены в арендную ставку.Этаж: 4 из 4.Тип аренды: прямая аренда.Охрана: круглосуточная охрана здания.Метро рядом: м. Сухаревская в 2 минутах пешком, м. Проспект Мира в 10 минутах пешком. Этот адрес обслуживает налоговая 2. Парковка наземная.Системы здания:Вентиляция: приточно-вытяжная.Кондиционирование: сплит-системы.Пожарная сигнализация: датчики пожаротушения.>ID объекта - 15946.*Количество рабочих мест рассчитано автоматически: от 4,5 м2 на человека до 8 м2 на человека.Почему клиенты доверяют нам?1. 12000 объектов коммерческой недвижимости Москвы и Области, включая эксклюзивные и внерыночные.2. Работаем без комиссии и скрытых платежей. Вы заключаете договор напрямую с собственником.3. Профессиональное сопровождение: консультации на каждом этапе, помощь в подборе оптимального решения для вашего бизнеса.4. 17 лет опыта в коммерческой недвижимости.Не тратьте время, доверьте поиски нам! Позвоните, и мы оперативно организуем просмотр или подготовим подборку объектов.
262 м2
- Показать контакты
- Добавить в избранное
262 м2
982 500 /мес.
3 750 /м2
