Торговые площади
Маршала Бирюзова, 20 корп. 1 Показать на карте
Маршала Бирюзова, 20 корп. 1 Показать на карте
Октябрьское поле, 5 мин
Москва
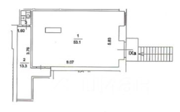
Аренда помещения для вашего бизнеса — 60 м² рядом с метро!Ищете идеальное место для открытия салона красоты, пекарни, аптеки, продуктового магазина или кофейни? Мы предлагаем современное помещение площадью 60 м², расположенное всего в 4 минутах ходьбы от метро.Преимущества: Высокий пешеходный трафик — отличный поток клиентов. Универсальная планировка — подходит для разных форматов бизнеса. Развитая инфраструктура — рядом остановки, парковки, жилые комплексы. Готовность к показу — звоните, чтобы договориться о просмотре в удобное время.Не упустите шанс занять выгодную локацию и начать успешный бизнес! Звоните прямо сейчас! Покажем помещение в любое удобное для вас время.
60 м2
- Показать контакты
- Добавить в избранное
60 м2
200 000 /мес.
3 333 /м2
