Торговые площади
Берсеневский переулок, 5 ст2 Показать на карте
Берсеневский переулок, 5 ст2 Показать на карте
Новокузнецкая, 15 мин
Москва
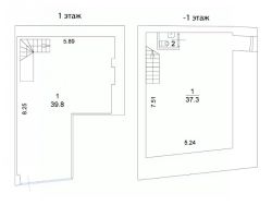
Торговая площадь 149, 7 м с отдельным входом и панорамным остеклением арендуйте готовое пространство для бизнеса!ОСНОВНАЯ ИНФОРМАЦИЯ:- тип объекта: общепит/торговая площадь,- местонахождение: Москва, ЦАО, арткластер ''Красный Октябрь'',- адрес: Берсеневский переулок, д. 5, стр. 2,- метро: ''Кропоткинская'', ''Полянка'', ''Третьяковская'' в пешей доступности,- этаж: 1/1,- количество входов: 1 отдельный вход,- общая площадь: 149, 7 м,- полезная площадь: 149, 7 м,- высота потолков: 3 м,- ремонт: скандинавский стиль, качественный современный,- готовность к въезду: в эксплуатации, не требует вложений, готово к быстрому запуску бизнеса.------------------------------------------------- --------------- ХАРАКТЕРИСТИКИ И ПРЕИМУЩЕСТВА:- панорамное остекление: большие витринные окна дают максимум света и работают как естественная реклама,- видимость: отлично просматривается с улицы ''продающий'' формат,- планировка: удобная и функциональная, позволяет эффективно зонировать: * торговый зал, * витрину, * клиентскую зону,- история использования: ранее шоурум каминов пространство адаптировано под премиальную экспозицию и работу с клиентским потоком,- коммуникации: все необходимые подведены,- парковка: 3 частные парковки на территории кластера. ------------------------------------------------- ---------------УСЛОВИЯ АРЕНДЫ:- стоимость: 650 000 руб. в месяц,- стоимость кв. м в год: 52 100 руб. /м в год.- депозит: предусмотрен,- комиссия: отсутствует,- коммунальные платежи: оплачиваются отдельно,- обеспечительный взнос залог: можно разбить на 2 месяца,- арендные каникулы: обсуждаются индивидуально под ваш проект,- особые условия: возможна скидка/акция,- юридический адрес: предоставляется. ------------------------------------------------- ---------------ИДЕАЛЬНО ПОДХОДИТ ДЛЯ:- шоурума,- флагманского магазина,- дизайнстудии,- салона мебели и предметов интерьера,- магазина интерьерных решений,- представительского формата компании,- оказания услуг с клиентским приёмом,- экспозиционного пространства премиумкласса. ------------------------------------------------- --------------- КЛЮЧЕВЫЕ ПРЕИМУЩЕСТВА ЛОКАЦИИ И ПОМЕЩЕНИЯ:- престижная локация в арткластере ''Красный Октябрь'',- удобная транспортная доступность рядом станции метро,- высокий пешеходный трафик,- заметность и привлекательность фасада для привлечения клиентов,- экономия на старте: не нужно тратить время и деньги на ремонт,- гибкость условий аренды под потребности бизнеса. ------------------------------------------------- --------------- Будем рады ответить на все вопросы и организовать показ помещения в удобное для вас время!
149 м2
- Показать контакты
- Добавить в избранное
149 м2
650 000 /мес.
4 342 /м2
