Офисное помещение
Арбат, 6/2 Показать на карте
Арбат, 6/2 Показать на карте
Москва
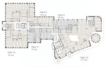
Ксения МедведеваЭксклюзивное предложение. Редкое соотношение формата и качества! Уважаемые Клиенты и Коллеги, Вашему вниманию предлагается в аренду современный офис на территории Центрального административного округа.Офис кабинетной планировки, что позволит сотрудникам Вашей компании повысить уровень концентрации и производительности, поскольку в обособленной рабочей зоне меньше отвлекающих факторов, ниже уровень шума и более спокойная обстановка. Предусмотрены обеденная зона и гардеробная комната, собственный санузел. Офис укомплектован необходимой мебелью. Отличный вариант для тех, кто ценит удобство и комфорт. Стильная дизайнерская отделка.Особого внимания заслуживает развитая инфраструктура района Арбат, который давно стал одним из символических мест в Москве. Многообразие кафе и ресторанов позволят Вам с лёгкостью спланировать свой досуг в обеденное время. Удобное расположение. В шаговой доступности станция метро ''Арбатская''. Максимальная доступность из всех точек города.Для Вашего удобства есть информативное видео, которое позволит более детально ознакомиться с планировочным решением.Юридическим фирмам и Адвокатским бюро особые условия!Звоните, и я организую для Вас оперативный показ!Участник AREA Номер в базе: J61725
98 м2
- Показать контакты
- Добавить в избранное
98 м2
550 000 /мес.
5 612 /м2
