Офисное помещение
Неопалимовский 2-й переулок, 7 Показать на карте
Неопалимовский 2-й переулок, 7 Показать на карте
Парк Культуры, 10 мин
Москва
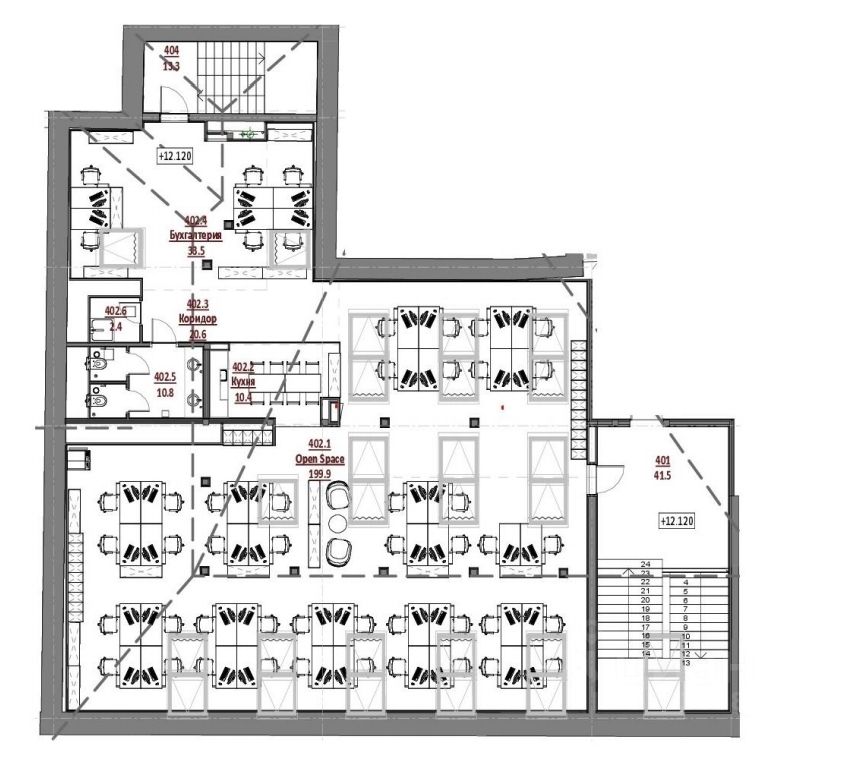
Предлагается в аренду светлое коммерческое пространство площадью 105 м² в историческом здании в самом сердце Хамовников по адресу Неопалимовский переулок, 7. Помещение расположено на первом этаже и находится в безупречном состоянии после свежего ремонта: интерьер полностью чистый, светлый, без дефектов и готов к немедленному заселению. Функциональная планировка включает четыре изолированных кабинета, уютную зону ресепшен, кладовую и полностью укомплектованную кухню с посудомоечной машиной. Комфорт сотрудников обеспечивают современные кондиционеры в каждой комнате и проведенный высокоскоростной интернет, при этом помещение сдается без мебели, но с готовым планом эффективной расстановки рабочих мест. Арендаторам предоставляется возможность регистрации юридического адреса и аренды машиноместа на территории. Условия аренды максимально прозрачны: установлен фиксированный ежемесячный платеж, отдельно оплачиваются только электричество и интернет. Объект идеально подходит для размещения адвокатского бюро, юридической или консалтинговой фирмы, ИТ-компании, дизайн-студии или представительства крупного фонда и НКО. Здание находится в престижной локации в пешей доступности от станций метро Смоленская и Парк Культуры, что гарантирует высокий статус и удобство для ваших клиентов и команды.Комментарий эксперта. Меня зовут Рамзан Дакаев — брокер компании Whitewill. Я отвечаю за аренду этого лота. Свяжитесь со мной, чтобы получить расширенную презентацию, больше фотографий или договориться о просмотре. Могу провести экскурсию по локации и познакомить вас с этим домом.ID 5 040.
105 м2
- Показать контакты
- Добавить в избранное
105 м2
300 000 /мес.
2 857 /м2
