Офисное помещение
Арбат, 10 Показать на карте
Арбат, 10 Показать на карте
Москва
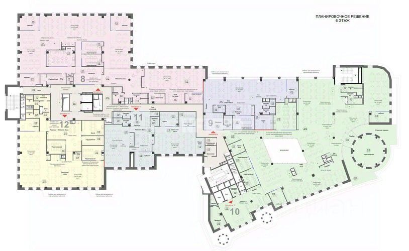
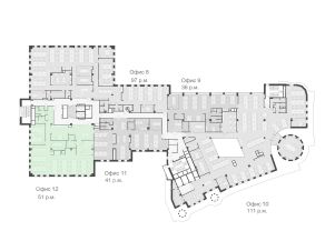
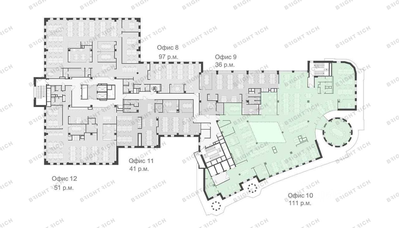
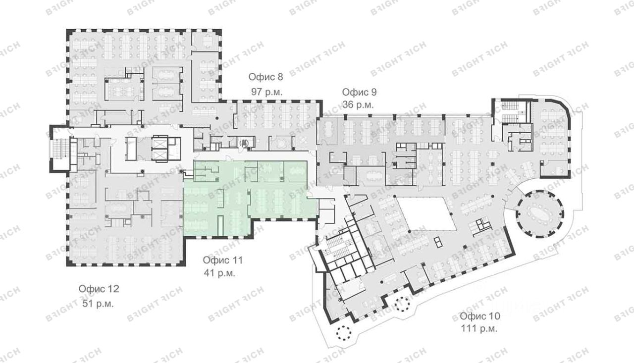
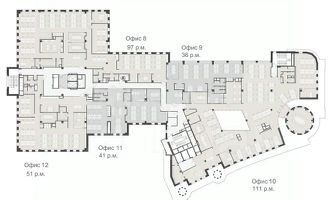
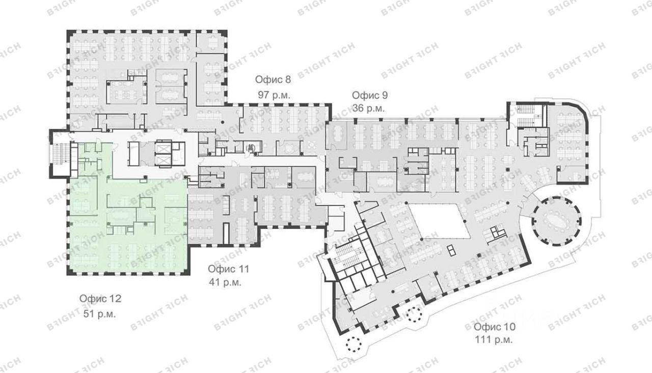
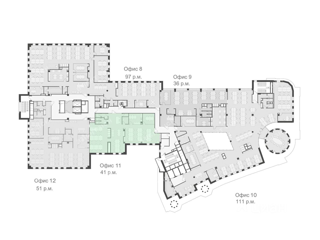
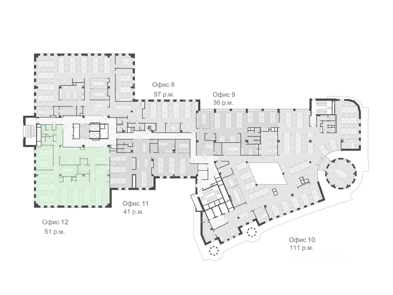
Сдаются помещения с сервисами для арендаторов (коворкинги) от 305 кв.м в бизнес-центре ''Midland Plaza (Мидланд Плаза)'' (класс B+)Этажи в наличии: 3,6Отделка - с отделкойНаличие мебели - с мебельюТип планировки - смешаннаяВход - общий с улицыМокрые точки - даСан. узлы - в блокеНаличие кухни - даНазначение: ОфисПолная ставка аренды от 124 265 руб. за кв. м/год. НДС включен, эксплуатация включенаКоммунальные расходы - ВключеныБизнес-центр ''Midland Plaza (Мидланд Плаза)'' находится по адресу: Москва, улица Арбат, 10.Район: Арбат Год постройки здания: 2003Налоговая: 4Наличие паркинга: подземный, стоимость 30 000 руб. месяц (1 м/м)Вентиляция: приточно-вытяжнаяПожарная система: СпринклернаяБлижайшие станции метро: Арбатская (6 минут пешком)Инфраструктура: Бар, Кафе, Ресторан, Столовая, Банк, Банкомат, Ремонт одежды, Салон красоты, Срочное фото, Турагентство, Химчистка, Супермаркет, Цветочный салон, Ремонт обуви, Магазин, Студия йоги, Фитнес-клубКол-во лифтов: 7Юридический адрес: предоставляетсяПозвоните и мы ответим на все Ваши вопросы, направим презентацию с планировками и оперативно организуем показ. Наши услуги для Вас бесплатны!
3217 м2
- Показать контакты
- Добавить в избранное
3217 м2
37 258 758 /мес.
11 581 /м2
